Офисное здание в Краснодаре
Фотография © Влад Феоктистов / предоставлена Axis Project
Офисное здание в Краснодаре
информация:
-
статус
проект -
даты
03.2021 / 09.2021 — 11.2023 -
место
Краснодар улица Кубанская Набережная, 196 -
координаты
45.032355, 38.959219 -
функция
Административно-офисный / административно-офисное здание -
теги
send.project -
общая площадь
1 260 м2 -
высота
11,8 -
этажность
3 -
строительный объем
5 782 м3

Темрюк Бориев
РоссияAxis Project
Россияавторский коллектив
Руководитель авторского коллектива: Темрюк Бориев
ГАП: Георгий Петренко
Архитектор: Олег Колесник, Юлия Козлова
ГАП: Георгий Петренко
Архитектор: Олег Колесник, Юлия Козлова
Офисное здание в Краснодаре
Фотография © Влад Феоктистов / предоставлена Axis Project
Архи.ру об этом объекте:
28.12.2024
Рамка кирпича
По проекту бюро Axis Project на Кубанской набережной в Краснодаре построен офис, который уже взяло в аренду другое бюро – Archivista. Перебрав несколько вариантов, авторы и заказчики остановились на лаконичной форме, сделав ставку на ясность пропорций и выразительность материала – красного кирпича ручной формовки.
Описание предоставлено архитекторами Проект строился вокруг идеи рационального использования участка, что определило лаконичную конфигурацию здания. Простота формы стала платформой для работы с деталями. Главный акцент фасада сложная кирпичная кла... читать дальшеОфисное здание в Краснодаре
Фотография © Влад Феоктистов / предоставлена Axis Project
история проекта:
Заказчик пришел по рекомендации. Над концепцией работали очень долго, было сделано 4-5 вариантов.
описание:
Рациональность и эстетика: игра с пропорциями и материалами
Проект строился вокруг идеи рационального использования участка, что определило лаконичную конфигурацию здания. Простота формы стала платформой для работы с деталями, и главным акцентом фасада стала сложная кирпичная кладка. Она добавляет ритмичность и объем, превращая здание в эстетически насыщенный объект.
На третьем этаже мы предложили организовать террасу, которая не только расширила функционал, но и помогла визуально облегчить верхнюю часть здания, улучшив его пропорции.
В качестве материала был выбран кирпич ручной формовки Engels насыщенного красного цвета. Этот выбор стал отсылкой к исторической архитектуре Краснодара, придав зданию характерную связь с городским контекстом.
Так, мы создали объект, который органично сочетает функциональность, локальную идентичность и архитектурную выразительность.
Проект строился вокруг идеи рационального использования участка, что определило лаконичную конфигурацию здания. Простота формы стала платформой для работы с деталями, и главным акцентом фасада стала сложная кирпичная кладка. Она добавляет ритмичность и объем, превращая здание в эстетически насыщенный объект.
На третьем этаже мы предложили организовать террасу, которая не только расширила функционал, но и помогла визуально облегчить верхнюю часть здания, улучшив его пропорции.
В качестве материала был выбран кирпич ручной формовки Engels насыщенного красного цвета. Этот выбор стал отсылкой к исторической архитектуре Краснодара, придав зданию характерную связь с городским контекстом.
Так, мы создали объект, который органично сочетает функциональность, локальную идентичность и архитектурную выразительность.
Офисное здание в Краснодаре
Фотография © Влад Феоктистов / предоставлена Axis Project
Офисное здание в Краснодаре
Фотография © Влад Феоктистов / предоставлена Axis Project
Офисное здание в Краснодаре
Фотография © Влад Феоктистов / предоставлена Axis Project
Офисное здание в Краснодаре
Фотография © Влад Феоктистов / предоставлена Axis Project
Офисное здание в Краснодаре
Фотография © Влад Феоктистов / предоставлена Axis Project
Офисное здание в Краснодаре
Фотография © Влад Феоктистов / предоставлена Axis Project
Офисное здание в Краснодаре
© Axis Project
Офисное здание в Краснодаре. Генплан
© Axis Project
Офисное здание в Краснодаре
© Axis Project
Офисное здание в Краснодаре
© Axis Project
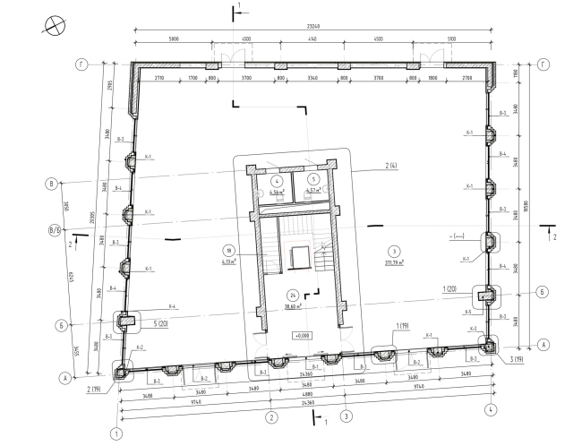
Офисное здание в Краснодаре. План 1 этажа
© Axis Project
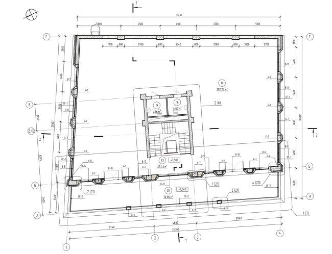
Офисное здание в Краснодаре. План 2 этажа
© Axis Project
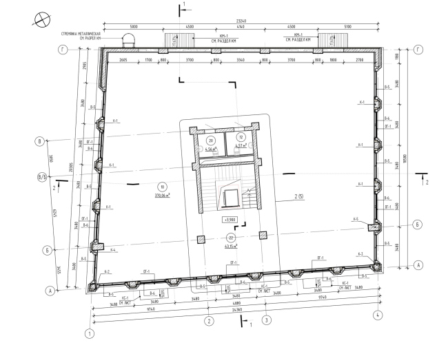
Офисное здание в Краснодаре. План 3 этажа
© Axis Project
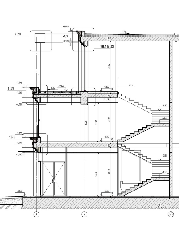
Офисное здание в Краснодаре
© Axis Project
Архитекторы – партнеры Архи.ру:
Проект из каталога (случайный выбор)
Постройки и проекты (новые записи):
Новости российской архитектуры:
17.10.2025
Песнь совриска и пламени
Никита Явейн, Сергей Падалко, Андрей Гнездилов, Максимилиан Мосешвили17.10.2025
Под небом голубым
Никита Явейн16.10.2025
Русский Север и Арктика: четыре проекта
Григорий Соломин16.10.2025