Клубный корпус Wyndham
© MIA Design Studio
Клубный корпус Wyndham
© MIA Design Studio
Клубный корпус Wyndham
© MIA Design Studio
Типологически именно такой корпус спроектировали архитекторы MIA Design Studio для отеля, расположенного на самом крупном вьетнамском острове Фукуок. Он славится своими пляжами с мелким белым песком и природным национальным парком, занимающим почти половину территории. Благодаря этому Фукуок в последние годы быстро развивается и стал крупным туристическим центром.
Клубный корпус Wyndham
© MIA Design Studio
Клубный корпус Wyndham
© MIA Design Studio
Клубный корпус Wyndham
© MIA Design Studio
Отель, при котором находится Wyndham Clubhouse, расположен в юго-западной части острова и представляет собой удивительный зеленый оазис посреди активно застраивающейся местности. Он, как конструктор, сложен из отдельных одноэтажных номеров-ячеек, уединенных и зеленых, каждая со своим небольшим открытым бассейном.
Клубный корпус Wyndham
© MIA Design Studio
Клубный корпус Wyndham
© MIA Design Studio
Клубный корпус Wyndham
© MIA Design Studio
Клубный корпус Wyndham
© MIA Design Studio
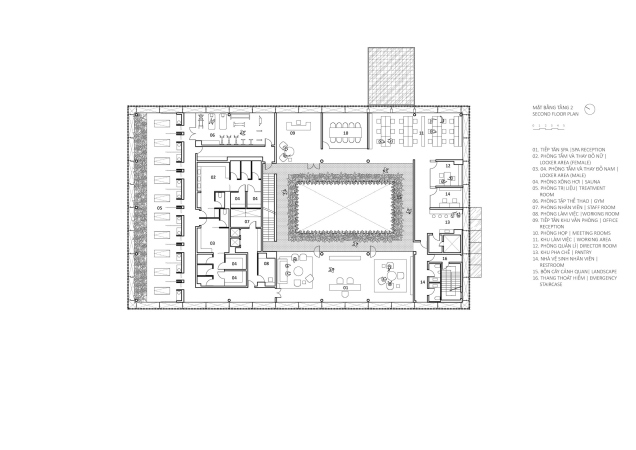
Похожую схему архитекторы использовали и для посетительского центра. Его прямоугольный объем открывает вход на территорию отеля. Подвальные помещения вмещают кухню, столовую, раздевалки, места хранения личных вещей и технические зоны. На первом этаже, открытом в окружающее пространство, расположены стойка администратора и вестибюль, ресторан, бар, различные зоны отдыха, в том числе с выходом к бассейну. Выше находится офис руководства гостиницей и зона спа с собственной стойкой администрации и раздевалкой. На зеленой крыше организована еще одна зона отдыха с небольшим баром. Во внутренней отделке использованы бамбук, дерево и камень в сочетании с кирпичом.
Клубный корпус Wyndham
© MIA Design Studio
Клубный корпус Wyndham
© MIA Design Studio
Все зоны собраны вокруг также прямоугольного открытого атриума с искусственным водоемом на нижнем уровне: так возникает закрытый лианами эффектный колодец. Внешние же стены проницаемы для потоков воздуха и сложены из обычного кирпича с меняющимся узором отверстий. Такое решение, с одной стороны, отдает дань местным ремесленным традициям, а с другой, – обеспечивает отличную естественную вентиляцию и защиту от солнца, столь необходимые в жарком и влажном климате. Ну а в вечернее время эти ажурные орнаменты действительно превращают весь объем в подобие светильника.
Клубный корпус Wyndham
© MIA Design Studio
Клубный корпус Wyndham
© MIA Design Studio
Клубный корпус Wyndham
© MIA Design Studio
Клубный корпус Wyndham
© MIA Design Studio
Клубный корпус Wyndham
© MIA Design Studio
Клубный корпус Wyndham
© MIA Design Studio
