Жилой комплекс The Twins
Фото © Ossip van Duivenbode
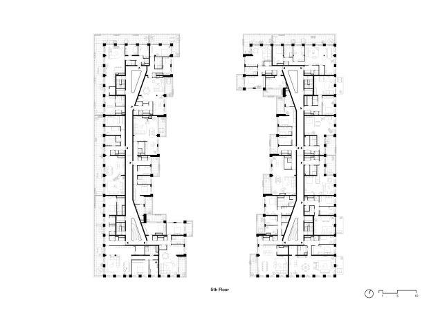
Мастерплан определил высоту и общие пропорции жилого комплекса. Однако вместо двух самостоятельных корпусов, задуманных изначально, архитекторы выбрали вариант зданий-близнецов, тесно связанных между собой с помощью общего двора и продуманной ступенчатой композиции. Они имеют L-образные планы и поставлены зеркально друг к другу, постепенно утончаясь по мере возрастания высоты.
Жилой комплекс The Twins
Фото © Beem Flights
У каждого обращенного во двор балкона есть небольшая зеленая стена, которая как будто продолжает растительную тему сада до верхних этажей. Флора особенно эффектно выглядит на фоне фактурного светло-серого кирпича с акцентами цвета шампанского. Не менее яркий контраст составляет эта кладка с облицовкой из анодированного алюминия золотого цвета, которым оформлены трехсветные ниши входов.
Жилой комплекс The Twins
Фото © Beem Flights
Архитекторы сделали лестничные клетки и коридоры максимально просторными и светлыми, чтобы избежать безликости наподобие гостиницы.
Жилой комплекс The Twins
Фото © Ossip van Duivenbode
Жилой комплекс The Twins
Фото © Ossip van Duivenbode
Жилой комплекс The Twins
Фото © Ossip van Duivenbode
Жилой комплекс The Twins
Фото © Ossip van Duivenbode
Жилой комплекс The Twins
Фото © Ossip van Duivenbode
Жилой комплекс The Twins
Фото © Ossip van Duivenbode
Жилой комплекс The Twins
Фото © Ossip van Duivenbode
Жилой комплекс The Twins
Фото © Ossip van Duivenbode
Жилой комплекс The Twins
Фото © Ossip van Duivenbode
Жилой комплекс The Twins
© KCAP
Жилой комплекс The Twins
© KCAP
Жилой комплекс The Twins
© KCAP
Жилой комплекс The Twins
© KCAP
Жилой комплекс The Twins
© KCAP
Жилой комплекс The Twins
© KCAP
Жилой комплекс The Twins
© KCAP
Жилой комплекс The Twins
© KCAP
Жилой комплекс The Twins
© KCAP
Жилой комплекс The Twins
© KCAP
