Офисное здание Droogbak
Фото © Bram Vreugdenhil
Офисное здание Droogbak
Фото © Bram Vreugdenhil
Офисное здание Droogbak
Фото © Bram Vreugdenhil
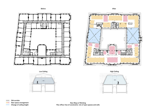
В наши дни было решено приспособить его под новые схемы рабочего процесса, причем так, чтобы и в будущем Droogbak не потерял актуальности. Эта задача была поставлена перед архитекторами KCAP и инженерами ABT. Арендатором стала международная юридическая фирма Clifford Chance, для которой пространства оформляли дизайнеры интерьера Fokkema & Partners.
Офисное здание Droogbak
Фото © Bram Vreugdenhil
Офисное здание Droogbak
Фото © Bram Vreugdenhil
Офисное здание Droogbak
Фото © Bram Vreugdenhil
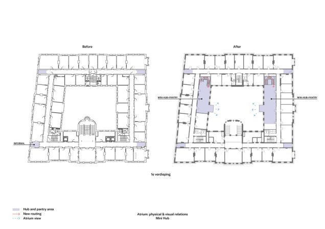
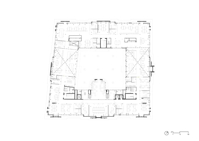
Концепция реновации – в упоре на неформальное общение, социальную составляющую рабочих контактов. В этом сейчас видят наибольший потенциал для повышения эффективности сотрудников. Поэтому из библиотеки, прежде располагавшейся в атриуме, он стал главным общественным пространством. Оттуда в остальные интерьеры ведут лестницы – прежние и новые, из анодированного алюминия. В атриум выходят эркеры и балконы, а также стеклянные «коробочки», где можно провести переговоры. В цокольном этаже под двором помещена столовая.
Офисное здание Droogbak
Фото © Bram Vreugdenhil
Офисное здание Droogbak
Фото © Bram Vreugdenhil
Офисное здание Droogbak
Фото © Bram Vreugdenhil
Акценты в исторических интерьерах расставлены с помощью охристого цвета. Мансардные пространства под крышей не стали делить перегородками: там лишь созданы разные «зоны», опять же, обозначенные цветом и надписями.
Офисное здание Droogbak
Фото © Bram Vreugdenhil
Офисное здание Droogbak
Фото © Bram Vreugdenhil
Офисное здание Droogbak
Фото © Bram Vreugdenhil
Офисное здание Droogbak
Фото © Bram Vreugdenhil
Офисное здание Droogbak
Фото © Bram Vreugdenhil
Офисное здание Droogbak
Фото © Bram Vreugdenhil
Офисное здание Droogbak
Фото © Bram Vreugdenhil
Офисное здание Droogbak
Фото © Bram Vreugdenhil
Офисное здание Droogbak
Фото © Bram Vreugdenhil
Офисное здание Droogbak
Фото © Bram Vreugdenhil
Офисное здание Droogbak
Фото © Bram Vreugdenhil
Офисное здание Droogbak
Фото © Bram Vreugdenhil
Офисное здание Droogbak
Фото © Bram Vreugdenhil
Офисное здание Droogbak
Фото © Bram Vreugdenhil
Офисное здание Droogbak
Фото © Bram Vreugdenhil
Офисное здание Droogbak
Фото © Bram Vreugdenhil
Офисное здание Droogbak
Фото © Bram Vreugdenhil
Офисное здание Droogbak
© KCAP + Fokkema & Partners
Офисное здание Droogbak
© KCAP + Fokkema & Partners
