RSS
Социальный жилой комплекс на улице Нолле, 29
Фото © Frédéric Delangle

Социальный жилой комплекс на улице Нолле, 29


/ Social housing at 29 rue Nollet

информация:

NZI Architectes / Франция
Социальный жилой комплекс на улице Нолле, 29
Фото © Frédéric Delangle

Архи.ру об этом объекте:

14.04.2026

Нина Фролова. Квартиры вместо машиномест

Гараж 1930-х у подножия Монмартра в Париже превращен NZI Architectes в социальный жилой комплекс.

читать дальше
Социальный жилой комплекс на улице Нолле, 29
Фото © Frédéric Delangle
Социальный жилой комплекс на улице Нолле, 29
Фото © Frédéric Delangle
Социальный жилой комплекс на улице Нолле, 29
Фото © Frédéric Delangle
Социальный жилой комплекс на улице Нолле, 29
Фото © Frédéric Delangle
Социальный жилой комплекс на улице Нолле, 29
Фото © Frédéric Delangle
Социальный жилой комплекс на улице Нолле, 29
Фото © Frédéric Delangle
Социальный жилой комплекс на улице Нолле, 29
Фото © Frédéric Delangle
Социальный жилой комплекс на улице Нолле, 29
Фото © Frédéric Delangle
Социальный жилой комплекс на улице Нолле, 29
Фото © Frédéric Delangle
Социальный жилой комплекс на улице Нолле, 29
Фото © Frédéric Delangle
Социальный жилой комплекс на улице Нолле, 29
Фото © Frédéric Delangle
Социальный жилой комплекс на улице Нолле, 29
Фото © Frédéric Delangle
Социальный жилой комплекс на улице Нолле, 29
Фото © Frédéric Delangle
Социальный жилой комплекс на улице Нолле, 29
Фото © Frédéric Delangle
Социальный жилой комплекс на улице Нолле, 29
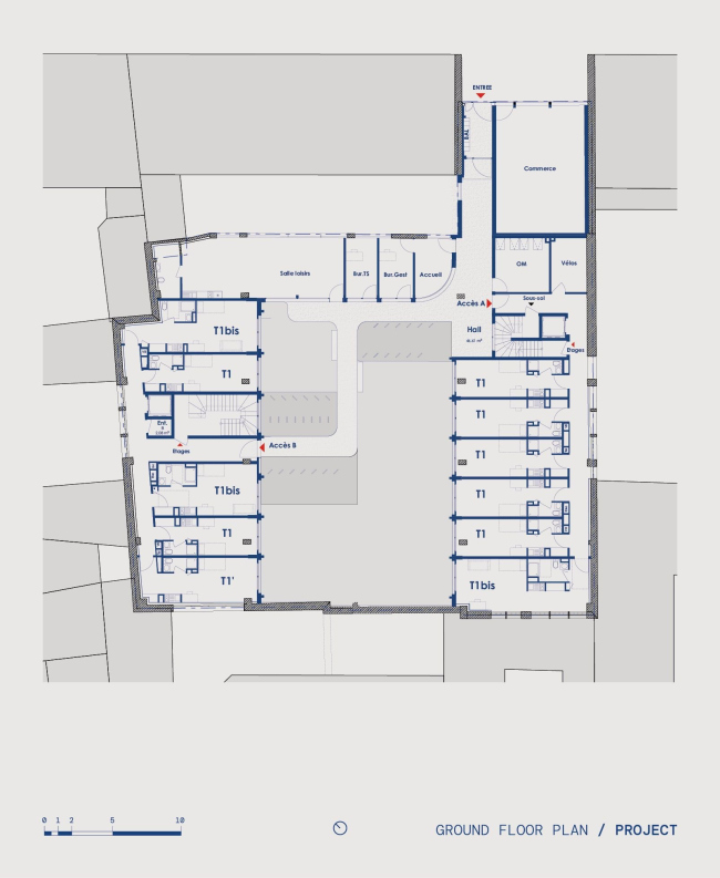
© NZI Architectes
Социальный жилой комплекс на улице Нолле, 29
© NZI Architectes
Социальный жилой комплекс на улице Нолле, 29
© NZI Architectes
Социальный жилой комплекс на улице Нолле, 29
© NZI Architectes
Социальный жилой комплекс на улице Нолле, 29
© NZI Architectes
Социальный жилой комплекс на улице Нолле, 29
© NZI Architectes
Социальный жилой комплекс на улице Нолле, 29
© NZI Architectes
Социальный жилой комплекс на улице Нолле, 29
© NZI Architectes
Социальный жилой комплекс на улице Нолле, 29
© NZI Architectes
Социальный жилой комплекс на улице Нолле, 29
© NZI Architectes
Социальный жилой комплекс на улице Нолле, 29
© NZI Architectes
Социальный жилой комплекс на улице Нолле, 29
© NZI Architectes
Социальный жилой комплекс на улице Нолле, 29
© NZI Architectes

Избранные архитекторы:

  • Норман Фостер
  • Жан Нувель
  • Заха Хадид
  • Алехандро Аравена
  • Джон Поусон
  • Алвару Сиза
  • Оскар Нимейер
  • Тоёо Ито
  • Рафаэль Монео

Проект из каталога (случайный выбор)

Избранные постройки:

  • Международный центр инноваций «Чжунгуаньцунь» (ZGC)
  • Штаб-квартира Le Monde
  • Музей современного искусства в Форт-Уэрте
  • Новое крыло Музея Фолькванг
  • Киноцентр Пусана
  • Научная библиотека Питера Б. Льюиса Принстонского Университета
  • Комплекс Fake Hills
  • Кунстхаус в Брегенце
  • Новое здание Мариинского театра. Проект Э. Мосса

Зарубежные новости