Кинотеатр La Géode – реконструкция
Фото © Adrien Daste
Кинотеатр La Géode – реконструкция
/ La Géode – reconstruction
информация:
-
статус
реализовано -
даты
2022 — 12.2024 -
место
Франция, Париж -
координаты
48.894628, 2.388740 -
функция
Развлекательный / Кинотеатр -
теги
Реконструкция и реставрация -
общая площадь
3 000 м2

Loci Anima /
Loci Anima / ФранцияКинотеатр La Géode – реконструкция
Фото © Adrien Daste
Архи.ру об этом объекте:
02.04.2025
Нина Фролова. Бетон и искусство иллюзии
В парижском парке Ла-Виллет по проекту бюро Loci Anima реконструирован кинотеатр La Géode – геодезическая сферорама на бруталистском основании.
читать дальшеКинотеатр La Géode – реконструкция
Фото © Adrien Daste
Кинотеатр La Géode – реконструкция
Фото © Adrien Daste
Кинотеатр La Géode – реконструкция
Фото © Loci Anima
Кинотеатр La Géode – реконструкция
Фото © Loci Anima
Кинотеатр La Géode – реконструкция
Фото © Adrien Daste
Кинотеатр La Géode – реконструкция
Фото © Loci Anima
Кинотеатр La Géode – реконструкция
Фото © Adrien Daste
Кинотеатр La Géode – реконструкция
Фото © Adrien Daste
Кинотеатр La Géode – реконструкция
Фото © Adrien Daste
Кинотеатр La Géode – реконструкция
Фото © Adrien Daste
Кинотеатр La Géode – реконструкция
Фото © Adrien Daste
Кинотеатр La Géode – реконструкция
Фото © Adrien Daste
Кинотеатр La Géode – реконструкция
Фото © Loci Anima
Кинотеатр La Géode – реконструкция
Фото © Loci Anima
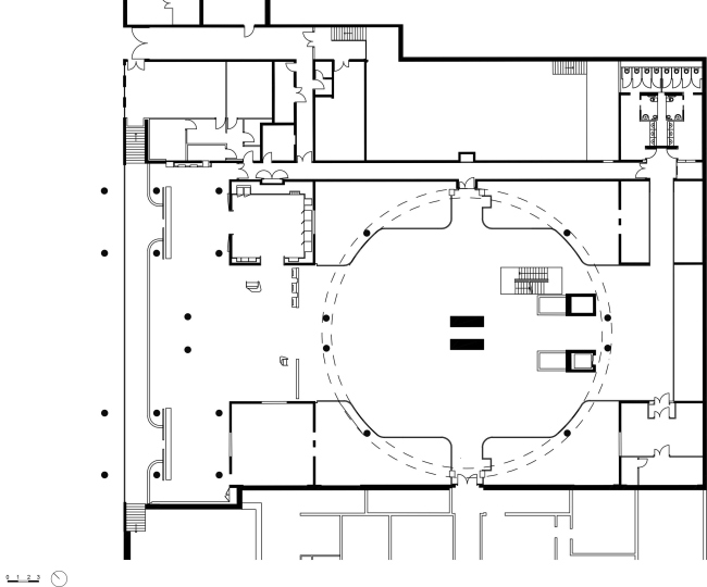
Кинотеатр La Géode – реконструкция
© Loci Anima
Кинотеатр La Géode – реконструкция
© Loci Anima
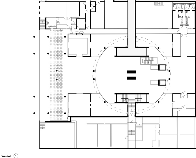
Кинотеатр La Géode – реконструкция
© Loci Anima
Кинотеатр La Géode – реконструкция
© Loci Anima
Кинотеатр La Géode – реконструкция
© Loci Anima
Кинотеатр La Géode – реконструкция
© Loci Anima
Кинотеатр La Géode – реконструкция
© Loci Anima
Кинотеатр La Géode – реконструкция
© Loci Anima
Кинотеатр La Géode – реконструкция
© Loci Anima
Избранные архитекторы:
Проект из каталога (случайный выбор)
Избранные постройки:
Зарубежные новости
01.10.2025
Пиранези для первокурсников
30.09.2025
Больше арок
26.09.2025
Бумеранг на скалах
25.09.2025
Архитектурная «дипломатия»
24.09.2025