Описание предоставлено архитекторами
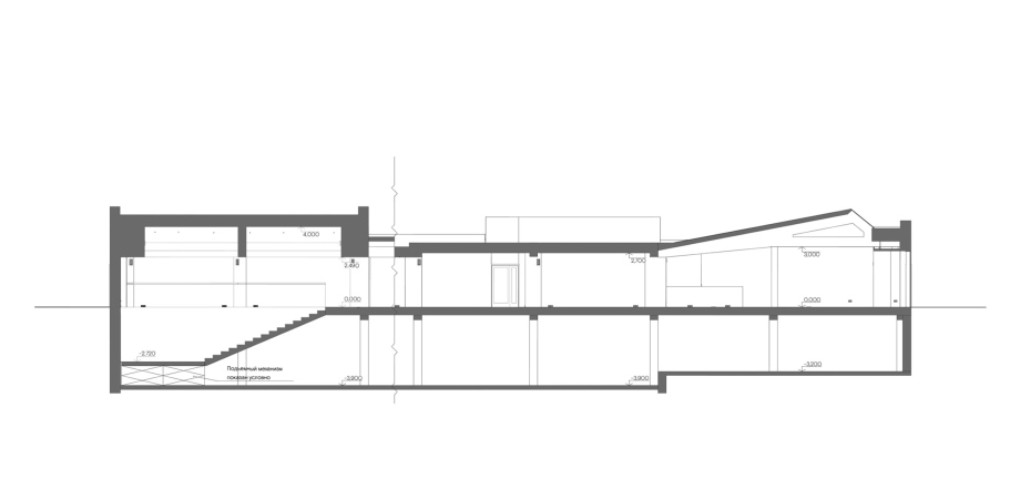
Культурный центр «Книги, кофе и другие измерения» в Верхней Пышме появился в результате реконструкции встроено-пристроенного книжного магазина 1970-х годов и прилегающей территории Успенского проспекта. Изначально предполагалось, что будет проведен лишь косметический ремонт, но в ходе проектных работ выяснилось, что несущие конструкции находятся в аварийном состоянии, поэтому в процессе строительства здание было разобрано до котлована, а затем восстановлено по архивным чертежам.
Культурный центр «Книги, кофе и другие измерения»
Фотография © Сергей Мельников / предоставлена CNTR Architects
Проект книжного магазина – типовой: с большими витринами, входной группой и бетонными конструкциями. Культурный центр сохранил основные пропорции, но визуально стал выглядеть больше за счет объемных фасадов, что позволило сместить акцент с прилегающего девятиэтажного жилого дома.
Культурный центр «Книги, кофе и другие измерения»
Фотография © Сергей Мельников / предоставлена CNTR Architects
Культурный центр «Книги, кофе и другие измерения»
Фотография © Сергей Мельников / предоставлена CNTR Architects
Фасад выполнен из латунных панелей, установленных на подсистеме, и напоминает складки бумаги. Свето-теневой рисунок меняется в течение суток, в зависимости от погоды и угла падения солнечных лучей. Окисленная латунь взаимодействует с окружающей средой, поэтому со временем фасады будут покрываться патиной. Фиброцементные панели светло-серого цвета выступают фоном для латунных конструкций, а также отсылают к историческим фасадным материалам книжного магазина.
Площадь книжного магазина была сравнительно небольшой, поэтому ее пришлось расширить за счет перестройки одной из квартир на первом этаже прилегающего жилого дома. Внутренний объем магазина был визуально расширен благодаря замене глухих ригелей в конструкции перекрытий на фермы с полостями, через которые теперь проникает солнечный свет.
Основную площадь занимают три зала с книжными полками, местами для отдыха посетителей и витринами с канцелярскими принадлежностями и материалами для творчества. Один из малых залов целиком предназначен для подарочных товаров и антиквариата. В трансформируемом лектории проходят кинопоказы и встречи с писателями. Часть посадочных мест может быть опущена до уровня пола, формируя одноуровневую площадку-подиум для проведения мастер-классов. Часть зала можно изолировать благодаря мобильным перегородкам.
В ходе реконструкции архитекторы сохранили не только планировочный каркас и исходные пропорций книжного магазина, но и обратились к изначальной стилистике интерьеров – ретрофутуризму. Эстетику 1970-х передает шпонированная мебель, большие напольные горшки с зелеными цветами и террацо, отсылающие к атмосфере дворца профсоюзов или дома культуры позднего советского времени.


