Ниже – все три проекта-победителя.
Первое место
Андрей Тютерев, Александра Афонина, Елена Мелякова, ДарьяЩетинина, Антон Кручинин, Татьяна Пономарёва / «Жилпроект», Воронеж
Конкурсный проект жилого дома по ул. Кольцовская в Воронеже
Андрей Тютерев, Александра Афонина, Елена Мелякова, Дарья
Щетинина, Антон Кручинин, Татьяна Пономарёва / «Жилпроект»
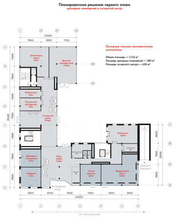
Авторы проекта постарались архитектурными средствами создать особую атмосферу комфортной жизни в центре города. Также одной из задач было обеспечить соответствие нового объекта истории и окружению участка. Помимо многообразия планировок и элементов благоустройства, двухуровневого двора и подземной парковки здесь есть соседский центр – пространство для общения, учебы и отдыха. В нем предусмотрены кафе, прачечная, уголок взаимопомощи, детская и спортивная зоны и т.д.
Второе место
Максим Базаев, ВладикавказКонкурсный проект жилого дома по ул. Кольцовская в Воронеже
Максим Базаев
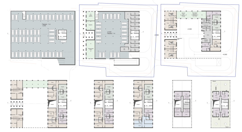
Архитекторы ставили своей целью «подарить» улице яркое, запоминающееся здание, которое могло бы стать символом района и всего города. Упор сделан на экологичность, часть квартир – с озелененными террасами. Благодаря нестандартному объемному решению большинство квартир получили уникальные планировки. Первые два этажа здания почти полностью отданы под зоны общего пользования – здесь располагаются холл, колясочные, переговорные, детские игровые, пространства для ожидания и отдыха.
Третье место
Георгий Яковлев, Николай Новоточинов, Марк Логачев, АндрейЖуравлев, Юлия Казначеева / ПТМ №5 СА, Воронеж
Конкурсный проект жилого дома по ул. Кольцовская в Воронеже
Георгий Яковлев, Николай Новоточинов, Марк Логачев, Андрей
Журавлев, Юлия Казначеева / ПТМ №5 СА
Комплекс состоит из двух разноуровневых, объединенных стилобатом объемов. На передний план вынесен трехэтажный объем, что позволило обеспечить соответствие историческому масштабу улицы. В стилобатной части – паркинг и разнообразные коммерческие помещения, а в соединительной галерее между двумя корпусами – детская игровая зона, а также пространство для отдыха и общения.
Узнать о конкурсе подробнее можно на его официальной странице.
