Описание предоставлено архитекторами
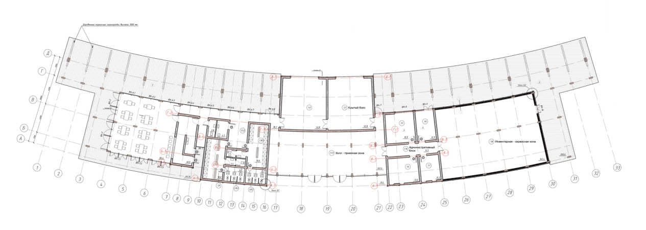
Академия гольфа – первый реализованный объект для гольф-поля «Юдинская долина» в Красноярске. Здание задумано как часть драйвинг-рейнджа, то есть тренировочного поля, и помимо 22 крытых ти для отработки ударов в своем составе имеет приемную зону со стойкой администратора, раздевалки и душевые для спортсменов, кафетерий, инвентарные и мастерские, а также небольшой административный блок. В центре здания находятся закрытые боксы для гольф-тренажеров, оборудованные симуляторами игры.
Академия гольфа в Красноярске
                Фотография © Сергей Филинин / предоставлена Проектдевелопмент
        Авторы постарались вписать объект в природно-рукотворный контекст поля для гольфа, подчеркнуть его плавные линии, зарифмовать силуэт здания с холмами и сопками, окружающими Красноярск. В основе конструктива здания пространственный каркас из клееных стоек и балок. Фасад здания, террасы, кровля и внутренняя отделка также выполнены из дерева. Помимо основной функции здание Академии служит площадкой для различных событий и праздников вокруг гольфа и не только.
            
            
        
                                                                                
                            
                            
                            
                            
                            
                            
                            
                            
                            
                            