Описание предоставлено архитекторами
Участок располагается недалеко от Выборга и рядом с одной из многочисленных баз отдыха, куда жители Петербурга стремятся, чтобы насладиться живописными лесами карельского перешейка. Сейчас участок представляет собой ровную площадку с островком леса в центре, где располагается детский домик на дереве, а вокруг высажены яблони и сливы.
Туристическая ферма в Тапиоле. Вид на детскую площадку
© Studio Rostovskii
Туристическая ферма в Тапиоле. Вид на апартаменты от леса
© Studio Rostovskii
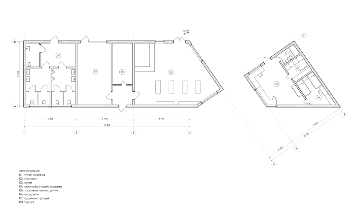
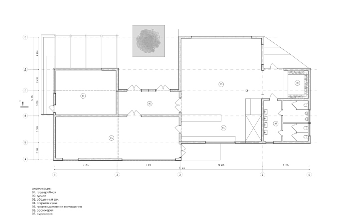
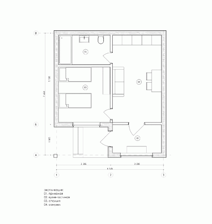
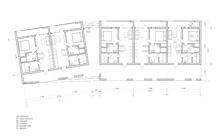
Архитекторы предложили заказчикам концепцию «комфортной общественной фермы» – для тех, кто помнит, как хорошо было у бабушки в деревне. Гости смогут арендовать незамысловатое садовое оборудование и «заземлиться» с помощью прополки грядки. На ферме можно будет собрать овощи, фрукты, яйца, а затем увезти их домой или принести в ресторан для приготовления обеда. На территории запланирован ресторан, сыроварня, апартаменты, птичий двор, грядки с клубникой и теплицы с овощами и зеленью.
Туристическая ферма в Тапиоле. Аксонометрическая схема
© Studio Rostovskii
Туристическая ферма в Тапиоле. Схема функциональной организации участка
© Studio Rostovskii
Туристическая ферма в Тапиоле. Генплан
© Studio Rostovskii
Природный ландшафт карельского перешейка продиктовал выбор скандинавского архитектурного стиля. Комплекс построек выполняется в технологии деревянного каркасного строительства. В отделке применяется кортеновская сталь и обожженное дерево, вид которого отвечает художественной задаче проекта и является самым экологичным способом сохранить свойства материала без использования химических покрытий.
Экологичность проекта поддерживается системой раздельного сбора отходов, применением энергосберегающих светодиодных ламп. Также террасы апартаментов обустроены лежаками, напечатанными на 3D-принтере из гранул вторичного пластика.

