Премия, основанная испанской компанией Simon, вручается каждые два года начиная с 2016. Для поданных проектов (в 2022 – 186) предусмотрено две номинации: общественные («коллективные») и частные («личные») места. В этот раз рассматривались проекты, завершенные в 2020–2021 на территории Европы (включая Россию), Мексики и Бразилии (гражданство архитектора роли не играло). Победитель в каждой из двух категорий получит приз в 10 тыс. евро: имена лауреатов назовут в феврале 2023. Организатором премии выступает фонд Fundació Mies van der Rohe, который также проводит Премию Мис ван дер Роэ. На рассмотрение принимаются не только здания, но также интерьеры, общественные пространства, сады и парки.
Видео о всех 186 поданных на премию проектах можно найти на сайте премии, а мы публикуем 10 вышедших в финал объектов.
«Коллективные места»
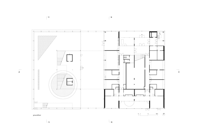
Школа Melopee, Гент, Бельгия
XDGA – Xaveer De Geyter ArchitectsВидео>>>
Здание в порту вмещает начальную школу, группу продленного дня, ясли и спортзал для учеников и местных жителей.
Школа Melopee
Фото © Maxime Delvaux
Центр здоровья Cap Cotet в Премия-де-Дальт, Каталония, Испания
Baas ArquitecturaВидео>>>
По мнению жюри, базиликальное здание превращает будничный визит к врачу в важное, особое событие.
Часовня Ingá Mirim, Итупева, штат Сан-Паулу, Бразилия
Messina | RivasВидео>>>
Часовня в имении предназначена для местных религиозных праздников. При строительстве использован кирпич колониального времени от руинированных построек поместья. Название для сооружения взято у характерного для этой местности вида дерева рода инга.
Общественный центр Pilares в районе Пресидентес-де-Мексика, Мехико
Rozana Montiel Estudio De ArquitecturaВидео>>>
«Пиларес» («Опоры») – это серия общественных центров в социально незащищенных районах города, которые строит мэрия Мехико.
Музыкальный киоск проекта Khitara, Мехико
TO, Carlos Facio, Jose AmozurrutiaВидео>>>
Павильон для бесплатных уроков игры на гитаре в бедном районе Мехико.
«Личные места»
Социальное жилье на 8 квартир, Пальма-де-Мальорка, Испания
Institut Balear de l'habitatge (IBAVI)Видео>>>
Здание выстроено из местных натуральных материалов, включая высушенные водоросли, использованные по традиции в качестве термоизоляции. Планировка каждой квартиры позволяет разнообразное использование каждой зоны, перегородки можно демонтировать в случае изменения состава семьи.
Дом в поселке Dumbrava Vlasiei, Бухарест
ADNBAВидео>>>
Лаконичный объем односемейного дома разделяет лес и парк. Интерьер отличается разнообразием пространств, визуальных и физических связей между ними.
Дом Petralona, Афины
Point SupremeВидео>>>
Старый одноэтажный дом получил еще два этажа, внутренний двор, террасы, множество зелени в интерьере и снаружи.
«Дом сбора дождевой воды», Темаскальтепек, Мексика
Robert Hutchison Architecture & Jsa ArchitectureВидео>>>
Дом в горах к западу от Мехико включает систему сбора и хранения дождевой воды, а также очистки сточных вод и их вторичного использования. Сад и огород служат ключевым источником питания для владельцев. В качестве основного материала выбрано дерево, а не типичный для современной Мексики бетон, чтобы уменьшить углеродный след проекта.
Дом Rambla-Climate, Молина-де-Сегура, Мурсия, Испания
Andrés Jaque/OFFPOLINN+Miguel Mesa del CastilloВидео>>>
Дом расположен в пригородной зоне на юго-востоке Испании, где чрезмерная урбанизация ведет к выравниванию природного ландшафта. Исчезают «рамблас» – влажные овраги, которые наполняются водой в дождливые сезоны и играют важную роль в экосистеме. Дом восстанавливает такой овраг с помощью собранной дождевой воды, а также «серой» воды из душевых и раковин.
