RSS
Культурно-развлекательный комплекс GATE M Dream Center
Фотография © Sanqian Visual Image Art

Культурно-развлекательный комплекс GATE M Dream Center


/ GATE M Dream Center

информация:

Field Operations
Field Operations / США
MVRDV
MVRDV / Нидерланды
Культурно-развлекательный комплекс GATE M Dream Center
Фотография © Xia Zhi

Архи.ру об этом объекте:

24.07.2025

Нина Фролова. Трансформация точечным методом

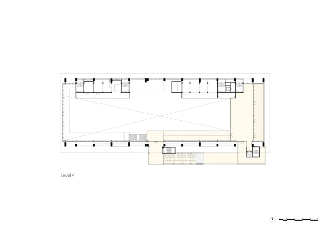
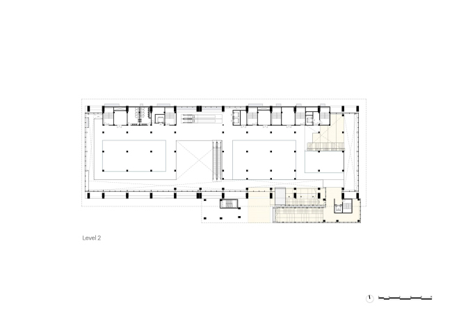
В шанхайском районе Уэст-Банд готов культурно-развлекательный комплекс GATE M Dream Center: территорию бывшей цементной фабрики перепрофилировали по замыслу бюро MVRDV.

читать дальше
Культурно-развлекательный комплекс GATE M Dream Center
Фотография © Tian Fangfang
Культурно-развлекательный комплекс GATE M Dream Center
Фотография © Tian Fangfang
Культурно-развлекательный комплекс GATE M Dream Center
Фотография © Tian Fangfang
Культурно-развлекательный комплекс GATE M Dream Center
Фотография © Tian Fangfang
Культурно-развлекательный комплекс GATE M Dream Center
Фотография © Liu Guowei
Культурно-развлекательный комплекс GATE M Dream Center
Фотография © Sanqian Visual Image Art
Культурно-развлекательный комплекс GATE M Dream Center
Фотография © Sanqian Visual Image Art
Культурно-развлекательный комплекс GATE M Dream Center
Фотография © Xia Zhi
Культурно-развлекательный комплекс GATE M Dream Center
Фотография © Xia Zhi
Культурно-развлекательный комплекс GATE M Dream Center
Фотография © Liu Guowei
Культурно-развлекательный комплекс GATE M Dream Center
Фотография © Liu Guowei
Культурно-развлекательный комплекс GATE M Dream Center
Фотография © Sanqian Visual Image Art
Культурно-развлекательный комплекс GATE M Dream Center
Фотография © Sanqian Visual Image Art
Культурно-развлекательный комплекс GATE M Dream Center
Фотография © Sanqian Visual Image Art
Культурно-развлекательный комплекс GATE M Dream Center
Фотография © Xia Zhi
Культурно-развлекательный комплекс GATE M Dream Center
Фотография © Liu Guowei
Культурно-развлекательный комплекс GATE M Dream Center
Фотография © Xia Zhi
Культурно-развлекательный комплекс GATE M Dream Center
Фотография © Sanqian Visual Image Art
Культурно-развлекательный комплекс GATE M Dream Center
Фотография © Sanqian Visual Image Art
Культурно-развлекательный комплекс GATE M Dream Center
Фотография © Liu Guowei
Культурно-развлекательный комплекс GATE M Dream Center
Фотография © Sanqian Visual Image Art
Культурно-развлекательный комплекс GATE M Dream Center
Фотография © Xia Zhi
Культурно-развлекательный комплекс GATE M Dream Center
Фотография © Xia Zhi
Культурно-развлекательный комплекс GATE M Dream Center
Фотография © Xia Zhi
Культурно-развлекательный комплекс GATE M Dream Center
Фотография © Xia Zhi
Культурно-развлекательный комплекс GATE M Dream Center
Фотография © Sanqian Visual Image Art
Культурно-развлекательный комплекс GATE M Dream Center
Фотография © Xia Zhi
Культурно-развлекательный комплекс GATE M Dream Center
Фотография © Xia Zhi
Культурно-развлекательный комплекс GATE M Dream Center
Фотография © Xia Zhi
Культурно-развлекательный комплекс GATE M Dream Center
Фотография © Sanqian Visual Image Art
Культурно-развлекательный комплекс GATE M Dream Center
Фотография © Tian Fangfang
Культурно-развлекательный комплекс GATE M Dream Center
Фотография © Tian Fangfang
Культурно-развлекательный комплекс GATE M Dream Center
Фотография © Xia Zhi
Культурно-развлекательный комплекс GATE M Dream Center
Фотография © Xia Zhi
Культурно-развлекательный комплекс GATE M Dream Center
Фотография © Tian Fangfang
Культурно-развлекательный комплекс GATE M Dream Center
Фотография © Tian Fangfang
Культурно-развлекательный комплекс GATE M Dream Center
Фотография © Liu Guowei
Культурно-развлекательный комплекс GATE M Dream Center
© MVRDV
Культурно-развлекательный комплекс GATE M Dream Center
© MVRDV
Культурно-развлекательный комплекс GATE M Dream Center
© MVRDV
Культурно-развлекательный комплекс GATE M Dream Center
© MVRDV
Культурно-развлекательный комплекс GATE M Dream Center
© MVRDV
Культурно-развлекательный комплекс GATE M Dream Center
© MVRDV
Культурно-развлекательный комплекс GATE M Dream Center
© MVRDV
Культурно-развлекательный комплекс GATE M Dream Center
© MVRDV
Культурно-развлекательный комплекс GATE M Dream Center
© MVRDV
Культурно-развлекательный комплекс GATE M Dream Center
© MVRDV
Культурно-развлекательный комплекс GATE M Dream Center
© MVRDV
Культурно-развлекательный комплекс GATE M Dream Center
© MVRDV
Культурно-развлекательный комплекс GATE M Dream Center
© MVRDV
Культурно-развлекательный комплекс GATE M Dream Center
© MVRDV
M Factory. Культурно-развлекательный комплекс GATE M Dream Center
© MVRDV
M Factory. Культурно-развлекательный комплекс GATE M Dream Center
© MVRDV
M Factory. Культурно-развлекательный комплекс GATE M Dream Center
© MVRDV
M Factory. Культурно-развлекательный комплекс GATE M Dream Center
© MVRDV
M Factory. Культурно-развлекательный комплекс GATE M Dream Center
© MVRDV
M Factory. Культурно-развлекательный комплекс GATE M Dream Center
© MVRDV
M Factory. Культурно-развлекательный комплекс GATE M Dream Center
© MVRDV
M Factory. Культурно-развлекательный комплекс GATE M Dream Center
© MVRDV
M Factory. Культурно-развлекательный комплекс GATE M Dream Center
© MVRDV
Силосное цементохранилище. Культурно-развлекательный комплекс GATE M Dream Center
© MVRDV
Силосное цементохранилище. Культурно-развлекательный комплекс GATE M Dream Center
© MVRDV
Силосное цементохранилище. Культурно-развлекательный комплекс GATE M Dream Center
© MVRDV
Силосное цементохранилище. Культурно-развлекательный комплекс GATE M Dream Center
© MVRDV
Силосное цементохранилище. Культурно-развлекательный комплекс GATE M Dream Center
© MVRDV
Силосное цементохранилище. Культурно-развлекательный комплекс GATE M Dream Center
© MVRDV
Силосное цементохранилище. Культурно-развлекательный комплекс GATE M Dream Center
© MVRDV

Избранные архитекторы:

  • Рафаэль Монео
  • Николас Гримшо
  • Ренцо Пьяно
  • Ричард Майер
  • Сигэру Бан
  • Тадао Андо
  • Эдуарду Соту де Мора
  • Стивен Холл
  • Ричард Роджерс

Проект из каталога (случайный выбор)

Жилой комплекс Turley Areal
Макс Дудлер, 2017 – 2021
Жилой комплекс Turley Areal

Избранные постройки:

  • Здание Европейского Парламента – реконструкция
  • Смитсоновский национальный музей афроамериканской истории и культуры
  • Комплекс «Чаоян Парк Плаза»
  • Жилой комплекс Lighthouse
  • ВТЦ Башня 2 – проект BIG
  • Архитектурная школа в Марн-ла-Валле
  • Музей Уэст-Банд
  • Театр Agora
  • Реконструкция книжного магазина Shanghai Book City

Зарубежные новости