Школа имени Эдмона Симеони и культурный центр
Фото © Audric Verdier
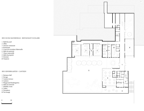
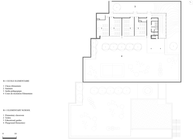
Уроженка Корсики Амелия Тавелла и ее бюро выделили для культурного центра целый корпус новой постройки: он расположен ниже всего по склону, рядом со стадионом для игры в регби, что тоже очень уместно. Выше размещен детский сад, а наверху, ближе всего к центру города, – начальная школа. Кровли используются как рекреационные зоны: школьники играют на крыше детского сада, а малыши – культурного центра. Многоуровневая композиция вдохновлена типичной для юга Франции, включая Корсику, схемой террасного земледелия.
Школа имени Эдмона Симеони и культурный центр
Фото © Audric Verdier
Вписанные в рельеф низкие объемы окончательно «исчезают» в ландшафте благодаря облицовке фасадов местным камнем в технике дикой кладки. Тавелла в своих проектах всегда стремится уступить природе первенство (вспомним другую ее школу, в Провансе), и ее работа в Лумио продолжает эту линию, тем более что здесь речь идет о живописной гористой местности, спускающейся к Средиземному морю.
Школа имени Эдмона Симеони и культурный центр
Фото © Audric Verdier
Три корпуса объединяет полуобщественная улица-лестница, напоминающая зрительские ряды летнего театра. Ее пластичную форму из бетона разработала по просьбе Тавеллы художница Полина Геррье.
Школа имени Эдмона Симеони и культурный центр
Фото © Audric Verdier
Школа имени Эдмона Симеони и культурный центр
Фото © Audric Verdier
Школа имени Эдмона Симеони и культурный центр
Фото © Guillaume Porche
