Начальная школа имени Огюста Бенуа
Фото © Thibaut Dini
Однако контекст накладывает свои ограничения. Так, участок под строительство начальной школы с детским садом граничит с расположенным на вершине холма историческим центром Кабриеса и никак нельзя было нарушить складывавшийся тысячелетиями природно-рукотворный ландшафт.
Начальная школа имени Огюста Бенуа
Фото © Thibaut Dini
Корсиканский архитектор Амелия Тавелла стремилась создать здесь постройку, которая бы не заслоняла горизонт и была едва заметна в монументальном пейзаже. Из этого родилась метафора «питона» – змеи и вершины холма или горы (в нашем случае – места, где стоит Кабриес): эти слова по-французски звучат одинаково.
Начальная школа имени Огюста Бенуа
Фото © Thibaut Dini
Здание школы как настоящий питон извивается вдоль горизонталей рельефа, пытаясь слиться с горной породой: фасады покрывает кремовый известняк, попадающий в тон колориту местности и исторической застройки Кабриеса, поднимающейся по склону над школьным участком.
Тавелла считает, что «укорененная в почве» школа поможет сформировать идентичность учащихся.
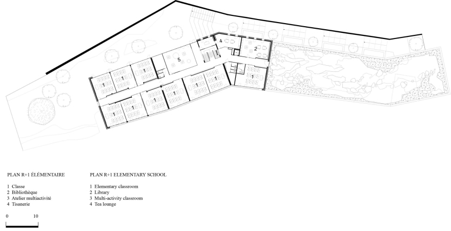
Детский сад расположен на первом этаже, классы начальной школы – на втором, откуда ученики видят панораму ландшафта и свои перспективы, в прямом и переносном смысле. В программу также входит спортивный зал, служащий одновременно городским пространством для собраний, концертов и других мероприятий.
Начальная школа имени Огюста Бенуа
Фото © Thibaut Dini
Начальная школа имени Огюста Бенуа
Фото © Thibaut Dini
Начальная школа имени Огюста Бенуа
Фото © Thibaut Dini
Начальная школа имени Огюста Бенуа
Фото © Thibaut Dini
