RSS
Øêîëà èìåíè Ýäìîíà Ñèìåîíè è êóëüòóðíûé öåíòð
Ôîòî © Audric Verdier

Øêîëà èìåíè Ýäìîíà Ñèìåîíè è êóëüòóðíûé öåíòð


/ Edmond Simeoni school and cultural space

èíôîðìàöèÿ:

Amelia Tavella Architectes
Amelia Tavella Architectes / Ôðàíöèÿ
Øêîëà èìåíè Ýäìîíà Ñèìåîíè è êóëüòóðíûé öåíòð
Ôîòî © Audric Verdier

Àðõè.ðó îá ýòîì îáúåêòå:

13.02.2025

Íèíà Ôðîëîâà. Øêîëà äâîéíîãî íàçíà÷åíèÿ

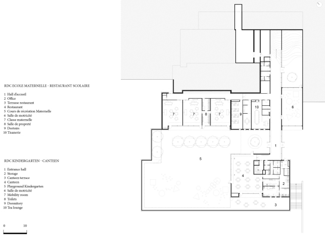
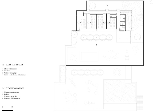
Êîìïëåêñ øêîëû ïî ïðîåêòó áþðî Àìåëèè Òàâåëëû â êîììóíå Ëóìèî íà îñòðîâå Êîðñèêà âêëþ÷àåò êóëüòóðíûé öåíòð äëÿ ìåñòíûõ æèòåëåé.

÷èòàòü äàëüøå
Øêîëà èìåíè Ýäìîíà Ñèìåîíè è êóëüòóðíûé öåíòð
Ôîòî © Audric Verdier
Øêîëà èìåíè Ýäìîíà Ñèìåîíè è êóëüòóðíûé öåíòð
Ôîòî © Audric Verdier
Øêîëà èìåíè Ýäìîíà Ñèìåîíè è êóëüòóðíûé öåíòð
Ôîòî © Audric Verdier
Øêîëà èìåíè Ýäìîíà Ñèìåîíè è êóëüòóðíûé öåíòð
Ôîòî © Guillaume Porche
Øêîëà èìåíè Ýäìîíà Ñèìåîíè è êóëüòóðíûé öåíòð
Ôîòî © Thibaut Dini
Øêîëà èìåíè Ýäìîíà Ñèìåîíè è êóëüòóðíûé öåíòð
Ôîòî © Thibaut Dini
Øêîëà èìåíè Ýäìîíà Ñèìåîíè è êóëüòóðíûé öåíòð
Ôîòî © Thibaut Dini
Øêîëà èìåíè Ýäìîíà Ñèìåîíè è êóëüòóðíûé öåíòð
Ôîòî © Thibaut Dini
Øêîëà èìåíè Ýäìîíà Ñèìåîíè è êóëüòóðíûé öåíòð
Ôîòî © Thibaut Dini
Øêîëà èìåíè Ýäìîíà Ñèìåîíè è êóëüòóðíûé öåíòð
Ôîòî © Thibaut Dini
Øêîëà èìåíè Ýäìîíà Ñèìåîíè è êóëüòóðíûé öåíòð
Ôîòî © Thibaut Dini
Øêîëà èìåíè Ýäìîíà Ñèìåîíè è êóëüòóðíûé öåíòð
Ôîòî © Thibaut Dini
Øêîëà èìåíè Ýäìîíà Ñèìåîíè è êóëüòóðíûé öåíòð
Ôîòî © Thibaut Dini
Øêîëà èìåíè Ýäìîíà Ñèìåîíè è êóëüòóðíûé öåíòð
Ôîòî © Thibaut Dini
Øêîëà èìåíè Ýäìîíà Ñèìåîíè è êóëüòóðíûé öåíòð
Ôîòî © Thibaut Dini
Øêîëà èìåíè Ýäìîíà Ñèìåîíè è êóëüòóðíûé öåíòð
Ôîòî © Guillaume Porche
Øêîëà èìåíè Ýäìîíà Ñèìåîíè è êóëüòóðíûé öåíòð
Ôîòî © Thibaut Dini
Øêîëà èìåíè Ýäìîíà Ñèìåîíè è êóëüòóðíûé öåíòð
Ôîòî © Thibaut Dini
Øêîëà èìåíè Ýäìîíà Ñèìåîíè è êóëüòóðíûé öåíòð
Ôîòî © Thibaut Dini
Øêîëà èìåíè Ýäìîíà Ñèìåîíè è êóëüòóðíûé öåíòð
Ôîòî © Thibaut Dini
Øêîëà èìåíè Ýäìîíà Ñèìåîíè è êóëüòóðíûé öåíòð
Ôîòî © Thibaut Dini
Øêîëà èìåíè Ýäìîíà Ñèìåîíè è êóëüòóðíûé öåíòð
Ôîòî © Thibaut Dini
Øêîëà èìåíè Ýäìîíà Ñèìåîíè è êóëüòóðíûé öåíòð
Ôîòî © Thibaut Dini
Øêîëà èìåíè Ýäìîíà Ñèìåîíè è êóëüòóðíûé öåíòð
Ôîòî © Thibaut Dini
Øêîëà èìåíè Ýäìîíà Ñèìåîíè è êóëüòóðíûé öåíòð
Ôîòî © Thibaut Dini
Øêîëà èìåíè Ýäìîíà Ñèìåîíè è êóëüòóðíûé öåíòð
Ôîòî © Thibaut Dini
Øêîëà èìåíè Ýäìîíà Ñèìåîíè è êóëüòóðíûé öåíòð
Ôîòî © Thibaut Dini
Øêîëà èìåíè Ýäìîíà Ñèìåîíè è êóëüòóðíûé öåíòð
© Amelia Tavella Architectes
Øêîëà èìåíè Ýäìîíà Ñèìåîíè è êóëüòóðíûé öåíòð
© Amelia Tavella Architectes
Øêîëà èìåíè Ýäìîíà Ñèìåîíè è êóëüòóðíûé öåíòð
© Amelia Tavella Architectes
Øêîëà èìåíè Ýäìîíà Ñèìåîíè è êóëüòóðíûé öåíòð
© Amelia Tavella Architectes
Øêîëà èìåíè Ýäìîíà Ñèìåîíè è êóëüòóðíûé öåíòð
© Amelia Tavella Architectes
Øêîëà èìåíè Ýäìîíà Ñèìåîíè è êóëüòóðíûé öåíòð
© Amelia Tavella Architectes
Øêîëà èìåíè Ýäìîíà Ñèìåîíè è êóëüòóðíûé öåíòð
© Amelia Tavella Architectes
Øêîëà èìåíè Ýäìîíà Ñèìåîíè è êóëüòóðíûé öåíòð
© Amelia Tavella Architectes
Øêîëà èìåíè Ýäìîíà Ñèìåîíè è êóëüòóðíûé öåíòð
© Amelia Tavella Architectes
Øêîëà èìåíè Ýäìîíà Ñèìåîíè è êóëüòóðíûé öåíòð
© Amelia Tavella Architectes

Èçáðàííûå àðõèòåêòîðû:

  • Òî¸î Èòî
  • Ðåíöî Ïüÿíî
  • Ïåòåð Öóìòîð
  • Ýäóàðäó Ñîòó äå Ìîðà
  • Ðàôàýëü Ìîíåî
  • Áåðíàð ×óìè
  • Ïèòåð Àéçåíìàí
  • Ìàññèìèëèàíî Ôóêñàñ
  • Êðèñòèàí äå Ïîðòçàìïàðê

Ïðîåêò èç êàòàëîãà (ñëó÷àéíûé âûáîð)

Îôèñíûé êîìïëåêñ Îëä Áåéëè
Êåí Øàòòëâîðò, 2007
Îôèñíûé êîìïëåêñ Îëä Áåéëè

Èçáðàííûå ïîñòðîéêè:

  • Êîìïëåêñ Ìåæäóíàðîäíîé ñàäîâîä÷åñêîé âûñòàâêè
  • Ëåòíèé ïàâèëüîí Ãàëåðåè Ñåðïåíòàéí 2015
  • Ïðîåêò «Îëèìï»
  • Çàë ñòîëåòèÿ
  • Ñîöèàëüíûé æèëîé êîìïëåêñ â ðàéîíå Êàðàáàí÷åëü
  • Êîìïëåêñ Feltrinelli Porta Volta
  • Îðàíæåðåè â ïàðêå Ìàðèíà-Áýé-Ñàóò
  • Îëèìïèéñêèé ñïîðòèâíûé êîìïëåêñ â Àôèíàõ
  • Êóëüòóðíûé öåíòð â ×åðíîãîëîâêå

Çàðóáåæíûå íîâîñòè