Спортивный зал имени Людивин Фюрнон в Ниме
Фото © Camille Gharbi
Очень важным было придать постройке индивидуальности в соседстве с яркими фасадами ТЦ, особенно при взгляде из проезжающих мимо автомобилей. Так у нее появилась тканевая оболочка разных оттенков синего, голубого и черного. Ее автор – заслуженный живописец Ален Клеман (Alain Clément), родившийся в 1941 под Парижем, но работающий в Ниме. Это произведение напоминает о производстве текстиля, принесшем городу процветание на рубеже Средних веков и Нового времени. Гамма взята у ткани деним, то есть буквально de Nîmes, «из Нима», ткавшейся здесь с XVI века для парусов из белых и синих хлопчатобумажных нитей, но по-настоящему прославившейся в современную эпоху, когда из нее стали делать рабочую одежду, а Леви Страусс сшил первые джинсы.
Спортивный зал имени Людивин Фюрнон в Ниме
Фото © Camille Gharbi
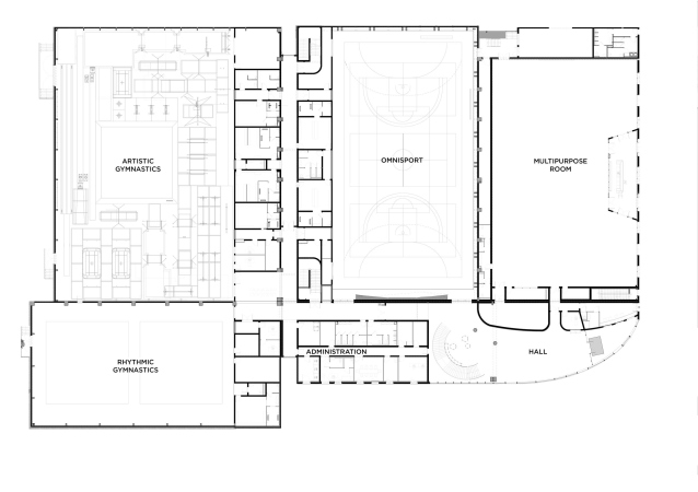
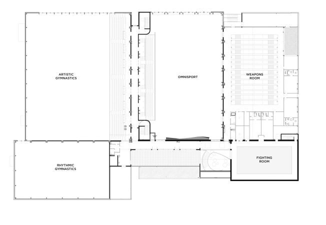
Изгиб фасада-панно скрывает углы постройки и плавно подводит посетителя к главному входу, за которым расположены просторный вестибюль, административные и спортивные помещения. В программу также входят переговорная, медицинский кабинет, прачечная.
Спортивный зал имени Людивин Фюрнон в Ниме
Фото © Camille Gharbi
В здании использована гибридная деревянно-бетонная конструкция, из дерева также выполнены каркасы внутренних стен, оно широко использовано и в отделке. Среди эко-компонентов проекта – геотермальная система отопления и охлаждения помещений, солнечные батареи на кровле.
Спортивный зал имени Людивин Фюрнон в Ниме
Фото © Camille Gharbi
Спортивный зал имени Людивин Фюрнон в Ниме
Фото © Camille Gharbi
