RSS
Спортивный зал имени Людивин Фюрнон в Ниме
Фото © Camille Gharbi

Спортивный зал имени Людивин Фюрнон в Ниме


/ Ludivine Furnon Sports Hall in Nîmes

информация:

Ateliers A+ / Франция
Спортивный зал имени Людивин Фюрнон в Ниме
Фото © Camille Gharbi

Архи.ру об этом объекте:

10.12.2024

Нина Фролова. «Джинсовый» фасад

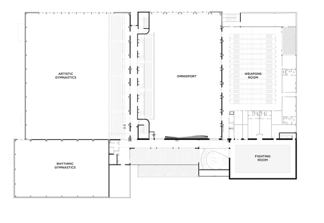
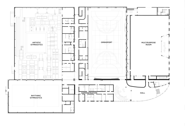
Спортивный зал в Ниме на юге Франции по проекту бюро Ateliers A+ получил фасад, вдохновленный текстильной историей города.

читать дальше
Спортивный зал имени Людивин Фюрнон в Ниме
Фото © Camille Gharbi
Спортивный зал имени Людивин Фюрнон в Ниме
Фото © Camille Gharbi
Спортивный зал имени Людивин Фюрнон в Ниме
Фото © Camille Gharbi
Спортивный зал имени Людивин Фюрнон в Ниме
Фото © Camille Gharbi
Спортивный зал имени Людивин Фюрнон в Ниме
Фото © Camille Gharbi
Спортивный зал имени Людивин Фюрнон в Ниме
Фото © Camille Gharbi
Спортивный зал имени Людивин Фюрнон в Ниме
Фото © Camille Gharbi
Спортивный зал имени Людивин Фюрнон в Ниме
Фото © Camille Gharbi
Спортивный зал имени Людивин Фюрнон в Ниме
Фото © Camille Gharbi
Спортивный зал имени Людивин Фюрнон в Ниме
Фото © Camille Gharbi
Спортивный зал имени Людивин Фюрнон в Ниме
Фото © Camille Gharbi
Спортивный зал имени Людивин Фюрнон в Ниме
Фото © Camille Gharbi
Спортивный зал имени Людивин Фюрнон в Ниме
Фото © Camille Gharbi
Спортивный зал имени Людивин Фюрнон в Ниме
Фото © Camille Gharbi
Спортивный зал имени Людивин Фюрнон в Ниме
© Ateliers A+
Спортивный зал имени Людивин Фюрнон в Ниме
© Ateliers A+
Спортивный зал имени Людивин Фюрнон в Ниме
© Ateliers A+
Спортивный зал имени Людивин Фюрнон в Ниме
© Ateliers A+
Спортивный зал имени Людивин Фюрнон в Ниме
© Ateliers A+
Спортивный зал имени Людивин Фюрнон в Ниме
© Ateliers A+
Спортивный зал имени Людивин Фюрнон в Ниме
© Ateliers A+
Спортивный зал имени Людивин Фюрнон в Ниме
© Ateliers A+
Спортивный зал имени Людивин Фюрнон в Ниме
© Ateliers A+

Избранные архитекторы:

  • Стивен Холл
  • Заха Хадид
  • Арата Исодзаки
  • Дэвид Аджайе
  • Уильям Олсоп
  • Дэвид Чипперфильд
  • Даниэль Либескинд
  • Петер Цумтор
  • Рафаэль Виньоли

Проект из каталога (случайный выбор)

Избранные постройки:

  • Комплекс Fake Hills
  • Новый павильон комплекса Messe Basel
  • Генплан района Euralille
  • Алезия – музейный и археологический парк
  • Вилла «Дом в Бордо»
  • Комплекс Nemausus
  • Башня Rothschild Tower
  • Конференц-центр Большого Колумбуса
  • Фуникулер Хунгербургбан

Зарубежные новости

Симулятор «зеленой» жизни
05.03.2026

Симулятор «зеленой» жизни

Томас Хезервик
От пещеры до звезды
04.03.2026

От пещеры до звезды

Станислав Субботин
Дарья Кириллова
Горный страж
03.03.2026

Горный страж

Артем Агекян