Разработать нужно было современный жилой квартал, насыщенный необходимой инфраструктурой, отвечающий запросам горожан. Позаботиться нужно было не только о создании комфортной среды, но и об итоговой стоимости жилья и последующего обслуживания зданий и придомовых территорий – требовались только экономически целесообразные решения.
Итоговые защита проектов и подведение итогов состоялись в начале апреля, как и было запланировано, но в удаленном формате, с соблюдением условий самоизоляции. Призовой фонд конкурса составил 900 тысяч рублей, 500 из них досталось победителю, АБ «СОЮЗ». Победивший проект будет рекомендован к реализации. Ниже – он и работы еще двух призеров.
Первое место
Архитектурное бюро «СОЮЗ»Концепция комплексной застройки квартала в Энгельсе
© АБ «СОЮЗ»
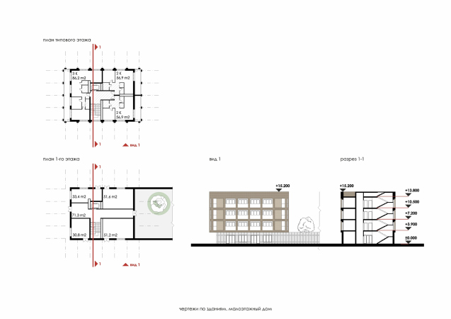
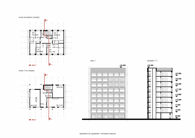
Архитекторы стремились не только создать позитивную и комфортную атмосферу внутри квартала, но также улучшить качество жизни жителей всего района, создавая новые точки притяжения, рабочие места и визуально привлекательную среду. Проектом предусмотрено несколько разновидностей жилых номов – секционные разноуровневые, 18-этажные башни, малоэтажные. Расчет – на привлечение разных категорий потенциальных покупателей. Общественная инфраструктура занимает первые этажи жилых зданий. Дворы свободны от машин, зато там устроены площадки для игр, спорта и отдыха: их необычный ландшафт формируется за счет насыпных холмов. Спортплощадки-коробки вынесены за пределы дворов и доступны для жителей окрестностей. По периметру квартала организован «зеленый пояс» – парк, где можно бегать, прогуливаться, кататься на велосипедах. Вообще, озеленению в проекте уделяется много внимания.
Оформление и фасадные материалы домов зависят от их типологии. Башни отделаны металлическими цветными кассетами, секционные дома – бетонными пористыми панелями, малоэтажные – кирпичом со сложной фигурной кладкой. Четыре двора – четыре цветовых кода (зеленый, красный, желтый и синий). Планировки квартир модульные, но вариативные. В некоторых предусмотрены летние помещения.
***
Второе место
Архитектурное бюро «План Б»Концепция комплексной застройки квартала в Энгельсе
АБ «План Б»
Задача, которую ставили перед собой архитекторы, – включение обновленной территории в сеть городских пространств, обеспечение функциональных связей, наполнение жилыми домами и объектами общественно-деловой инфраструктуры, создание структуры застройки, соизмеримой с существующей тканью города.
Домам назначены роли средовых, пластических и высотных акцентов. Заданная система расположения этих акцентов создает удобство в использовании территории и идентификации места. Дворы без машин наполнены площадками для отдыха, а недостающий объем спортплощадок компенсируется наличием физкультурно-оздоровительного комплекса в центре застройки. Также жители района могут пользоваться школьным стадионом.
***
Третье место
Архитектурная студия «Эшер»Концепция комплексной застройки квартала в Энгельсе
Архитектурная студия «Эшер»
В этом проекте сочетаются различные типологии жилья и инфраструктуры. Основа планировочной структуры – это каркас из закрытых кварталов высотой до 9 этажей, с коммерцией и террасами на первых ярусах. Дополнительно используются отдельно стоящие башни разной высотности, объединенные стилобатами.
На улицах, граничащих с гаражными кооперативами, предполагается высадка взрослых деревьев. Сами гаражи предлагается реконструировать и наполнить новым смыслом – превратить в «торговые ряды», которые могут использоваться как на постоянной основе, так и в формате ярмарок. Это своего рода компромисс между гипотетическим сносом ГСК и простым «озабореванием» территории.
