Храм в Карелии
© Мастерская «ПРОХРАМ»
Храм в Карелии
информация:
-
статус
в процессе реализации -
даты
01.2024 / 08.2024 -
место
Куркиёки -
координаты
61.281015, 29.914354 -
функция
Культовый / Церковь -
теги
send.project -
общая площадь
90,42 м2

Дмитрий Остроумов
Dmitry Ostroumov / РоссияМастерская «Прохрам»
Prohram Studio / Россияавторский коллектив
Автор проекта: Дмитрий Остроумов
партнеры, заказчики, смежники
Заказчик: Валаамский Спасо-Преображенский ставропигиальный мужской монастырь, в лице епископа Троицкого Панкратия (Жердева).
награды:
- ЗОЛОТОЙ ЗНАК «Зодчество 2024» в разделе «Проекты» «За идентичность традиции и связь с Севером».
Дипломом «Золотая Капитель 2024» в Новосибирске
Дипломом на конкурсе «Дерево в Архитектуре 2024» в Вологде
Храм в Карелии
© Мастерская «ПРОХРАМ»
Архи.ру об этом объекте:
20.01.2025
Карельская обитель
Храм в честь всех карельских святых планируют строить в небольшом поселке Куркиёки, который находится недалеко от границы Карелии и Ленинградской области, на территории национального парка «Ладожские шхеры». Мастерская «Прохрам» предложила традиционный образ и современные каркасные технологии, а также включение скального массива в интерьер здания.
Описание предоставлено архитекторами Строительство храма приурочено к 800-летию крещения карелов. Заказчик попросил запроектировать храм, отражающий типологию традиционной деревянной архитектуры русского севера, но в то же время решенный в современн... читать дальшеХрам в Карелии
© Мастерская «ПРОХРАМ»
история проекта:
Храм строится в честь всех карельских святых. И его сдача приурочена к 800-летию крещения карелов.
Обратился заказчик, попросил на месте скалы запроектировать храм, отражающий типологию традиционной деревянной архитектуры русского севера, но в то же время решенный в современном ключе с использованием каркасной системы и вентфасада.
описание:
Участок для проектирования расположен на территории близ поселка Куркиёки на ладожских шхерах. Предполагается, что участок станет подворьем монастыря с пасекой и организованной жизнью небольшого количества насельников монастыря.
Доступ туда будет реализован как своды для приезжих на прогулочных катерах, так и с материковой части. Для проектирования выбрана самая высокая точка территории, на которой расположена большая скала, выходящая из земли.
Архитектура храма аскетична, она сочетает концепты древних церквей Русского Севера и современные лаконичные каркасные здания. Одной из задач было вписать ее в окружающий ландшафт, там, за счёт высокого цоколя, облицованного грубым камнем, она будто вырастает из скалы, на которой стоит.
Здание храма будет строиться по технологии каркасного дома на бетонном основании. В качестве утеплителя используется эковата, широко применяемая в этом районе.
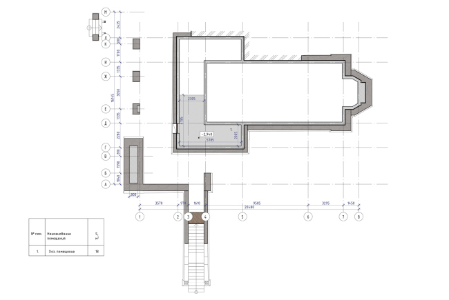
Храм будет находиться на скале, поэтому в силу перепада высот появилась возможность в цокольном этаже устроить трапезную, в интерьер которой будет интегрирована скала. В отделке фасада использованы каменные декоративные элементы, также фасады зашиты деревянным планкеном по типу вентфасада.
Доступ туда будет реализован как своды для приезжих на прогулочных катерах, так и с материковой части. Для проектирования выбрана самая высокая точка территории, на которой расположена большая скала, выходящая из земли.
Архитектура храма аскетична, она сочетает концепты древних церквей Русского Севера и современные лаконичные каркасные здания. Одной из задач было вписать ее в окружающий ландшафт, там, за счёт высокого цоколя, облицованного грубым камнем, она будто вырастает из скалы, на которой стоит.
Здание храма будет строиться по технологии каркасного дома на бетонном основании. В качестве утеплителя используется эковата, широко применяемая в этом районе.
Храм будет находиться на скале, поэтому в силу перепада высот появилась возможность в цокольном этаже устроить трапезную, в интерьер которой будет интегрирована скала. В отделке фасада использованы каменные декоративные элементы, также фасады зашиты деревянным планкеном по типу вентфасада.
Храм в Карелии
© Мастерская «ПРОХРАМ»
Храм в Карелии
© Мастерская «ПРОХРАМ»
Храм в Карелии
© Мастерская «ПРОХРАМ»
Храм в Карелии. Генплан
© Мастерская «ПРОХРАМ»
Храм в Карелии. Ситуационный план
© Мастерская «ПРОХРАМ»
Храм в Карелии. Южный фасад
© Мастерская «ПРОХРАМ»
Храм в Карелии. Западный фасад
© Мастерская «ПРОХРАМ»
Храм в Карелии. Северный фасад
© Мастерская «ПРОХРАМ»
Храм в Карелии. Восточный фасад
© Мастерская «ПРОХРАМ»
Храм в Карелии. План на отметке -2000
© Мастерская «ПРОХРАМ»
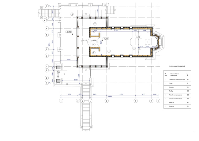
Храм в Карелии. План на отметке 0.000
© Мастерская «ПРОХРАМ»
Храм в Карелии
© Мастерская «ПРОХРАМ»
Архитекторы – партнеры Архи.ру:
Проект из каталога (случайный выбор)
Постройки и проекты (новые записи):
Новости российской архитектуры:
17.10.2025
Песнь совриска и пламени
Никита Явейн, Сергей Падалко, Андрей Гнездилов, Максимилиан Мосешвили17.10.2025
Под небом голубым
Никита Явейн16.10.2025
Русский Север и Арктика: четыре проекта
Григорий Соломин16.10.2025