Винодельня «Гурдау»
Фото © BoysPlayNice
Типичное для здания винодельни расположение среди виноградников традиционно накладывает ответственность на архитектора: постройка не должна нарушать ландшафт, в случае «Гурдау» совершенно идиллический.
Винодельня «Гурдау»
Фото © BoysPlayNice
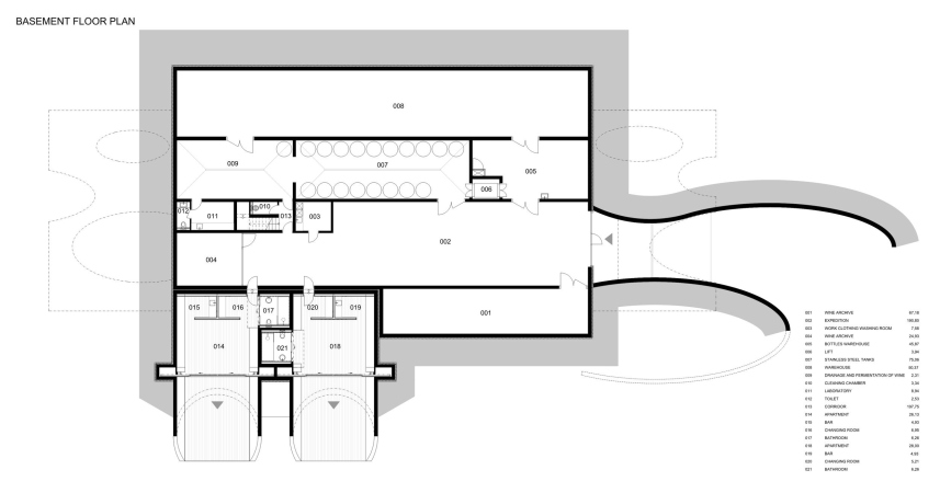
Поэтому – что тоже типично – первый ярус постройки утоплен в землю, что позволяет поддерживать там стабильную прохладу, подходящую для производственных помещений и склада готовой продукции. Верхний ярус скрыт под волнообразной озелененной кровлей и выглядит «как холм среди других холмов». Он вмещает залы для дегустации и торговые пространства.
Винодельня «Гурдау»
Фото © BoysPlayNice
Маскировка не была единственным соображением для автора проекта. Важным было дать посетителям винодельни насладиться окружающим пейзажем, поэтому в теплое время интерьер можно связать с открытыми террасами, раздвинув стеклянные панели фасада, и даже в прохладную погоду сквозь них хорошо видны виноградники, уходящие к австрийской границе равнины, далекая возвышенность Палава. Такие же возможности есть у тех, кто останется на винодельне переночевать: для них предусмотрены две квартиры.
Выбор материалов одновременно лаконичен и «органичен»: открытый бетон, древесина дуба и акации. Среди экологических компонентов проекта – затенение деревьями, которые высажены в том числе в проемах кровли, ее озеленение, защита от солнца стеклянных фасадов с помощью деревянных ламелей и разворачиваемых в солнечные дни тканевых навесов, тепловой насос, система сбора дождевой воды, которая затем идет на полив виноградников.
Материалы предоставлены агентством Linka.
Винодельня «Гурдау»
Фото © BoysPlayNice
Винодельня «Гурдау»
Фото © BoysPlayNice
Винодельня «Гурдау»
Фото © BoysPlayNice
Винодельня «Гурдау»
Фото © BoysPlayNice
Винодельня «Гурдау»
Фото © BoysPlayNice
Винодельня «Гурдау»
Фото © BoysPlayNice
Винодельня «Гурдау»
Фото © BoysPlayNice
Винодельня «Гурдау»
Фото © BoysPlayNice
Винодельня «Гурдау»
Фото © BoysPlayNice
