Художественный музей 798CUBE в Пекине
Фотография © Zhu Runzi / предоставлена Studio Zhu Pei
Художественный музей 798CUBE в Пекине
Фотография © Zhu Runzi / предоставлена Studio Zhu Pei
Художественный музей 798CUBE в Пекине
Фотография © Zhu Runzi / предоставлена Studio Zhu Pei
К концу XX века пустующие ангары и корпуса стали занимать художники и арт-институции. Постепенно возник своеобразный центр современной культуры с галереями, мастерскими, магазинами. Интересно, что в отличие от других подобных центров полностью производство здесь никогда не останавливалось. Наверное, именно такая брутальная, предельно честная атмосфера и привлекла людей искусства.
Художественный музей 798CUBE в Пекине
Фотография © Zhu Runzi / предоставлена Studio Zhu Pei
Художественный музей 798CUBE в Пекине
Фотография © Zhu Runzi / предоставлена Studio Zhu Pei
Бюро Studio Zhu Pei специализируется на общественно-культурных проектах такого рода (например, параллельно бюро работало над арт-центром OCT в Цзыбо) и уже построило в квартале два выставочных пространства – Pace Art Museum (2009) и Minsheng Museum of Modern Art (2016). Третий объект получил название 789CUBE Art Museum.
Художественный музей 798CUBE в Пекине
Фотография © Zhu Runzi / предоставлена Studio Zhu Pei
Художественный музей 798CUBE в Пекине
Фотография © Jin Weiqi / предоставлена Studio Zhu Pei
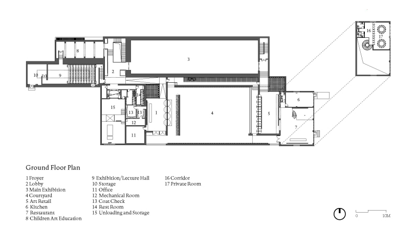
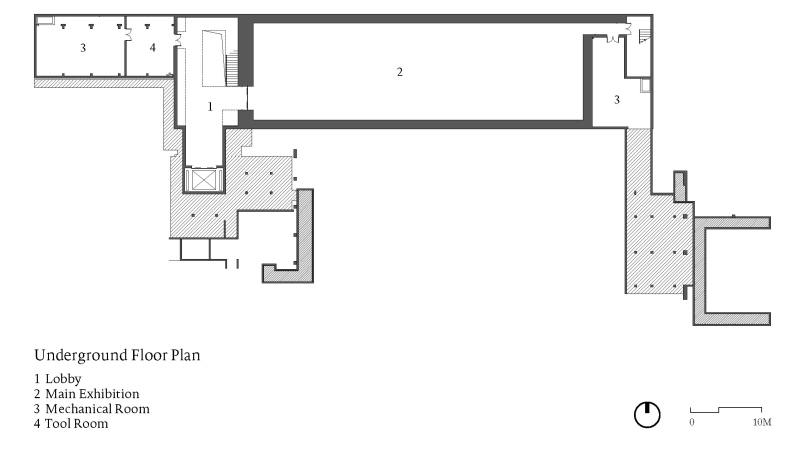
Сами архитекторы называются свой проект «инъекцией», так как им необходимо было в плотной застройке точно занять свободное пространство новыми объемами, которые бы собрали реконструированные промышленные объекты в единый комплекс. Конечно же, все старое было внимательно изучено и максимально сохранено.
Основными материалами вполне ожидаемо стали открытый бетон и красный кирпич. Несколько разного размера объемов вмещают безопорные, легко трансформируемые выставочные пространства и детский образовательный центр. Соединяет их внутренний двор, который со стороны улицы закрыт лишь фактурной стеной из отлитых на месте бетонных блоков. Он задуман как основная общественная зона всего центра, поэтому важным элементом стала полотняная сдвижная кровля, провисающая вниз эффектными полуцилиндрами. Ее приводит в движение балочный кран, который также может использоваться и для развески арт-объектов. Мотив перевернутых арок архитекторы затем повторяют и в одном из залов, но уже в бетоне.
Художественный музей 798CUBE в Пекине
Фотография © Jin Weiqi / предоставлена Studio Zhu Pei
Художественный музей 798CUBE в Пекине
Фотография © Jin Weiqi / предоставлена Studio Zhu Pei
Художественный музей 798CUBE в Пекине
Фотография © Zhu Runzi / предоставлена Studio Zhu Pei
Художественный музей 798CUBE в Пекине
Фотография © Zhu Runzi / предоставлена Studio Zhu Pei
Художественный музей 798CUBE в Пекине
Фотография © Jin Weiqi / предоставлена Studio Zhu Pei
Художественный музей 798CUBE в Пекине
Фотография © Zhu Runzi / предоставлена Studio Zhu Pei
Художественный музей 798CUBE в Пекине
© Studio Zhu Pei
Художественный музей 798CUBE в Пекине
© Studio Zhu Pei
Художественный музей 798CUBE в Пекине
© Studio Zhu Pei
Художественный музей 798CUBE в Пекине
© Studio Zhu Pei
