|
Бывшее Центральное отделение почты и телеграфа в Тбилиси превращено в гостиницу The Telegraph Hotel 5* по проекту шанхайского бюро Neri&Hu.
Здание почты и телеграфа на проспекте Руставели открылось в 1978: архитекторы Ладо Алекси-Месхишвили и Теймураз Микашавидзе использовали узнаваемую бруталистскую структуру с четкой схемой фасада и большим венчающим карнизом, но вместо бетонных поверхностей здесь применена облицовка туфом из месторождения Болниси на юго-востоке Грузии.

Внешний вид постройки после реконструкции почти не изменился, также сохранена бетонная несущая конструкция, причем часть ее опор и балок раскрыты в интерьер «как есть», без штукатурки и облицовки.

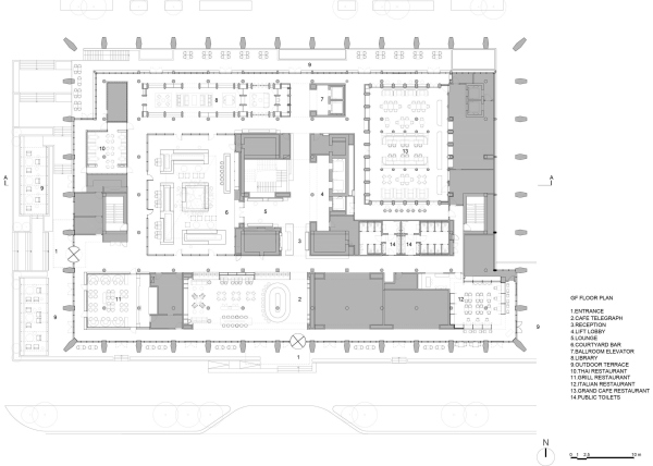
Архитекторы не хотели превращать проект в тщательную реконструкцию прошлого, которую они сравнивают с бальзамированием, поэтому в проекте соседствуют эти грубые бетонные поверхности, кожа, мрамор, роскошные люстры. Важной была и социальная составляющая: первый этаж занят несколькими ресторанами и барами, а также обшитой панелями из орехового дерева библиотекой, то есть открыт вовне и доступен горожанам. Neri&Hu сравнивают это с предшествующей функцией постройки, когда ради писем, посылок, телеграмм и междугородних звонков сюда всегда приходило много тбилисцев.

Эта «городская» тема поддержана на первом этаже использованием травертина на полу и для стойки администратора, сидениями, похожими на уличную мебель, темным металлом и деревом, а также планировкой, напоминающей об улочках Старого Тбилиси.

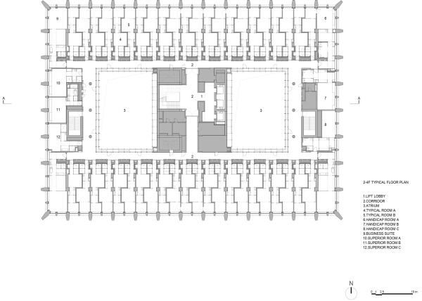
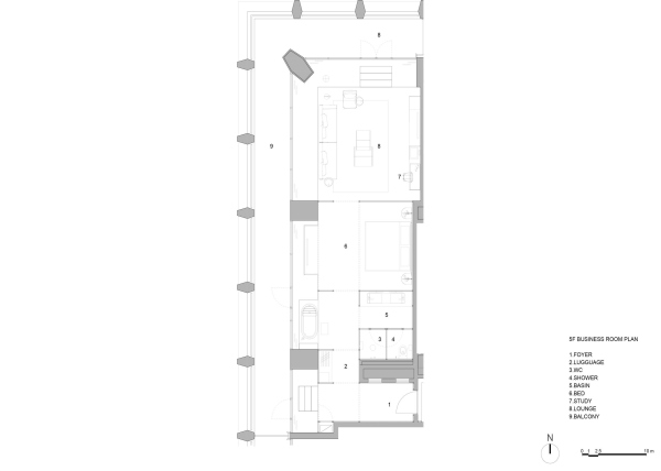
Еще одна тема – проницаемость: как внизу, так и на верхних этажах, где расположены 239 гостиничных номеров, перегородки часто выполнены из рифленого стекла. Так сделано не только в коридорах, но и внутри номеров, где использован металлический «скелет» с такими стеклянными вставками. Источник вдохновения здесь – спальный вагон, что архитекторы выводят из названия заказчика – грузинской компании Silk Road Group (речь идет о путешествии по Шелковому пути).

Номера сгруппированы вокруг озелененного внутреннего двора, который также оформлен наподобие знаменитых тбилисских дворов, и дополнительного атриума. Гостиница The Telegraph HotelФото © Pedro Pegenaute & Silk Road Group
Гостиница The Telegraph HotelФото © Pedro Pegenaute & Silk Road Group
Гостиница The Telegraph HotelФото © Pedro Pegenaute & Silk Road Group
Гостиница The Telegraph HotelФото © Pedro Pegenaute & Silk Road Group
Гостиница The Telegraph HotelФото © Pedro Pegenaute & Silk Road GroupГостиница The Telegraph HotelФото © Pedro Pegenaute & Silk Road GroupГостиница The Telegraph HotelФото © Pedro Pegenaute & Silk Road GroupГостиница The Telegraph HotelФото © Pedro Pegenaute & Silk Road Group
Гостиница The Telegraph HotelФото © Pedro Pegenaute & Silk Road GroupГостиница The Telegraph HotelФото © Pedro Pegenaute & Silk Road GroupГостиница The Telegraph HotelФото © Pedro Pegenaute & Silk Road GroupГостиница The Telegraph HotelФото © Pedro Pegenaute & Silk Road GroupГостиница The Telegraph HotelФото © Pedro Pegenaute & Silk Road GroupГостиница The Telegraph HotelФото © Pedro Pegenaute & Silk Road GroupГостиница The Telegraph HotelФото © Pedro Pegenaute & Silk Road GroupГостиница The Telegraph HotelФото © Pedro Pegenaute & Silk Road GroupГостиница The Telegraph HotelФото © Pedro Pegenaute & Silk Road GroupГостиница The Telegraph HotelФото © Pedro Pegenaute & Silk Road Group
Гостиница The Telegraph HotelФото © Pedro Pegenaute & Silk Road GroupГостиница The Telegraph HotelФото © Pedro Pegenaute & Silk Road GroupГостиница The Telegraph HotelФото © Pedro Pegenaute & Silk Road GroupГостиница The Telegraph HotelФото © Pedro Pegenaute & Silk Road GroupГостиница The Telegraph HotelФото © Pedro Pegenaute & Silk Road GroupГостиница The Telegraph HotelФото © Pedro Pegenaute & Silk Road GroupГостиница The Telegraph HotelФото © Pedro Pegenaute & Silk Road GroupГостиница The Telegraph HotelФото © Pedro Pegenaute & Silk Road GroupГостиница The Telegraph HotelФото © Pedro Pegenaute & Silk Road GroupГостиница The Telegraph HotelФото © Pedro Pegenaute & Silk Road GroupГостиница The Telegraph HotelФото © Pedro Pegenaute & Silk Road GroupГостиница The Telegraph HotelФото © Pedro Pegenaute & Silk Road GroupГостиница The Telegraph HotelФото © Pedro Pegenaute & Silk Road GroupГостиница The Telegraph HotelФото © Pedro Pegenaute & Silk Road GroupГостиница The Telegraph HotelФото © Pedro Pegenaute & Silk Road GroupГостиница The Telegraph HotelФото © Pedro Pegenaute & Silk Road GroupГостиница The Telegraph HotelФото © Pedro Pegenaute & Silk Road GroupГостиница The Telegraph HotelФото © Pedro Pegenaute & Silk Road GroupГостиница The Telegraph HotelФото © Pedro Pegenaute & Silk Road GroupГостиница The Telegraph HotelФото © Pedro Pegenaute & Silk Road GroupГостиница The Telegraph HotelФото © Pedro Pegenaute & Silk Road GroupГостиница The Telegraph HotelФото © Pedro Pegenaute & Silk Road Group
|