RSS
Гостиница The Telegraph Hotel
Фото © Pedro Pegenaute & Silk Road Group

Гостиница The Telegraph Hotel


/ The Telegraph Hotel

информация:

Neri&Hu
Neri&Hu Design and Research Office / Китай
Гостиница The Telegraph Hotel
Фото © Pedro Pegenaute & Silk Road Group

Архи.ру об этом объекте:

02.12.2025

Нина Фролова. Реконструкция без бальзамирования

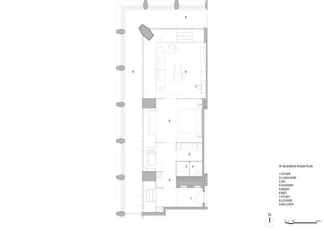
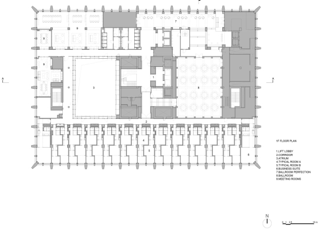
Бывшее Центральное отделение почты и телеграфа в Тбилиси превращено в гостиницу The Telegraph Hotel 5* по проекту шанхайского бюро Neri&Hu.

читать дальше
Гостиница The Telegraph Hotel
Фото © Pedro Pegenaute & Silk Road Group
Гостиница The Telegraph Hotel
Фото © Pedro Pegenaute & Silk Road Group
Гостиница The Telegraph Hotel
Фото © Pedro Pegenaute & Silk Road Group
Гостиница The Telegraph Hotel
Фото © Pedro Pegenaute & Silk Road Group
Гостиница The Telegraph Hotel
Фото © Pedro Pegenaute & Silk Road Group
Гостиница The Telegraph Hotel
Фото © Pedro Pegenaute & Silk Road Group
Гостиница The Telegraph Hotel
Фото © Pedro Pegenaute & Silk Road Group
Гостиница The Telegraph Hotel
Фото © Pedro Pegenaute & Silk Road Group
Гостиница The Telegraph Hotel
Фото © Pedro Pegenaute & Silk Road Group
Гостиница The Telegraph Hotel
Фото © Pedro Pegenaute & Silk Road Group
Гостиница The Telegraph Hotel
Фото © Pedro Pegenaute & Silk Road Group
Гостиница The Telegraph Hotel
Фото © Pedro Pegenaute & Silk Road Group
Гостиница The Telegraph Hotel
Фото © Pedro Pegenaute & Silk Road Group
Гостиница The Telegraph Hotel
Фото © Pedro Pegenaute & Silk Road Group
Гостиница The Telegraph Hotel
Фото © Pedro Pegenaute & Silk Road Group
Гостиница The Telegraph Hotel
Фото © Pedro Pegenaute & Silk Road Group
Гостиница The Telegraph Hotel
Фото © Pedro Pegenaute & Silk Road Group
Гостиница The Telegraph Hotel
Фото © Pedro Pegenaute & Silk Road Group
Гостиница The Telegraph Hotel
Фото © Pedro Pegenaute & Silk Road Group
Гостиница The Telegraph Hotel
Фото © Pedro Pegenaute & Silk Road Group
Гостиница The Telegraph Hotel
Фото © Pedro Pegenaute & Silk Road Group
Гостиница The Telegraph Hotel
Фото © Pedro Pegenaute & Silk Road Group
Гостиница The Telegraph Hotel
Фото © Pedro Pegenaute & Silk Road Group
Гостиница The Telegraph Hotel
Фото © Pedro Pegenaute & Silk Road Group
Гостиница The Telegraph Hotel
Фото © Pedro Pegenaute & Silk Road Group
Гостиница The Telegraph Hotel
Фото © Pedro Pegenaute & Silk Road Group
Гостиница The Telegraph Hotel
Фото © Pedro Pegenaute & Silk Road Group
Гостиница The Telegraph Hotel
Фото © Pedro Pegenaute & Silk Road Group
Гостиница The Telegraph Hotel
Фото © Pedro Pegenaute & Silk Road Group
Гостиница The Telegraph Hotel
Фото © Pedro Pegenaute & Silk Road Group
Гостиница The Telegraph Hotel
Фото © Pedro Pegenaute & Silk Road Group
Гостиница The Telegraph Hotel
Фото © Pedro Pegenaute & Silk Road Group
Гостиница The Telegraph Hotel
Фото © Pedro Pegenaute & Silk Road Group
Гостиница The Telegraph Hotel
Фото © Pedro Pegenaute & Silk Road Group
Гостиница The Telegraph Hotel
Фото © Pedro Pegenaute & Silk Road Group
Гостиница The Telegraph Hotel
Фото © Pedro Pegenaute & Silk Road Group
Гостиница The Telegraph Hotel
Фото © Pedro Pegenaute & Silk Road Group
Гостиница The Telegraph Hotel
Фото © Pedro Pegenaute & Silk Road Group

Избранные архитекторы:

  • Рафаэль Виньоли
  • Кэнго Кума
  • Николас Гримшо
  • Алехандро Аравена
  • Тадао Андо
  • Дэвид Аджайе
  • Фрэнк Гери
  • Массимилиано Фуксас
  • Том Мейн

Проект из каталога (случайный выбор)

Технологический центр McLaren
Норман Фостер, 1998 – 2004
Технологический центр McLaren

Избранные постройки:

  • Музей американского искусства Уитни – новое здание
  • Олимпийский хоккейный стадион – Pala Alpitour
  • Европейский центральный банк
  • Школа искусств и истории искусства Университета Айовы (Art Building West)
  • Жилой квартал «Велтон Парк»
  • Лахта-центр
  • Музей Тенгли
  • Штаб-квартира компании Dyson
  • Музей Гуггенхайм-Эрмитаж

Зарубежные новости