Автоматическая мельница в Пардубице после реконструкции
Фотография © Petr Polák
В эти же годы бюро TRANSAT из Брно занималось реставрацией знаменитого Пардубицкого замка и улучшением инфраструктуры для размещенного в нем художественного музея. Несколько дополнительных построек за пределами самого замка занимала известная Галерея Восточной Богемии, ведущая свою историю с 1953 года. Чтобы освободить необходимые самому музею площади, ее решено было перенести на противоположный берег реки – в основной корпус мельницы. Архитекторы TRANSAT под руководством Петра Вшетечки и занялись его приспособлением под новые залы для поменявшей свое название галереи: она стала носить имя Гочара.
Автоматическая мельница в Пардубице после реконструкции
Фотография © BoysPlayNice
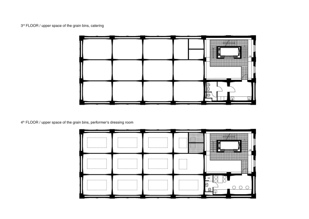
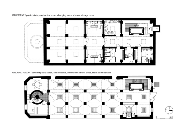
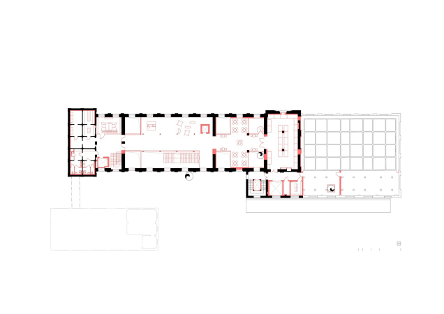
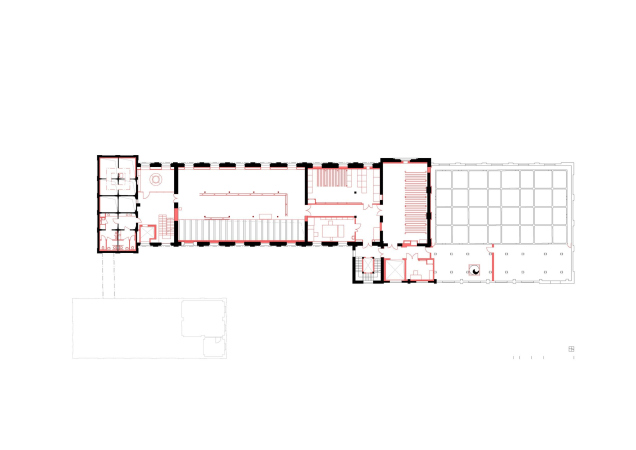
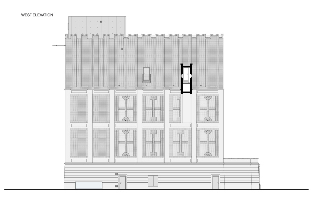
Свой проект они называют именно реставрацией, которая обошлась заказчику, администрации Пардубицкого края, в 16 млн евро. Массивный объем неотапливаемого здания имел относительно небольшой конструктивный модуль (4х4 м) и в целом не мог похвастаться просторными помещениями. Внутри находились башни элеватора, зона очистки зерна, лестницы, собственно мельничный цех с вальцовыми жерновами и просевными машинами, склады для зерновых отходов и для муки, но почти все оборудование уже было демонтировано: осталось только несколько образцов для создания «атмосферы». Архитекторы сохранили изначальную последовательность пространств (в основном вертикальных), а также оригинальные деревянные перекрытия на стальных опорах. Помещения организованы на пяти этажах, причем их высота постепенно повышается: наибольшая она у залов временных выставок и многофункционального пространства с открытой террасой наверху. Общая площадь всех помещений галереи составила в итоге 3 808 м2.
Галерея Гочара
Фотография © BoysPlayNice
Галерея Гочара
Фотография © BoysPlayNice
Галерея Гочара
Фотография © BoysPlayNice
Галерея Гочара
Фотография © BoysPlayNice
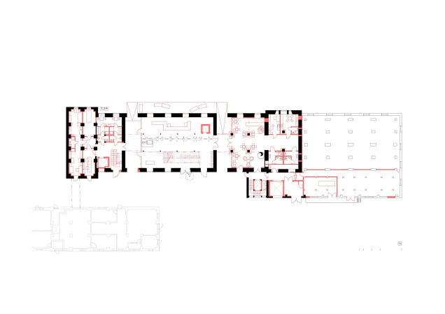
Территория перед главным фасадом была очищена от более поздних построек и вместе с внутренним двором превращена в открытое общественное пространство с аккуратным мощением. Чтобы связать его с набережной, на уровне первого этажа были сделаны два дополнительных прохода с вестибюлем бывшего мельничного цеха между ними. В нем была сооружена деревянная лестница, для которой использовали часть старых перекрытий. Также сохранена и возвращена на первоначальное место оригинальная каменная лестница и отреставрирована вторая бетонная лестница, возведенная в пространстве бывшего мучного склада в 1950-х. Все инженерное оборудование установили на крыше, которую понизили, чтобы оно не было заметно с улицы. Оригинальные окна были сохранены, но для оптимизации климата оборудованы солнцезащитными экранами и дополнены двойным остеклением с внутренней стороны.
Автоматическая мельница в Пардубице после реконструкции
Фотография © Petr Polák
Автоматическая мельница в Пардубице после реконструкции
Фотография © Petr Polák
Автоматическая мельница в Пардубице после реконструкции
Фотография © Petr Polák
Автоматическая мельница в Пардубице после реконструкции
Фотография © Petr Polák
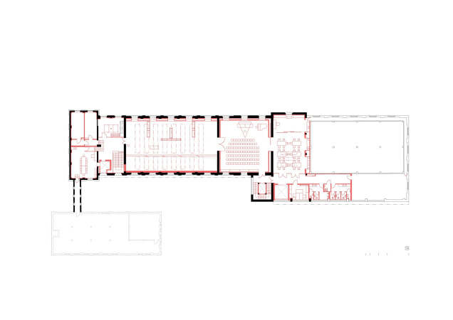
Практически параллельно пражское бюро Prokš Přikryl architekti реконструировало соседний, чуть более поздний корпус-элеватор под отдельный конференц- и арт-центр. Заказчиком этого проекта, стоимость которого составила 3,4 млн евро, выступил созданный специально для проекта Фонд автоматической мельницы (он остается оператором центра и после завершения реконструкции). Высокий и узкий объем общей площадью 1848 м2 получил выставочные пространства в башнях элеватора, зал для театральных постановок, концертов и лекций в машинном зале пятого этажа и бар на крыше со смотровой площадкой.
Общественный и арт-центр в автоматической мельнице в Пардубице
Фотография © Petr Polák
В подвале, который оказалось возможно добавить из-за более глубоких, чем предполагалось, опор, размещены общественные туалеты. На первом этаже архитекторы убрали часть стены, создав защищенный входной вестибюль и открыв узнаваемые воронки, которыми завершаются башни элеватора внизу – из них высыпалось зерно, в пространство площади и города. Важным элементом вертикально организованного внутреннего пространства стали бетонные полы со стеклянными вставками и видовые прострелы, но весь интерьер решен демонстративно спокойно, в приглушенных тонах, чтобы не отвлекать от самого исторического здания.
Материалы предоставлены коммуникационным агентством LINKA
Общественный и арт-центр в автоматической мельнице в Пардубице
© Prokš Přikryl architekti
