RSS
Автоматическая мельница в Пардубице после реконструкции
Фотография © Petr Polák

Галерея Гочара и общественный и арт-центр


/ Gočár Gallery and Silo/AM conference and art space

информация:

Prokš Přikryl architekti / Чехия
TRANSAT architekti / Чехия
Автоматическая мельница в Пардубице после реконструкции
Фотография © Petr Polák

Архи.ру об этом объекте:

18.04.2025

Анна Старостина. Арт-мельница

Историческая автоматическая мельница в чешском Пардубице претерпела сложную, многосоставную реставрацию усилиями бюро TRANSAT и Prokš Přikryl, став в итоге важным художественным центром.

читать дальше
Автоматическая мельница в Пардубице после реконструкции
Фотография © Petr Polák
Автоматическая мельница в Пардубице после реконструкции
Фотография © BoysPlayNice
Автоматическая мельница в Пардубице после реконструкции
Фотография © Petr Polák
Автоматическая мельница в Пардубице после реконструкции
Фотография © Petr Polák
Автоматическая мельница в Пардубице после реконструкции
Фотография © Petr Polák
Автоматическая мельница в Пардубице после реконструкции
Фотография © Petr Polák
Автоматическая мельница в Пардубице после реконструкции
Фотография © Petr Polák
Автоматическая мельница в Пардубице после реконструкции
Фотография © Petr Polák
Автоматическая мельница в Пардубице после реконструкции
Фотография © Petr Polák
Автоматическая мельница в Пардубице после реконструкции
Фотография © Petr Polák
Общественный и арт-центр в автоматической мельнице в Пардубице
Фотография © Petr Polák
Общественный и арт-центр в автоматической мельнице в Пардубице
Фотография © Petr Polák
Общественный и арт-центр в автоматической мельнице в Пардубице
Фотография © Petr Polák
Общественный и арт-центр в автоматической мельнице в Пардубице
Фотография © Petr Polák
Общественный и арт-центр в автоматической мельнице в Пардубице
Фотография © Petr Polák
Общественный и арт-центр в автоматической мельнице в Пардубице
Фотография © Petr Polák
Общественный и арт-центр в автоматической мельнице в Пардубице
Фотография © Petr Polák
Общественный и арт-центр в автоматической мельнице в Пардубице
Фотография © Petr Polák
Общественный и арт-центр в автоматической мельнице в Пардубице
Фотография © Petr Polák
Общественный и арт-центр в автоматической мельнице в Пардубице
Фотография © Petr Polák
Общественный и арт-центр в автоматической мельнице в Пардубице
Фотография © Petr Polák
Общественный и арт-центр в автоматической мельнице в Пардубице
Фотография © Petr Polák
Общественный и арт-центр в автоматической мельнице в Пардубице
Фотография © Petr Polák
Общественный и арт-центр в автоматической мельнице в Пардубице
Фотография © Petr Polák
Автоматическая мельница в Пардубице после реконструкции
Фотография © BoysPlayNice
Автоматическая мельница в Пардубице после реконструкции
Фотография © BoysPlayNice
Автоматическая мельница в Пардубице после реконструкции
Фотография © BoysPlayNice
Галерея Гочара
Фотография © BoysPlayNice
Галерея Гочара
Фотография © BoysPlayNice
Галерея Гочара
Фотография © BoysPlayNice
Галерея Гочара
Фотография © BoysPlayNice
Галерея Гочара
Фотография © BoysPlayNice
Галерея Гочара
Фотография © BoysPlayNice
Галерея Гочара
Фотография © BoysPlayNice
Галерея Гочара
Фотография © BoysPlayNice
Галерея Гочара
Фотография © BoysPlayNice
Галерея Гочара
Фотография © BoysPlayNice
Галерея Гочара
Фотография © BoysPlayNice
Галерея Гочара
Фотография © BoysPlayNice
Галерея Гочара
Фотография © BoysPlayNice
Галерея Гочара
Фотография © BoysPlayNice
Галерея Гочара
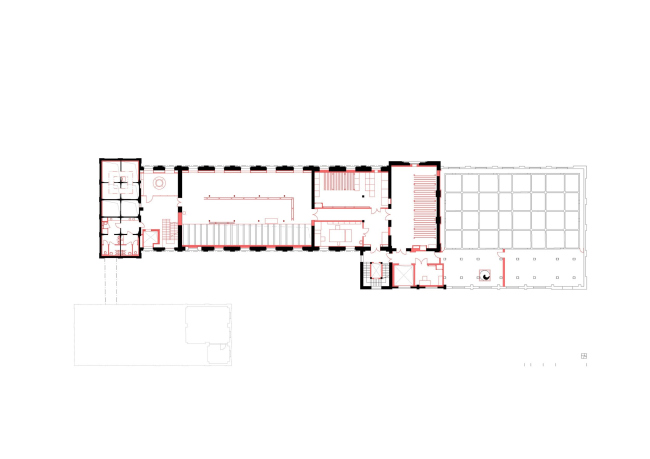
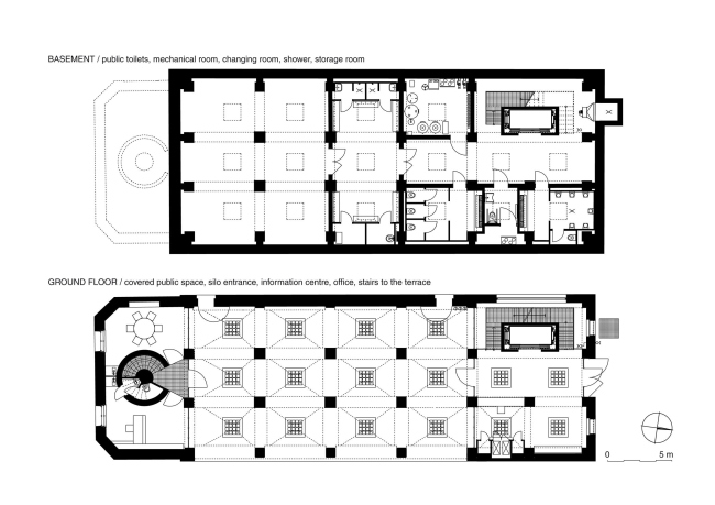
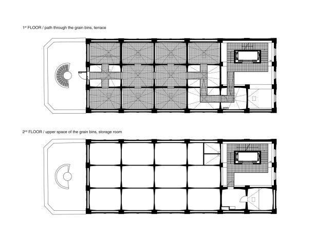
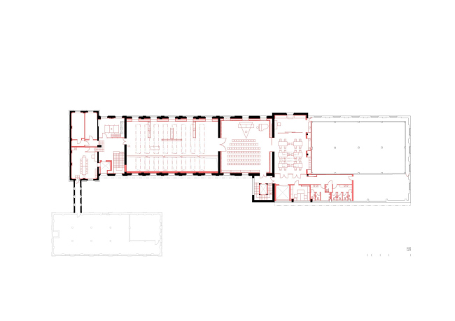
© Prokš Přikryl architekti
Общественный и арт-центр в автоматической мельнице в Пардубице. Проектные материалы
© Prokš Přikryl architekti
Общественный и арт-центр в автоматической мельнице в Пардубице. Проектные материалы
© Prokš Přikryl architekti
Автоматическая мельница в Пардубице до реконструкции
Фотография © BoysPlayNice
Автоматическая мельница в Пардубице до реконструкции
Фотография © BoysPlayNice
Автоматическая мельница в Пардубице до реконструкции
Фотография © Prokš Přikryl architekti
Автоматическая мельница в Пардубице до реконструкции
Фотография © Prokš Přikryl architekti
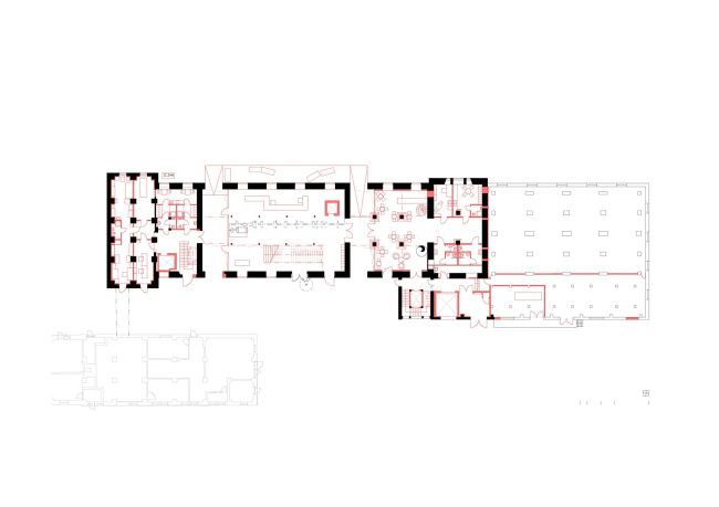
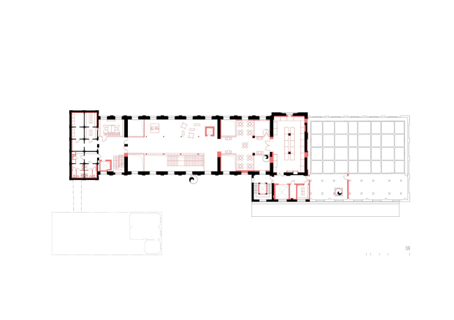
Общественный и арт-центр в автоматической мельнице в Пардубице
© Prokš Přikryl architekti
Общественный и арт-центр в автоматической мельнице в Пардубице
© Prokš Přikryl architekti
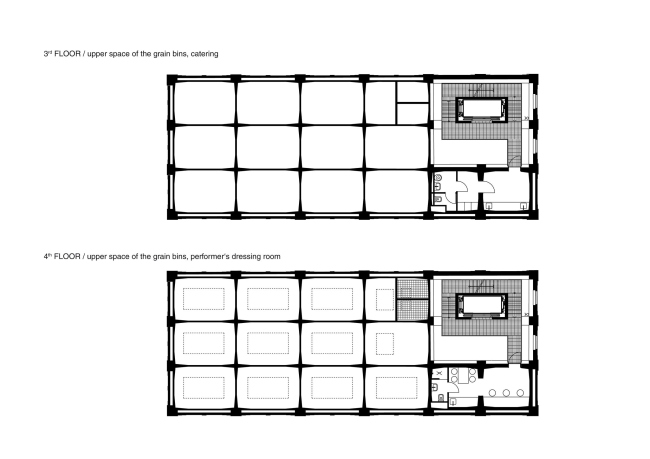
Общественный и арт-центр в автоматической мельнице в Пардубице
© Prokš Přikryl architekti
Общественный и арт-центр в автоматической мельнице в Пардубице
© Prokš Přikryl architekti
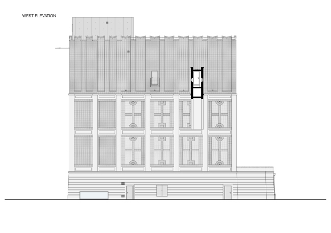
Общественный и арт-центр в автоматической мельнице в Пардубице
© Prokš Přikryl architekti
Общественный и арт-центр в автоматической мельнице в Пардубице
© Prokš Přikryl architekti
Общественный и арт-центр в автоматической мельнице в Пардубице
© Prokš Přikryl architekti
Общественный и арт-центр в автоматической мельнице в Пардубице
© Prokš Přikryl architekti
Общественный и арт-центр в автоматической мельнице в Пардубице
© Prokš Přikryl architekti
Общественный и арт-центр в автоматической мельнице в Пардубице
© Prokš Přikryl architekti
Общественный и арт-центр в автоматической мельнице в Пардубице
© Prokš Přikryl architekti
Общественный и арт-центр в автоматической мельнице в Пардубице
© Prokš Přikryl architekti
Общественный и арт-центр в автоматической мельнице в Пардубице
© Prokš Přikryl architekti
Общественный и арт-центр в автоматической мельнице в Пардубице
© Prokš Přikryl architekti
Общественный и арт-центр в автоматической мельнице в Пардубице
© Prokš Přikryl architekti
Общественный и арт-центр в автоматической мельнице в Пардубице
© Prokš Přikryl architekti
Общественный и арт-центр в автоматической мельнице в Пардубице
© Prokš Přikryl architekti
Общественный и арт-центр в автоматической мельнице в Пардубице
© Prokš Přikryl architekti
Галерея Гочара
© TRANSAT architekti
Галерея Гочара
© TRANSAT architekti
Галерея Гочара
© TRANSAT architekti
Галерея Гочара
© TRANSAT architekti

Избранные архитекторы:

  • Питер Айзенман
  • Арата Исодзаки
  • Рафаэль Виньоли
  • Алехандро Аравена
  • Кристиан де Портзампарк
  • Ренцо Пьяно
  • Николас Гримшо
  • Жан Нувель
  • Сантьяго Калатрава

Проект из каталога (случайный выбор)

Комплекс зимних видов спорта
Крис Уилкинсон, 2008 – 2009
Комплекс зимних видов спорта

Избранные постройки:

  • Музей дизайна в Холоне
  • Женский университет Ихва
  • Парк «Зарядье». Конкурсный проект консорциума ТПО «Резерв» + Maxwan + Latz und Partner
  • Свердловская филармония
  • Онкологический центр Мэгги больницы Чэринг-Кросс
  • Дом Flower Tower
  • Многофункциональный центр The Orange Cube
  • Leeum  - Музей искусств компании Samsung
  • Телевизионная башня в Чанаккале

Зарубежные новости