Здания общежитий входят в состав масштабного проекта Инновационного кластера МГТУ, разрабатываемого ТПО «Прайд» под руководством главного архитектора Москвы Сергея Кузнецова. Участок основной, учебной части кластера – ее проект широко обсуждался в 2021 году – расположен на другом берегу Яузы, между улицами Бауманской и 2-й Бауманской, Фанагорийскими казармами и палатами Ван дер Гульстов в Старокирочном переулке. Еще один участок учебного кластера находится в Техническом переулке, к югу от основного здания Бауманки и рядом с пространством Суперметалл. Сейчас там уже идет масштабное строительство.
Технологическая долина МГТУ на Яузе. Сергей Кузнецов и ТПО «Прайд» (Елена Мызникова, Николай Гордюшин)
© ТПО «Прайд»
Новое общежитие, общей площадью 60 100 м2, состоит из двух корпусов. Один, протяженный 8-этажный, вытянут вдоль набережной и изогнут под небольшим углом в ответ на поворот реки. Второй – в нем 29 этажей и порядка 100 метров высоты – расположен с внутренней стороны. Его высотность определена особенностями участка, который в значительной степени занят подземным коллектором, проходящим по центральной продольной оси – чтобы разместить всю требуемую полезную площадь, обойдя подземные коммуникации, объем «собрали» в башню.
Технологическая долина МГТУ на Яузе. Сергей Кузнецов и ТПО «Прайд» (Елена Мызникова, Николай Гордюшин)
© ТПО «Прайд»
Тот же коллектор стал практической причиной срезов-«подсечек», гранящих здания крупными плоскостями. Нижним подсечкам, освобождающим территорию, вторят срезы в верхней части, призванные подчеркнуть сходство стеклянных объемов с крупными кристаллами. Торец высотного корпуса, обращенный на северо-восток к Электрозаводской, заострен треугольным носом; с этой стороны тоже предусмотрена подсечка-срез, сродни подобному же приему в здании учебного кластера на Бауманской, но плавнее и выше, до 23 этажа.
Технологическая долина МГТУ на Яузе. Сергей Кузнецов и ТПО «Прайд» (Елена Мызникова, Николай Гордюшин)
© ТПО «Прайд»
Гранение стеклянных объемов придает зданиям некоторое, довольно-таки неожиданное, сходство с «синим кристаллом» делового центра «Зенит» на юго-западе Москвы.
Технологическая долина МГТУ на Яузе. Сергей Кузнецов и ТПО «Прайд» (Елена Мызникова, Николай Гордюшин)
© ТПО «Прайд»
Технологическая долина МГТУ на Яузе. Сергей Кузнецов и ТПО «Прайд» (Елена Мызникова, Николай Гордюшин)
© ТПО «Прайд»
Фасады двух корпусов полностью стеклянные, хотя окна внутри не «в пол», а обычного размера – часть стеклянной поверхности, работающей на внешний эффект, на самом деле непрозрачна. Стекла, равные по высоте этажу, соседствуют с форточками, которые спрятаны за вертикалями металлических решеток.
Технологическая долина МГТУ на Яузе. Сергей Кузнецов и ТПО «Прайд» (Елена Мызникова, Николай Гордюшин)
© ТПО «Прайд»
Корпуса разделены бульваром, который проходит по продольной оси территории от «Металлурга» к будущему пешеходному мосту в сторону учебно-лабораторного корпуса. На бульваре проект предусматривает мобильные МАФы – скамейки со встроенными клумбами и качели; в центральной части территории, под треугольным срезом острого «носа» башни, разместятся летняя сцена, амфитеатр и площадь.
Контрастный рисунок «арт-мощения» на поверхности бульвара напоминает арабскую вязь, выполненную мазками крупной кисти. Стеклянные плоскости «подсечек» призваны отражать этот орнамент, визуально удваивая его. Подобная же вязь предусмотрена на зданиях главной площади основного учебного кластера на Бауманской.
Технологическая долина МГТУ на Яузе. Сергей Кузнецов и ТПО «Прайд» (Елена Мызникова, Николай Гордюшин)
© ТПО «Прайд»
Технологическая долина МГТУ на Яузе. Сергей Кузнецов и ТПО «Прайд» (Елена Мызникова, Николай Гордюшин)
© ТПО «Прайд»
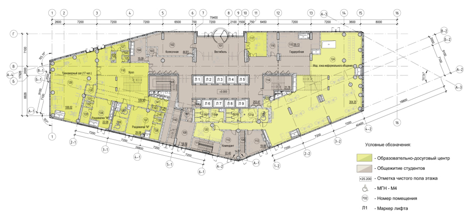
В первом этаже обоих корпусов помимо вестибюлей предусмотрены образовательно-досуговые центры, они включают «зону неформального общения» – студенческий коворкинг; кроме того в 8-этажном корпусе расположена столовая, в 29-этажном тренажерный зал. Комнаты площадью около 16 м2 рассчитаны на 2 человек.
Стилистика общежитий очевидным образом вторит подходу, заявленному в архитектуре зданий учебного кластера на Бауманской; его можно было бы определить как «стеклянный хайтек мегаполиса». Она заметно отличается от подходов, применяемых в загородных студенческих кампусах, но позволяет разместить рядом с основными зданиями МГТУ значительный объем временного жилья для научных сотрудников и студентов. Строительство первого корпуса (как и здания на участке в Техническом переулке) уже ведется.


