Проект Новопеределкина не был фаворитом жюри конкурса, впрочем, относительно этой станции жюри разошлось во мнении и победителя назначил заммэра Марат Хуснуллин исходя из собственных предпочтений и результата народного голосования, где проект набрал 35%. После первого тура архитекторы переработали проект: «своды» со световыми орнаментами, которые первоначально были повсюду, остались только во входных вестибюлях и немного сократились по высоте, основной же зал платформы стал более спокойным и ограничился одним рядом столбов по оси платформы.
Интерьер публично доступной части станции метро «Новопеределкино»
Фотография © Илья Иванов
Дизайн станции метро «Новопеределкино», 2014, 1 этап конкурса
© United Riga Architects
Интерьер публично доступной части станции метро «Новопеределкино»
Фотография © Илья Иванов
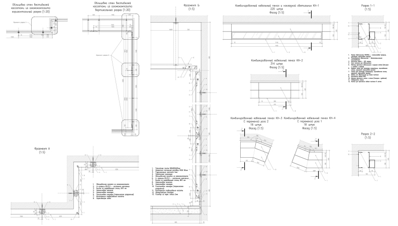
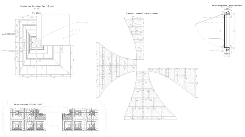
Конечно же, самое яркое решение этого проекта – «своды» из кассет прорезного металла с диодной подсветкой. Кассеты разборные для смены ламп и очистки от пыли. Рисунок растительного орнамента – обобщенно-растительный и больше всего напоминает, наверное, Хохлому. Подсветка может быть не только белой, но и цветной, выбраны оттенки холодных цветов: так, в верхней части возникает то фиолетовое, то зеленоватое «небо», что можно счесть попыткой немного смягчить напряжение, создаваемое крупным и графичным орнаментом.
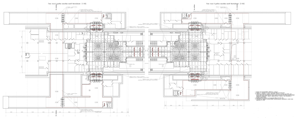
чертежи вестибюля:
Конечно же, никакие это не своды: конструкция не сведена и не держится замковым камнем. Шесть столбов, выстроенных в три ряда, подчинены параболическим– или даже стрельчатым – контурам, но их верхняя часть служит скорее объемным плафоном, кружевной световой конструкцией, которая расцветает на черных «ногах» оснований, но о сводчатых залах лишь напоминает. Однако свою символическую задачу выполняет хорошо: кажется, что мы в Грановитой палате, повторенной несколько раз. Сводами и орнаментом «неорусская» тема – не скажу может быть что раскрыта, но обозначена ясно.
Надо признать, что столб с массивным сводом – не только мотив средневековой архитектуры как таковой и русской в частности, но еще и один из любимых мотивов архитектуры московского метро, особенно станций глубокого залегания с двумя рядами столбов. Это одно из пластических отличий московского метро от иностранных – толстыми столбами и сводчатыми конструкциями архитекторы как будто постоянно подчеркивают, что это не просто часть транспортной системы, а сводчатые залы подземного дворца. Впрочем, другая традиция, восходящая к еще сталинской архитектуре – архитектура станций метро прямо или латентно классична, даже когда, как в «Новослободской», использует «готические» витражи или, как в «Киевской», пытается развивать национальную тему. Вестибюль «Новопеределкино» – первый в этом ряду отчетливо псевдо-(или нео-?)-русский.
Он, с другой стороны, перекликается с известным столбом вестибюля на Курской, равно как и в вестибюлями-гипостилями множества итальянских дворцов XVI-XIX веков или дворца Меньшикова на Неве. В принципе объемная конструкция, предложенная архитекторами URA – вариант классического и очень эффектного решения входного пространства ренессансного палаццо, «опрокинутый» в «русский стиль».
Между тем если псевдорусский стиль XIX века развивался в составе историзма, а неорусский стиль начала XX века был частью модерна или арнуво, то вариант рижских архитекторов принадлежит хайтеку. На это указывает многое, начиная от полированного металла и заканчивая сборно-разборными световыми кассетами, которым здесь уделено столько внимания. Хай-тек и современные веяния сильнее ощущаются в зале платформы, где столбы покрыты полированным металлом и окружены, наподобие «юбок» у грибов, мерно чередующимися скамейками и «прислонейками». Чередование придает ровному ряду столбов своего рода «ритм качки» и привносит в пространство станции, в остальном очень спокойное и освобожденное от лишнего, сюжетную интригу. Русский стиль же сохранен на потолке, здесь совершенно плоском, в виде кассет со все тем же орнаментом, который, преломляясь в металле столбов, создает на их поверхности рисунок размытых завихрений, похожих на след от пролетевшего призрака.
чертежи платформы:
Работа с русским стилем в наше время требует немалой смелости и чувства стиля, хотя попытки предпринимаются регулярно. Кто-то скажет, что получилось прямолинейно и ярмарочно, что можно было бы подобрать рисунок поинтереснее и потоньше. Или решит, что русский стиль здесь поверен пафосом сталинского ВДНХ: вот эта радость, с которой вырастают из оснований белые (или черные, как посмотреть) цветы сродни эмоциям фонтана Дружбы народов. Кто-то, наоборот, порадуется развитию традиций московского метро и новой попытке найти неорюс в новейших тенденциях хайтека и орнаментальной архитетуры, популярной последние лет пятнадцать. Так или иначе, а станция выбилась в топы google по запросу архитектура московского метро – и значит, уже стала частью наших представлений о «подземных дворцах».
