Реконструкция учебного корпуса МФЮА
© ГОРОЖАНЕ/ CITIZENSTUDIO
Решение фасадов необычное и ускользает от каких-то прямых стилистических аналогий. При достаточной камерности объем выглядит монументальным: холодный оттенок в сочетании с мощными «ризалитами» и гипетрофированным вертикальным ритмом вызывает в памяти здания Ивана Фомина. Крупность и лаконичность форм – родственна модернизму. В тоже время мансарда с окнами-люкарнами добавляет дух московского классицизма. Наконец, трактовка проездной арки как основного входа на территорию академии с Неглинной – абсолютно современно и очень деликатно напоминает о нашем времени. Эта арка важна и как акцент, отделяющий корпус академии от соседнего с ним театра Школа современной пьесы. Облицовка фасадов выполняется из натурального камня.
Описание предоставлено архитекторами:
Объект расположен в сложившейся городской среде. По исходным данным здание имело 2–3 надземных этажа, подвал и мансардный уровень. Было зафиксировано аварийное состояние. В 2013–2018 годах на площадке выполнен комплекс противоаварийных и реконструктивных работ: демонтированы аварийные конструкции, устроены фундаментная плита и монолитный железобетонный каркас, усилены конструкции подвала. Предусмотрено восстановление галереи с аркой для проезда пожарной техники.
Реконструкция учебного корпуса МФЮА. уществующие положение
© ГОРОЖАНЕ/ CITIZENSTUDIO
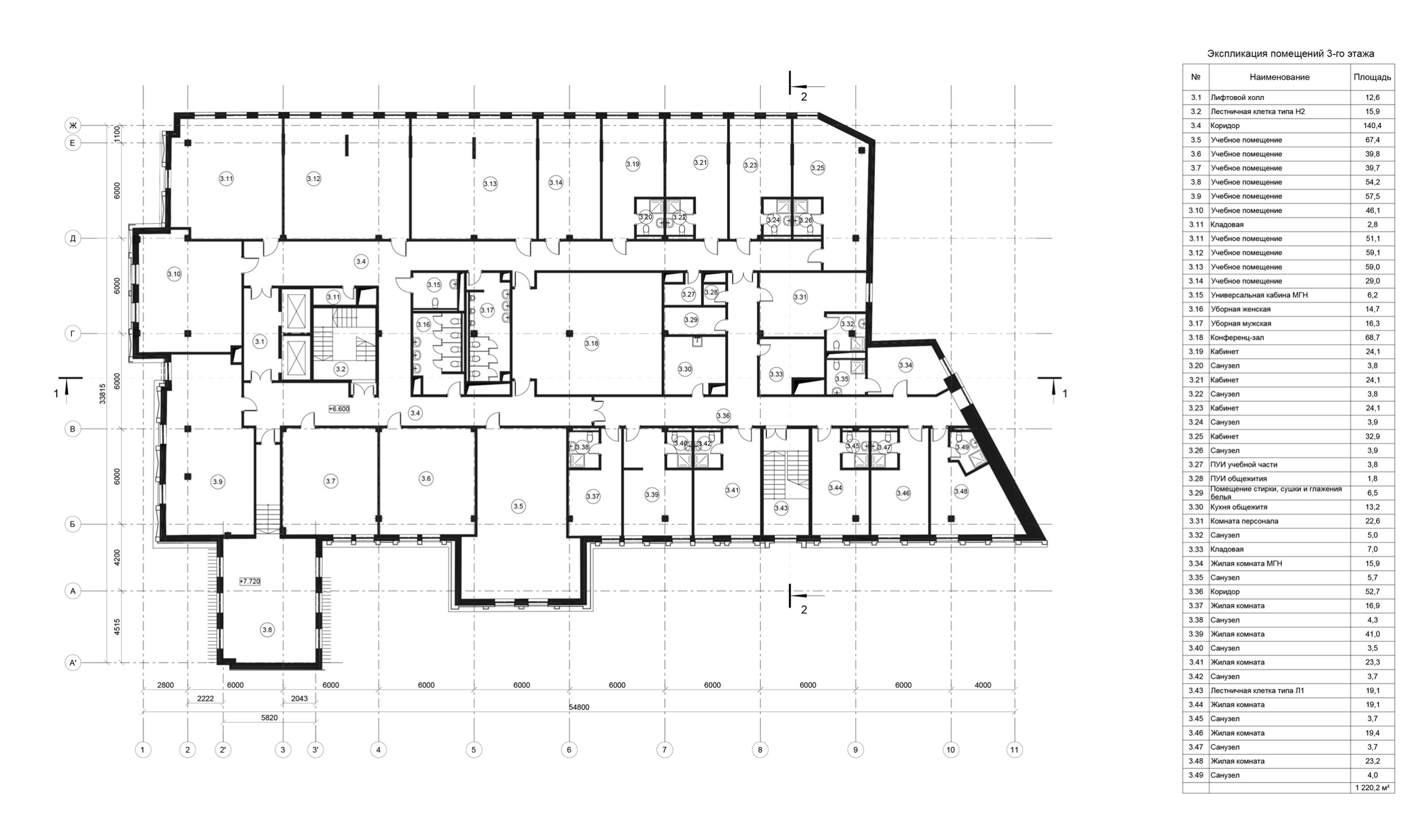
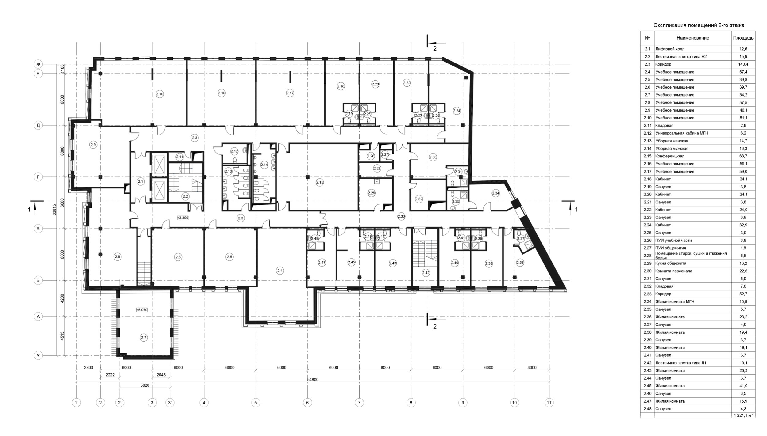
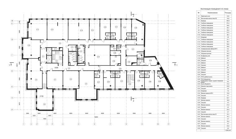
Реконструкция здания предусматривала приспособление под образовательную функцию и общежитие. В функциональном балансе учебные площади занимают 77%, общежитие – 23%.
Реконструкция учебного корпуса МФЮА
© ГОРОЖАНЕ/ CITIZENSTUDIO
Проект дает новую жизнь недостроенному и брошенному много лет назад зданию и фиксирует обновленный контур квартала со стороны Неглинной улицы. В основе решения – реконструкция существующего объема с приспособлением под нужды МФЮА и уточнением планировочной структуры и фасадного фронта.
Citizenstudio: «Для нас приоритетом было бережно встроить реконструкцию в историческую среду Неглинной – сохранить масштаб и ритм улицы, сделать обновление тактичным. По сути, это внимательная переделка существующего недостроя. Архитектурный образ собирается из фасада и света: в отделке и узлах заложены плиты из натурального гранита 610×305, светопрозрачное заполнение из закаленного стекла, алюминиевые оконные блоки и металлическая фальцевая кровля».
Реконструкция учебного корпуса МФЮА
© ГОРОЖАНЕ/ CITIZENSTUDIO
Реконструкция учебного корпуса МФЮА
© ГОРОЖАНЕ/ CITIZENSTUDIO
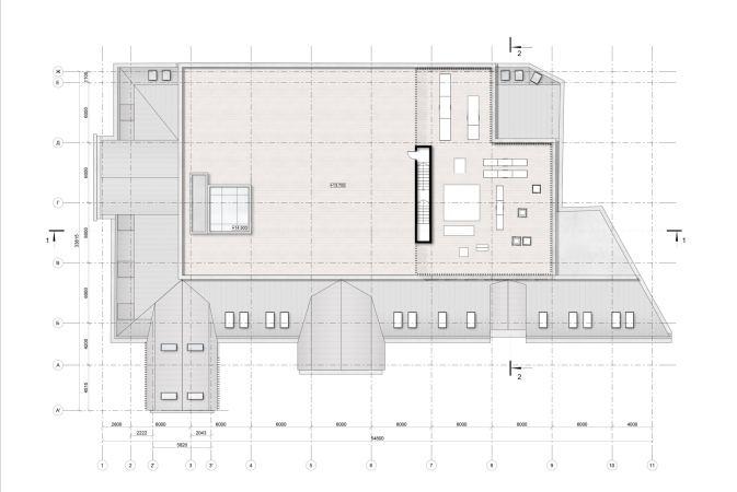
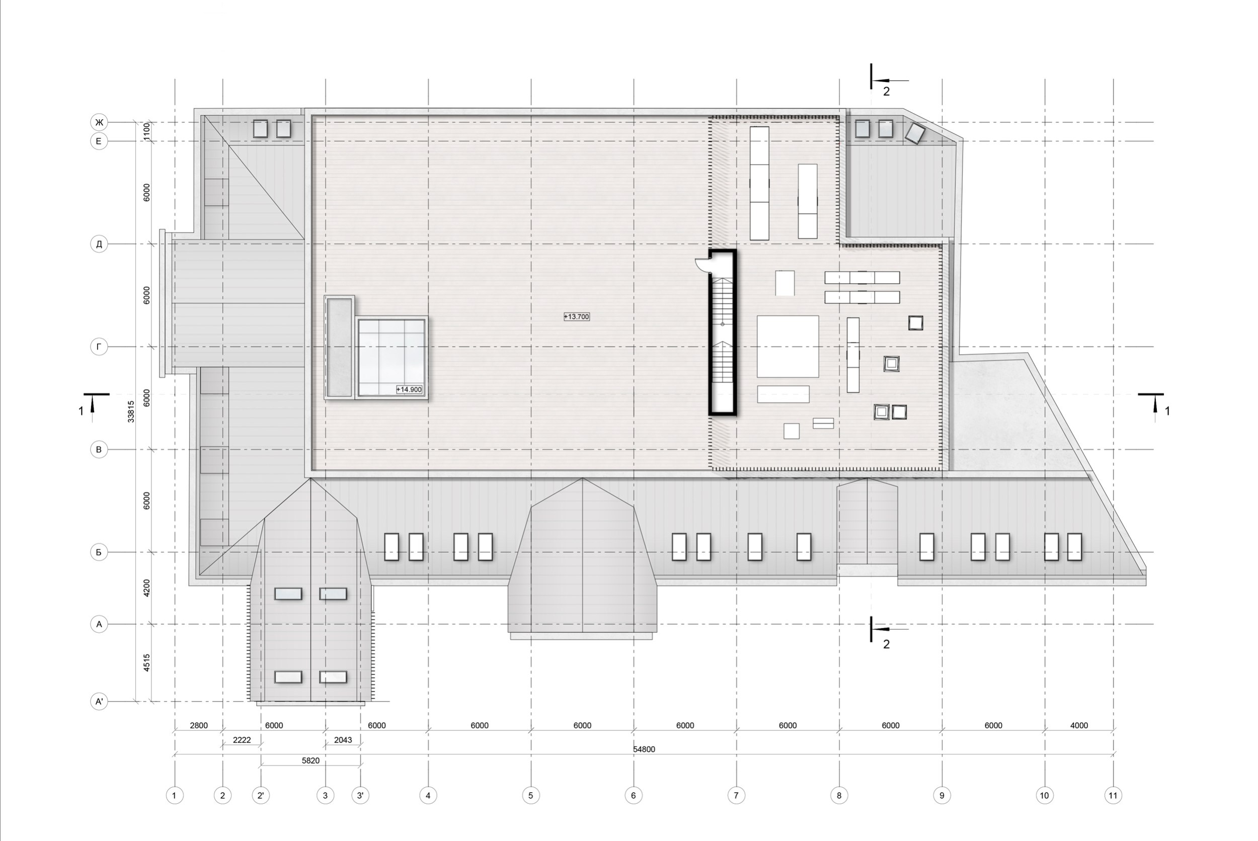
При общей площади 6 279.6 м² и объеме нового строительства 3 105 м² здание решено в 5 уровней (1 подземный и 4 надземных) при высоте 16.30 м.
