RSS
Реконструкция учебного корпуса МФЮА
© ГОРОЖАНЕ/ CITIZENSTUDIO

Реконструкция учебного корпуса МФЮА

информация:

  • статус
    проект
  • даты
    2025
  • region= area= address=Неглинная ул., д. 29, стр. 4 country_t=Россия city_t=Москва
    место
    Москва Неглинная ул., д. 29, стр. 4
  • координаты
    55.766314, 37.620034
  • функция
    Образование и наука / Учебный корпус
  • теги
    send.project
  • площадь застройки
    1 464,5 м2
  • площадь подземная
    1 223,1 м2
  • общая площадь
    6 279,6 м2
  • высота
    16,3
  • этажность
    4
Даниил Никишин
Михаил Бейлин
Россия

авторский коллектив

Михаил Бейлин, Даниил Никишин, С. Федоров, К. Колосов, А. Парамонова, Е. Малинка

партнеры, заказчики, смежники

При участии ИКБ «Инсайт».

Заказчик: АНО ВО «Московский финансово-юридический университет МФЮА»
Реконструкция учебного корпуса МФЮА
© ГОРОЖАНЕ/ CITIZENSTUDIO

Архи.ру об этом объекте:

26.03.2026

В ритме Неглинной

Citizenstudio бережно осовременили недостроенный трехэтажный корпус на Неглинной, принадлежащий МФЮА. Ограниченные логикой существующего объема, архитекторы, тем не менее, смогли реализовать достаточно тонкую игру со стилевыми реминисценциями самых разных исторических периодов и максимально деликатно вписаться в контекст центра Москвы.

Корпус МФЮА от фронта Неглинной отделяет одноэтажный ресторан Белое солнце пустыни с соответствующим среднеазиатским антуражем, так что, по сути, мы видим лишь 3 и 4 этажи с мансардой. Здание зажато со всех сторон и полностью раскрывается посетител...   читать дальше
Реконструкция учебного корпуса МФЮА
© ГОРОЖАНЕ/ CITIZENSTUDIO

история проекта:

Объект расположен в сложившейся городской среде. По исходным данным здание имело 2–3 надземных этажа, подвал и мансардный уровень; зафиксировано аварийное состояние.

В 2013–2018 годах на площадке выполнен комплекс противоаварийных и реконструктивных работ: демонтированы аварийные конструкции, устроены фундаментная плита и монолитный железобетонный каркас, усилены конструкции подвала. Предусмотрено восстановление галереи с аркой для проезда пожарной техники.

описание:

Проект предусматривает реконструкцию здания с приспособлением под образовательную функцию и общежитие. В функциональном балансе учебные площади занимают 77%, общежитие – 23%.

Проект дает новую жизнь недостроенному и брошенному много лет назад зданию и фиксирует обновленный контур квартала со стороны Неглинной улицы. В основе решения – реконструкция существующего объема с приспособлением под образовательную функцию и общежитие, с уточнением планировочной структуры и фасадного фронта.

«Для нас приоритетом было бережно встроить реконструкцию в историческую среду Неглинной – сохранить масштаб и ритм улицы, сделать обновление тактичным. По сути это внимательная переделка существующего недостроя. Архитектурный образ собирается из фасада и света: в отделке и узлах заложены плиты из натурального гранита 610×305, светопрозрачное заполнение из закаленного стекла, алюминиевые оконные блоки и металлическая фальцевая кровля».

При общей площади 6 279.6 м² и объеме нового строительства 3 105 м² здание решено в 6 уровней (1 подземный и 4 надземных) при высоте 16.30 м.

Реконструкция учебного корпуса МФЮА
© ГОРОЖАНЕ/ CITIZENSTUDIO
Реконструкция учебного корпуса МФЮА
© ГОРОЖАНЕ/ CITIZENSTUDIO
Реконструкция учебного корпуса МФЮА
© ГОРОЖАНЕ/ CITIZENSTUDIO
Реконструкция учебного корпуса МФЮА
© ГОРОЖАНЕ/ CITIZENSTUDIO
Реконструкция учебного корпуса МФЮА
© ГОРОЖАНЕ/ CITIZENSTUDIO
Реконструкция учебного корпуса МФЮА
© ГОРОЖАНЕ/ CITIZENSTUDIO
Реконструкция учебного корпуса МФЮА
© ГОРОЖАНЕ/ CITIZENSTUDIO
Реконструкция учебного корпуса МФЮА. уществующие положение
© ГОРОЖАНЕ/ CITIZENSTUDIO
Реконструкция учебного корпуса МФЮА
© ГОРОЖАНЕ/ CITIZENSTUDIO
Реконструкция учебного корпуса МФЮА
© ГОРОЖАНЕ/ CITIZENSTUDIO
Реконструкция учебного корпуса МФЮА
© ГОРОЖАНЕ/ CITIZENSTUDIO
Реконструкция учебного корпуса МФЮА. План -1 этажа
© ГОРОЖАНЕ/ CITIZENSTUDIO
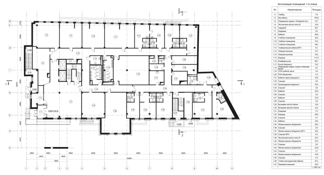
Реконструкция учебного корпуса МФЮА. План 1 этажа
© ГОРОЖАНЕ/ CITIZENSTUDIO
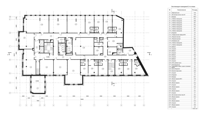
Реконструкция учебного корпуса МФЮА. План 2 этажа
© ГОРОЖАНЕ/ CITIZENSTUDIO
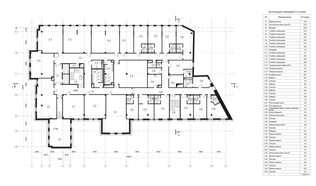
Реконструкция учебного корпуса МФЮА. План 3 этажа
© ГОРОЖАНЕ/ CITIZENSTUDIO
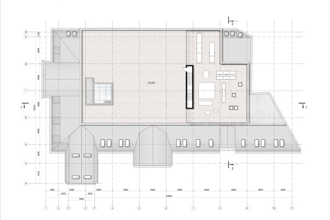
Реконструкция учебного корпуса МФЮА. План кровли
© ГОРОЖАНЕ/ CITIZENSTUDIO

Архитекторы – партнеры Архи.ру:

  • Георгий Трофимов
  • Олег Мединский
  • Сергей Скуратов
  • Наталья Сидорова
  • Дмитрий Ликин
  • Сергей Переслегин
  • Владислав Андреев
  • Владимир Плоткин
  • Марина Егорова
  • Сергей Никешкин
  • Антон Яр-Скрябин
  • Константин Ходнев
  • Наталия Шилова
  • Анастасия Абашева
  • Игорь Членов
  • Борис Воскобойников
  • Сергей Чобан
  • Игорь Шварцман
  • Иван Кожин
  • Юлиана Княжевская
  • Ерлан Бекмухамедов
  • Михаил Давыдов
  • Александр Асадов
  • Николай Кикава
  • Станислав Белых
  • Энди Сноу
  • Андрей Михайлов
  • Дмитрий Остроумов
  • Юлия Солдатенкова
  • Дмитрий Сухов
  • Николай Переслегин
  • Илья Машков
  • Андрей Асадов
  • Никита Явейн
  • Олег Шапиро
  • Валерий Каняшин
  • Даниил Лоренц
  • Полина Воеводина
  • Евгений Новосадюк
  • Александра Кузьмина
  • Вера Бутко
  • Евгений Зеленов
  • Михаил Канунников
  • Дмитрий Буш
  • Ростислав Цайзер
  • Сергей Кузнецов
  • Алексей Орлов
  • Андрей Гнездилов
  • Александр Самарин
  • Евгений Подгорнов
  • Елена Пучкова
  • Екатерина Кузнецова
  • Александр Скокан
  • Юлия Тряскина
  • Юлий Борисов
  • Раис Баишев
  • Сергей Труханов
  • Степан Липгарт
  • Александр Котенков
  • Василий Крапивин
  • Всеволод Медведев
  • Григорий Мустафин
  • Зураб Басария
  • Антон Надточий
  • Мария Ахременкова
  • Татьяна Зульхарнеева
  • Григориос Гавалидис
  • Павел Андреев
  • Андрей Романов
  • Виталий Лутц
  • Тимур Абдуллаев
  • Екатерина Абдуллаева
  • Маргарита Авдышева
  • Левон Айрапетов
  • Александр Аношкин
  • Алексей Афоничкин
  • Владислав Бек-Булатов
  • Антон Белов
  • Татьяна Бузулукова
  • Петр Васильев
  • Данило Вукосавлевич
  • Алина Георгиевская
  • Павел Гордеев
  • Илья Гринберг
  • Никита Демидов
  • Никита Дергунов
  • Наталья Жилкина
  • Алексей Зародов
  • Екатерина Зырина
  • Алексей Ильин
  • Дарья Ильина
  • Олег Карлсон
  • Алексей Кибкало
  • Денис Кувшинников
  • Анна Куликова
  • Алексей Курков
  • Данил Куров
  • Мария Кутай
  • Евгений Кутай
  • Иван Кычкин
  • Антон Ладыгин
  • Дмитрий Лапин
  • Борис Левянт
  • Илья Левянт
  • Катерина Левянт
  • Валерий Лукомский
  • Антон Лукомский
  • Екатерина Ляпунова
  • Иса Магомедов
  • Сергей Марков
  • Елена Мерцалова
  • Николай Миловидов
  • Станислав Михаловский
  • Сергей Мичурин
  • Олеся Могилевская
  • Филипп Никандров
  • Мария Николаева
  • Дмитрий Овчаров
  • Сергей Пергаев
  • Виктор Перов
  • Алексей Полищук
  • Роман Пономарёв
  • Валерия Преображенская
  • Виктория Раубо
  • Василий Рыбаков
  • Николай Рыбаков
  • Мария Салех
  • Александр Стариков
  • Илья Уткин
  • Елисей Чакан
  • Бориша Чорович
  • Олег Шурыгин
  • Дмитрий Шурыгин

Проект из каталога (случайный выбор)

Развлекательный центр «Ибица»
Александр Асадов, Андрей Асадов, 2003 – 2005
Развлекательный центр «Ибица»

Постройки и проекты (новые записи):

  • Деловое пространство «ПЛЭЙН»
  • Porta
  • Детский сад на 200 мест в Жилино-1
  • Архитектурная концепция кластера Ломоносов-2
  • Клубный дом в 1-м Казачьем переулке
  • Частный дом в Ленинградской области
  • IT-кластер TravelLine в Йошкар-Оле
  • Гостиничный комплекс Cosmos Selection Derbent 5
  • Офис компании АльфаСтрахование

Новости российской архитектуры:

Курган памяти
08.05.2026

Курган памяти

Никита Явейн
Баня по-царски
07.05.2026

Баня по-царски

Ольга Смоленская
«Заря» над волнами
07.05.2026

«Заря» над волнами

Дарья Виноградова
Белый конгломерат
07.05.2026

Белый конгломерат

Александр Томашенко, Андрей Горелов, Василий Сошников, Иван Колманок, Николай Фугаров, Владимир Плоткин