|
Citizenstudio бережно осовременили недостроенный трехэтажный корпус на Неглинной, принадлежащий МФЮА. Ограниченные логикой существующего объема, архитекторы, тем не менее, смогли реализовать достаточно тонкую игру со стилевыми реминисценциями самых разных исторических периодов и максимально деликатно вписаться в контекст центра Москвы.
Корпус МФЮА от фронта Неглинной отделяет одноэтажный ресторан «Белое солнце пустыни» с соответствующим среднеазиатским антуражем, так что, по сути, мы видим лишь 3 и 4 этажи с мансардой. Здание зажато со всех сторон и полностью раскрывается посетителям только из внутреннего двора.
 Решение фасадов необычное и ускользает от каких-то прямых стилистических аналогий. При достаточной камерности объем выглядит монументальным: холодный оттенок в сочетании с мощными «ризалитами» и гипетрофированным вертикальным ритмом вызывает в памяти здания Ивана Фомина. Крупность и лаконичность форм – родственна модернизму. В тоже время мансарда с окнами-люкарнами добавляет дух московского классицизма. Наконец, трактовка проездной арки как основного входа на территорию академии с Неглинной – абсолютно современно и очень деликатно напоминает о нашем времени. Эта арка важна и как акцент, отделяющий корпус академии от соседнего с ним театра Школа современной пьесы. Облицовка фасадов выполняется из натурального камня.
 Описание предоставлено архитекторами: Объект расположен в сложившейся городской среде. По исходным данным здание имело 2–3 надземных этажа, подвал и мансардный уровень. Было зафиксировано аварийное состояние. В 2013–2018 годах на площадке выполнен комплекс противоаварийных и реконструктивных работ: демонтированы аварийные конструкции, устроены фундаментная плита и монолитный железобетонный каркас, усилены конструкции подвала. Предусмотрено восстановление галереи с аркой для проезда пожарной техники.
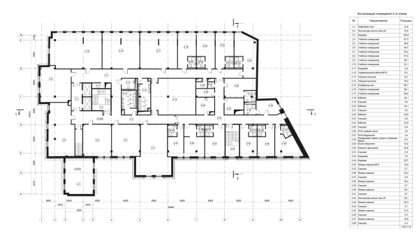
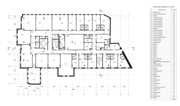
 Реконструкция здания предусматривала приспособление под образовательную функцию и общежитие. В функциональном балансе учебные площади занимают 77%, общежитие – 23%.
 Проект дает новую жизнь недостроенному и брошенному много лет назад зданию и фиксирует обновленный контур квартала со стороны Неглинной улицы. В основе решения – реконструкция существующего объема с приспособлением под нужды МФЮА и уточнением планировочной структуры и фасадного фронта.
 Citizenstudio: «Для нас приоритетом было бережно встроить реконструкцию в историческую среду Неглинной – сохранить масштаб и ритм улицы, сделать обновление тактичным. По сути, это внимательная переделка существующего недостроя. Архитектурный образ собирается из фасада и света: в отделке и узлах заложены плиты из натурального гранита 610×305, светопрозрачное заполнение из закаленного стекла, алюминиевые оконные блоки и металлическая фальцевая кровля».
  При общей площади 6 279.6 м² и объеме нового строительства 3 105 м² здание решено в 5 уровней (1 подземный и 4 надземных) при высоте 16.30 м. Реконструкция учебного корпуса МФЮА© ГОРОЖАНЕ/ CITIZENSTUDIO
Реконструкция учебного корпуса МФЮА© ГОРОЖАНЕ/ CITIZENSTUDIOРеконструкция учебного корпуса МФЮА© ГОРОЖАНЕ/ CITIZENSTUDIOРеконструкция учебного корпуса МФЮА© ГОРОЖАНЕ/ CITIZENSTUDIOРеконструкция учебного корпуса МФЮА. уществующие положение© ГОРОЖАНЕ/ CITIZENSTUDIO
Реконструкция учебного корпуса МФЮА© ГОРОЖАНЕ/ CITIZENSTUDIO
Реконструкция учебного корпуса МФЮА. План -1 этажа© ГОРОЖАНЕ/ CITIZENSTUDIOРеконструкция учебного корпуса МФЮА. План 1 этажа© ГОРОЖАНЕ/ CITIZENSTUDIOРеконструкция учебного корпуса МФЮА. План 2 этажа© ГОРОЖАНЕ/ CITIZENSTUDIOРеконструкция учебного корпуса МФЮА. План 3 этажа© ГОРОЖАНЕ/ CITIZENSTUDIOРеконструкция учебного корпуса МФЮА. План кровли© ГОРОЖАНЕ/ CITIZENSTUDIOРеконструкция учебного корпуса МФЮА© ГОРОЖАНЕ/ CITIZENSTUDIO
Реконструкция учебного корпуса МФЮА© ГОРОЖАНЕ/ CITIZENSTUDIO
|