Описание предоставлено архитекторами
Приступая к работе, авторы первым делом нашли типовой проект, по которому был построен Дом культуры. Архитекторам было важно сохранить рациональное зерно исходного проекта, но при этом устранить проблемы, которые возникали в процессе его использования – здание морально устарело, а некоторые технические особенности усложняли эксплуатацию. Также одним из первых пожеланий заказчика стала двухскатная кровля – это во многом повлияло на окончательный облик объекта. От старого дома культуры сохранились габариты, частично – фундаменты, остальные конструкции новые.
Дом культуры в селе Новомоношкино
Фотография © Наталья Бочкова / предоставлена Формат проект
Дом культуры в селе Новомоношкино
Фотография © Наталья Бочкова / предоставлена Формат проект
Дом культуры в селе Новомоношкино
Фотография © Наталья Бочкова / предоставлена Формат проект
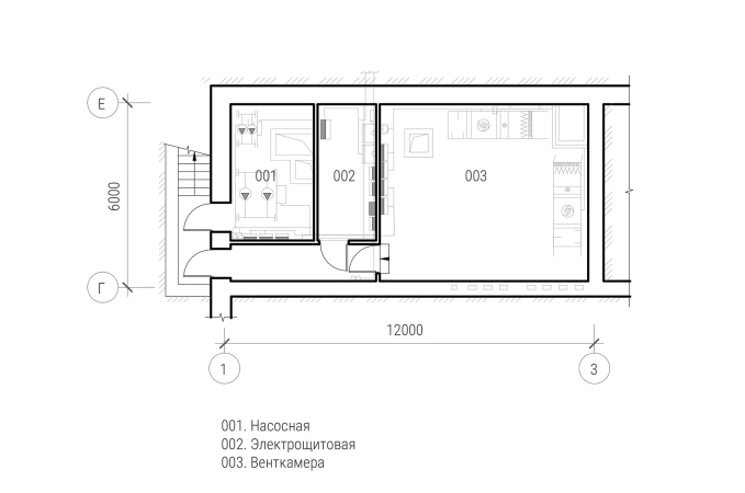
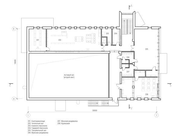
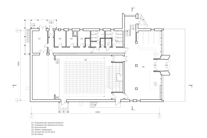
Основная функциональная схема дома культуры осталась прежней, поскольку изначально он был спроектирован с учетом возможности использования разных студий: танцевальной, художественной и изобразительной. Важно было обеспечить гибкость планировки, чтобы без больших усилий трансформировать пространства в соответствии с потребностями пользователей. Главные изменения были связаны с размещением дополнительных санузлов и раздевалок. Также чуть меньше стал актовый зал – в новом здании он рассчитан на 224 человек против 300 из предыдущего проекта. Сохранилась и библиотека с читальным залом.
В новом доме культуры использовались современные материалы: огромный витраж на северном фасаде, фальцевая кровля, вертикально расположенные линеарные панели. Витраж стал ключевым элементом: он обеспечивает естественное освещение танцевального зала, создает чувство пространства и открывает вид на окружающую природу. Для фасада использовались линеарные панели, которые подчеркивают высоту здания и создают динамичный и современный облик. Раскладка панелей в разбежку создает ощущение единой поверхности и позволяет уйти от горизонтальных поясов и нащельников. Не менее важным стало решение о фальцевой кровле.
От демонтажа старого здания до ввода в эксплуатацию нового прошло пять лет. Дом культуры стал примером того, как современная архитектура может органично вписаться в сельский ландшафт, не уступая городским аналогам, а даже при ограниченном бюджете можно создать интересный и функциональный объект, который приносить людям радость.

