Дом культуры в селе Новомоношкино
Фотография © Наталья Бочкова / предоставлена Формат проект
Дом культуры в селе Новомоношкино
информация:
-
статус
реализовано -
даты
2019 — 2020 / 2020 — 2024 -
место
Новомоношкино Алтайский край ул. Молодежная, д. 2 -
координаты
53.612047, 84.493696 -
функция
Культурный / Культурный центр -
теги
send.project -
площадь участка
0,4455 га -
общая площадь
1 018 м2 -
высота
13,7 -
этажность
2 -
строительный объем
7 456 м3

Марина Дерябина
РоссияФормат проект
Россияавторский коллектив
Ведущий архитектор: Наталья Хмелева
Архитектор: Дарья Кисельникова
Визуализатор: Николай Шуляк
Главный конструктор: Владимир Теслицкий
Конструктор: Владимир Савенко
партнеры, заказчики, смежники
Дом культуры в селе Новомоношкино
Фотография © Наталья Бочкова / предоставлена Формат проект
Архи.ру об этом объекте:
Культурный метаморфоз
В рамках реконструкции дома культуры в селе Алтайского края, которая фактически обернулось новым строительством, новосибирское бюро «Формат Проект» решило сохранить функциональную схему предшественника, но критически переработало фасады, добавив современные материалы, большой витраж и, по настоянию заказчика, скатную кровлю.
Описание предоставлено архитекторами Приступая к работе, авторы первым делом нашли типовой проект, по которому был построен Дом культуры. Архитекторам было важно сохранить рациональное зерно исходного проекта, но при этом устранить проблемы, которые... читать дальшеДом культуры в селе Новомоношкино
Фотография © Наталья Бочкова / предоставлена Формат проект
история проекта:
Все началось с другого объекта. Первым бюджетным проектом бюро стала школа в поселке Теба. Мы до этого никогда не разрабатывали решения для бюджетных объектов. Боялись, что это слишком трудоемко и не получится реализовать что-то интересное. На Тебе решили попробовать. И у нас получилось. Мы прошли экспертизу с нестандартной и интересной архитектурной идеей. Проект в итоге понравился экспертам и его предложили сделать проектом повторного применения – чтобы и в других поселках появлялись такие школы.
Когда появилась возможность поучаствовать в проекте реконструкции здания Дома культуры в селе Новомоношкино – мы решили попробовать.
Мы хотели создать современный и привлекательный объект для сельской местности – центр культуры, который не будет уступать городским аналогам и позволит жителям гордиться своей местностью.
описание:
Первым делом мы нашли типовой проект, по которому был построен старый Дом культуры – Типовой проект Клуба с залом на 300 мест 264-12-65/75.2. Нам важно было сохранить рациональное зерно исходного проекта и решить проблемы, которые возникали в процессе его использования.
Кроме того, что здание морально устарело за несколько десятков лет, в нем были технические особенности, которые усложняли его эксплуатацию. Первое, что нас попросили сделать – организовать двухскатную кровлю. Во многом это пожелание повлияло на окончательный облик объекта.
Проект основывался на использовании современных материалов: огромный витраж на северном фасаде, фальцевая кровля, вертикально расположенные линеарные панели.
Витраж стал ключевым элементом проекта: он обеспечивает естественное освещение танцевального зала, создает чувство пространства и открывает вид на окружающую природу.
Для фасада мы предложили использовать линеарные панели, чтобы подчеркнуть высоту здания и создать динамичный и современный облик. Мы сделали раскладку панелей в разбежку, чтобы создать ощущение единой поверхности и уйти от горизонтальных поясов и нащельников.
Не менее важным было решение о фальцевой кровле. В начале были сомнения, сможем ли мы пройти экспертизу с таким решением, но в итоге нам удалось убедить экспертов в ее практичности и эстетичности.
Реализация проекта заняла пять лет: с демонтажа старого здания до ввода нового в эксплуатацию. Были и трудности: изменение цен на строительные материалы, импортозамещение, необходимость внесения корректировок в проект. Но в итоге удалось построить Дом культуры, который для нас стал примером того, как современная архитектура может органично вписаться в сельский ландшафт.
Даже в рамках ограниченного бюджета можно создать интересный и функциональный объект, который будет приносить радость людям.
Дом культуры в селе Новомоношкино
Фотография © Наталья Бочкова / предоставлена Формат проект
Дом культуры в селе Новомоношкино
Фотография © Наталья Бочкова / предоставлена Формат проект
Дом культуры в селе Новомоношкино
Фотография © Наталья Бочкова / предоставлена Формат проект
Дом культуры в селе Новомоношкино
Фотография © Наталья Бочкова / предоставлена Формат проект
Дом культуры в селе Новомоношкино
Фотография © Наталья Бочкова / предоставлена Формат проект
Дом культуры в селе Новомоношкино
Фотография © Наталья Бочкова / предоставлена Формат проект
Дом культуры в селе Новомоношкино
Фотография © Наталья Бочкова / предоставлена Формат проект
Дом культуры в селе Новомоношкино
Фотография © Наталья Бочкова / предоставлена Формат проект
Дом культуры в селе Новомоношкино
Фотография © Наталья Бочкова / предоставлена Формат проект
Дом культуры в селе Новомоношкино
Фотография © Наталья Бочкова / предоставлена Формат проект
Дом культуры в селе Новомоношкино
Фотография © Наталья Бочкова / предоставлена Формат проект
Дом культуры в селе Новомоношкино. Генплан
© Формат проект
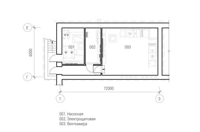
Дом культуры в селе Новомоношкино. План подвала
© Формат проект
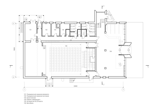
Дом культуры в селе Новомоношкино. План на отм. 0.000
© Формат проект
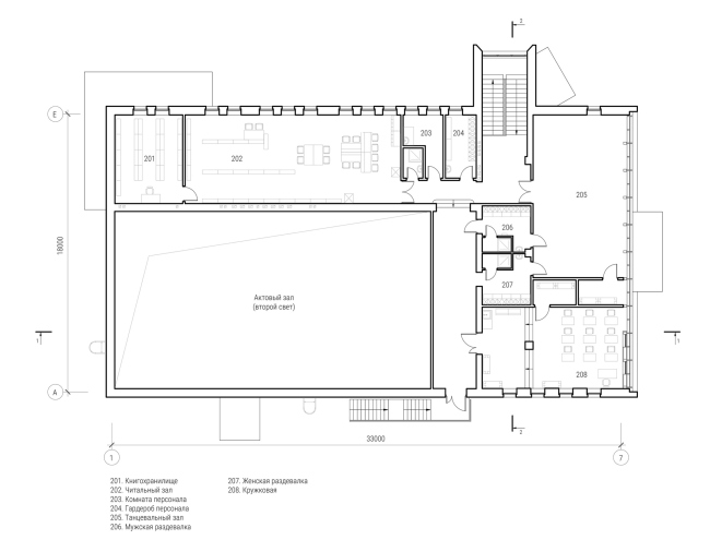
Дом культуры в селе Новомоношкино. План на отм. 3.900
© Формат проект
Дом культуры в селе Новомоношкино. Фасад А-Ж
© Формат проект
Дом культуры в селе Новомоношкино. Фасад 7-1
© Формат проект
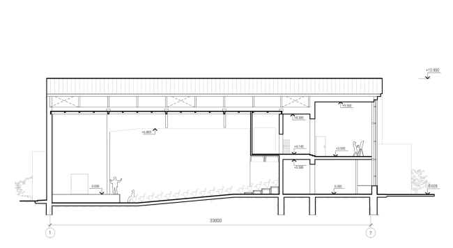
Дом культуры в селе Новомоношкино. Разрез А-Ж
© Формат проект
Дом культуры в селе Новомоношкино. Разрез 1-7
© Формат проект
Архитекторы – партнеры Архи.ру:
Проект из каталога (случайный выбор)
