Комплекс PONG
Фото © 11h45
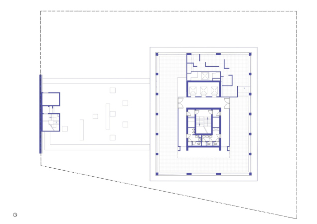
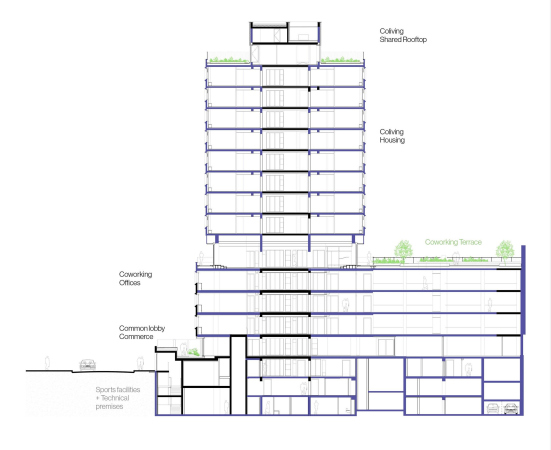
К концу 2010-х здание потеряло вид и морально устарело, поэтому необходимой стала смена функции. Теперь его нижняя часть, до остекленной «талии» пятого этажа включительно, занята коворкингом, ориентированным на молодые компании, а шестой по 13-й этажи заняты коливингом из 8 двухъярусных квартир.
Комплекс PONG
Фото © 11h45
Фасаду не стали возвращать изначальный темный цвет, зато окна-альвеолы, как их называют архитекторы, отреставрировали со всей тщательностью. Им вернули изначальный облик, но использовали высокоэффективные рамы и остекление, всего было заменено 800 рам. Фасад утеплили изнутри. Архитекторы стремились свести демонтаж к минимуму: в основном он коснулся модернизации лестнично-лифтовых узлов, где также проложены основные сети, и устройства лестниц в квартирах.
Комплекс PONG
Фото © 11h45
Остекленный первый этаж занят кафе и общественным центром, а также вестибюлем для офисных и жилых этажей. Подземные уровни вмещают гараж для автомашин и велосипедов. Озеленены кровля (там устроена зона отдыха для жильцов), терраса на 5-м этаже, крыша коворкинга, лоджии коливинга: речь идет в общей сложности о 2000 м2.
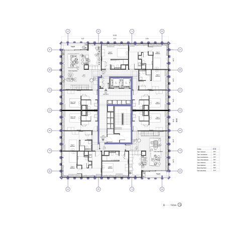
Коливинг разделен на три зоны по степени приватности: общественные (холл, лестничные площадки, спортзал, прачечная и так далее), промежуточные (общие гостиные) и собственно спальни, каждая из которых акустически изолирована по тому же стандарту, как и «настоящие» квартиры. Спальни с собственной ванной, а порой и кухонным уголком варьируются по площади от 16 до 13 м2 и организованы вокруг гостиной с двухсветной лоджией. Вся меблировка спроектирована Bond Society.
Комплекс PONG
Фото © 11h45
