Жилой комплекс в деревне Высока Пец
Фото © Petr Polák
Именно они стали сейчас основой для жилого комплекса, который предлагает необычный для типичной деревни вариант жизни в квартирах. От архитекторов требовалось учесть сельский контекст и максимально использовать предшествующие сооружения.
Жилой комплекс в деревне Высока Пец
Фото © Petr Polák
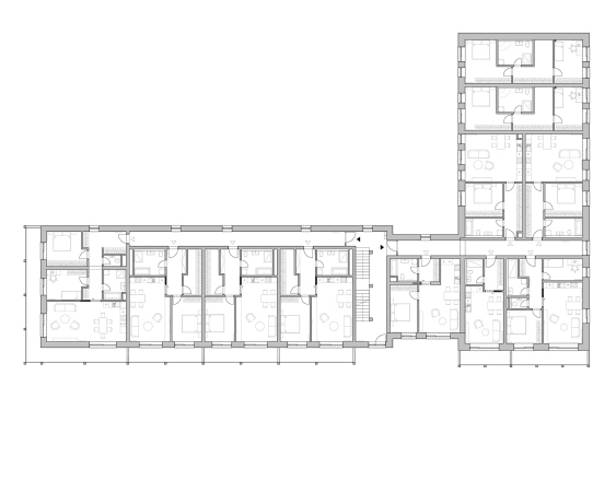
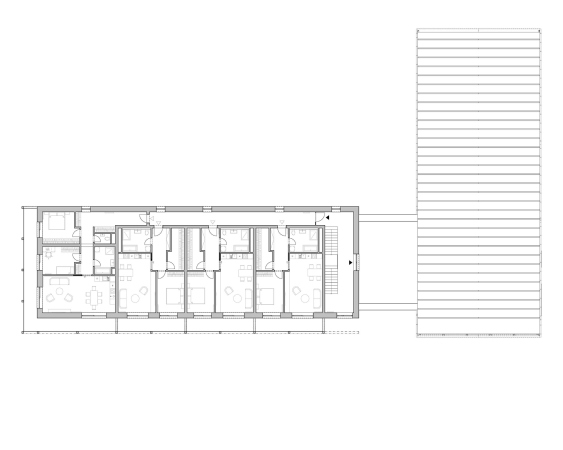
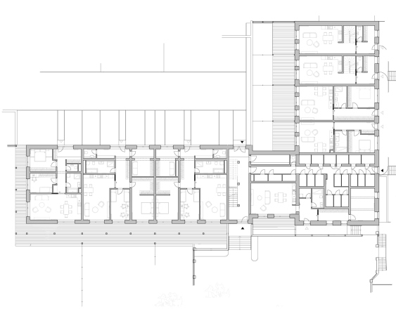
Главный корпус ЖК с обычными квартирами все же пришлось возвести заново: фундамент прежней постройки оказался непрочным. Трехэтажный дом из керамических блоков получил галереи на восточном и южном фасадах. Они разделены на балконы для каждой квартиры, а огибающая их «колоннада» и вынос традиционной двускатной кровли придали силуэту здания цельность. Роль балконов для жильцов первого этажа играет сад с южной стороны, существовавший здесь изначально.
Жилой комплекс в деревне Высока Пец
Фото © Petr Polák
К этому корпусу примыкает второй: бывшее здание школы, позднее превращенное в склад. Его крепкие кирпичные стены оказалось возможным сохранить. Двухэтажная постройка вместила двухуровневые квартиры типа «мэзонетт», каждая со своим входом и садиком с видом на запад, на холмы Брди.
Третий корпус сохранен в полуруинированном/недостроенном виде.
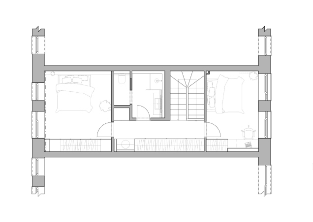
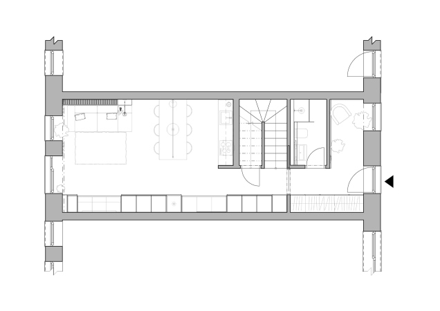
Двускатные кровли и традиционные силуэты сочетаются в проекте с «сельскими» материалами, в первую очередь с древесиной лиственницы и светлой штукатуркой. При этом архитекторы предложили жильцам необычные планировки двухуровневых квартир – совсем не деревенские. Авторы называют их «квартирами с длинным шкафом». Встроенный шкаф действительно вытянут по всей длине и первого, и второго этажей. В гостиной он вместил телевизор, у обеденного стола – кухонную систему хранения, напротив ванной – туалетный столик.
Жилой комплекс в деревне Высока Пец
Фото © Petr Polák
