Центр знаний и инноваций Les Forges (CSI) в Сен-Этьене
Фотография © Sophie Oddo / предоставлена K architectures
Центр знаний и инноваций Les Forges (CSI) в Сен-Этьене
Фотография © Sophie Oddo / предоставлена K architectures
Центр знаний и инноваций Les Forges (CSI) в Сен-Этьене
Фотография © Sophie Oddo / предоставлена K architectures
Последним своей очереди на реконструкцию дождался корпус кузнечного цеха Les Forges. Расположенный вдоль края участка протяженный объем длиной в 135 м формировал один из фасадов всего комплекса, но находился в весьма плачевном состоянии. Команда парижского бюро K architectures примерно на треть увеличила площади, трансформировала сохранившуюся голую коробку внешних стен в современный, комфортный обьем, а также создала новое «лицо» всего кластера. Заказчиками проекта выступили местный Университет имени Жана Моне и Государственный департамент жилищного строительства и городского развития Сент-Этьена, бюджет реконструкции составил 16,2 миллиона евро.
Центр знаний и инноваций Les Forges (CSI) в Сен-Этьене
Фотография © Marc Dunile / предоставлена K architectures
Центр знаний и инноваций Les Forges (CSI) в Сен-Этьене
Фотография © Marc Dunile / предоставлена K architectures
Центр знаний и инноваций Les Forges (CSI) в Сен-Этьене
Фотография © Marc Dunile / предоставлена K architectures
Центр знаний и инноваций Les Forges (CSI) в Сен-Этьене
Фотография © Marc Dunile / предоставлена K architectures
Архитекторы максимально использовали достоинства промышленной архитектуры XIX века с большими арочными окнами и эффектным сочетанием белого камня с кирпичной кладкой. Выше карниза был достроен нарочито минималистичный стеклянный объем третьего этажа. В качестве отделки выбрали вертикальные панели из стали кортен – принципиально «чужой» материал еще и полностью лишенный какой-то временной привязки. Ими же выделен главный вход в центр. Оцинкованная кровля при этом специальным образом немного утоплена, чтобы ее не было заметно с улицы. Новый объем таким образом как будто противостоит исторической архитектуре, но становится логичным продолжением общей индустриальной стилистики.
Центр знаний и инноваций Les Forges (CSI) в Сен-Этьене
Фотография © Marc Dunile / предоставлена K architectures
Центр знаний и инноваций Les Forges (CSI) в Сен-Этьене
Фотография © Sophie Oddo / предоставлена K architectures
Центр знаний и инноваций Les Forges (CSI) в Сен-Этьене
Фотография © Marc Dunile / предоставлена K architectures
Центр знаний и инноваций Les Forges (CSI) в Сен-Этьене
Фотография © Sophie Oddo / предоставлена K architectures
Центр знаний и инноваций Les Forges (CSI) в Сен-Этьене
Фотография © Marc Dunile / предоставлена K architectures
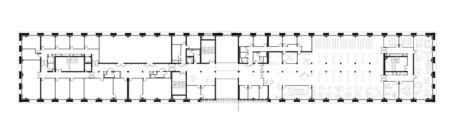
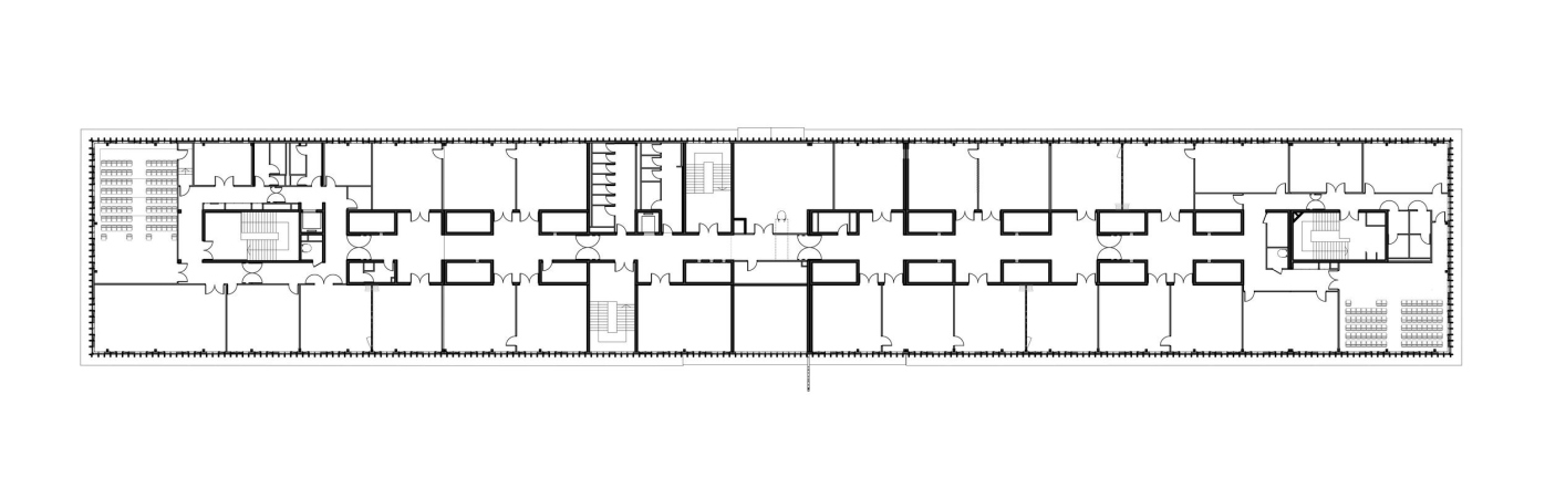
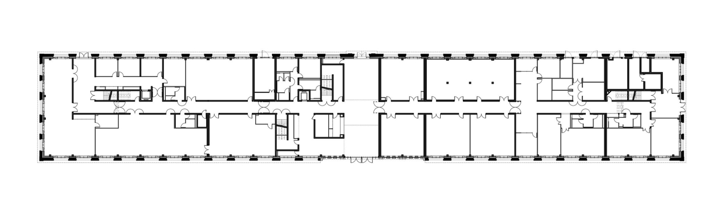
Исследовательский центр междисциплинарного обучения при университете рассчитан примерно на 900 человек и состоит из трех основных структурных подразделений: собственно Инновационный кластер занимает первый и половину второго этажа, Информационному центру отведено другое крыло второго этажа, Образовательному центру полностью отдан третий этаж. Ядро корпуса заняла Агора – начинающееся прямо от главного входа общественное пространство, обеспечивающее высокий уровень взаимодействия между исследователями, студентами и преподавателями разных направлений. В отделке всех внутренних зон превалирует нейтральная бело-серая цветовая гамма и фактурные поверхности открытого бетона, напоминающие о промышленном прошлом здания.
Центр знаний и инноваций Les Forges (CSI) в Сен-Этьене
© K architectures
Центр знаний и инноваций Les Forges (CSI) в Сен-Этьене
© K architectures
