Жилой комплекс Eagle + West
                Фото © Jason O′Rear
        Башни поделены по высоте на блоки в 7–8 этажей, что отвечает масштабу местной застройки. Архитекторы сравнивают их с братьями-близнецами, однако не идентичными. Если один делает шаг вперед, то второй отступает, и колеблющаяся пространственная «пауза» между ними соединяет их даже крепче, чем физическая связь в виде моста с общественной программой и невысокого жилого корпуса у их основания.
Жилой комплекс Eagle + West
                Фото © Jason O′Rear
        Eagle + West – это первое высотное здание OMA в Нью-Йорке, что важно, учитывая корни этого бюро. Впрочем, Рем Колхас не участвовал в разработке этого проекта: им занимался партнер нью-йоркского офиса Джейсон Лонг. Обращенная к Гринпойнту башня достигает высоты 122 м (40 этажей) и расширяется снизу вверх. Стоящая у нового прибрежного парка ее «брат» – 30-этажный (91,5 м). Их ступенчатые силуэты сформированы консольными выносами.
Жилой комплекс Eagle + West
                Фото © Jason O′Rear
        Фасады подчеркивают угловатость этих зданий. Их решетка с окнами размером 2,4 х 2,4 м сложена из 1616 бетонных панелей белого цвета, на которые нанесен рельефный узор пяти видов: вертикальный, диагональный, горизонтальный, «рыбья чешуя». Такая фактура должна напоминать о крытых гонтом деревянных домах Гринпойнта, который раньше также называли «Маленькой Польшей».
Жилой комплекс Eagle + West
                Фото © John Cole
        В проект входит прибрежное благоустройство, которым занимались ландшафтные архитекторы James Corner Field Operations, общественные зоны (вестибюли и мост с инфраструктурой), интерьеры которых оформили Marmol Radziner, им же было поручено благоустройство двора и террас. Из открытых пространств горожанам доступны почти 2800 м2.
Жилой комплекс Eagle + West
                Фото © Jason O′Rear
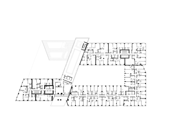
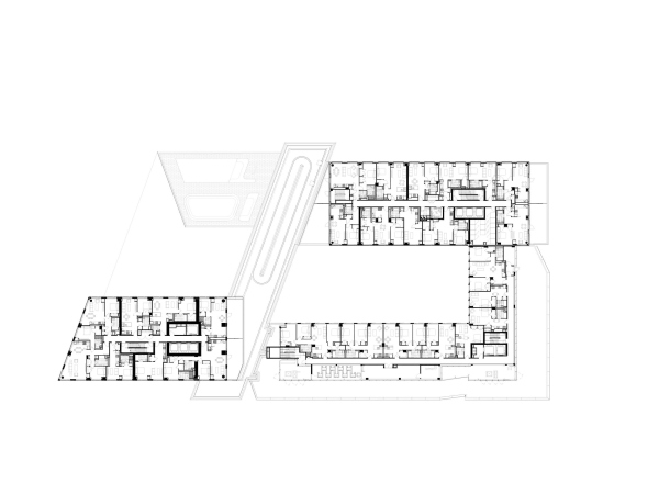
        Всего проект имеет площадь около 80 тыс. м2, из них собственно жилье занимает около 55 тыс. Из 745 квартир 241 – доступное жилье. В башнях квартир почти поровну, 335 и 302, в 7-этажном корпусе – 108. По размеру квартиры делятся на студии (179, в среднем 48 м2), с 1 спальней (349, средняя площадь – 66 м2), с 2 спальнями (192, 100 м2), с 3 спальнями (24, 137 м).
Двухъярусный мост с инфраструктурой для жильцов (доступ к ней оплачивается дополнительно каждый месяц) соединяет башни на уровне 5 и 7 этажей. Нижний уровень занят фитнес-центром, лаунджем для посетителей бассейна, трехсветной комнатой для мероприятий с кухней. Верхний – двумя бассейнами. Кроме того, жильцам доступны терраса для барбекю и игры бочче, общая комната с библиотекой и камином, коворкинг, мастерская с верстаками, детская комната, игровая комната с бильярдом, телеэкранами, настольным футболом и т. д.
Жилой комплекс Eagle + West
                Фото © Ossip van Duivenbode
        Жилой комплекс Eagle + West
                Фото © Jason O′Rear
        Жилой комплекс Eagle + West
                Фото © John Cole
        Жилой комплекс Eagle + West
                Фото © Ossip van Duivenbode
        Жилой комплекс Eagle + West
                Фото © John Cole
        Жилой комплекс Eagle + West
                Фото © Jason O′Rear
        Жилой комплекс Eagle + West
                Фото © Ossip van Duivenbode
        Жилой комплекс Eagle + West
                Фото © Jason O′Rear
        Жилой комплекс Eagle + West
                © OMA
        
 
                         
            
            
         
                            
 
                             
                             
                             
                             
                                         
                                         
                                         
                             
                                         
                                         
                             
                                         
                                         
                                         
                                         
                                         
                                         
                                         
                                         
                             
                                         
                                         
                                         
                                         
                                         
                                         
                                         
                                         
                             
                             
                             
                                         
                                         
                                         
                                         
                                         
                                         
                                         
                                         
                                         
                                         
                                         
                                         
                                         
                                         
                                         
                                         
                             
                                         
                                         
                                         
                                         
                                         
                                         
                                         
                                         
                                         
                                         
                                         
                                         
                                         
                                         
                                         
                             
                                         
                                         
                                         
                                         
                                         
                             
                                         
                                         
                                         
                                         
                                         
                                         
                                         
                     
                                                                        
                                                                     
                                                                        
                                                                     
                                                                        
                                                                     
                                                                        
                                                                     
                                                                        
                                                                     
                                                                        
                                                                     
                                                                        
                                                                     
                                                                        
                                                                     
                                                                        
                                                                     
                                                                        
                                                                     
                                                                        
                                                                     
                                                                        
                                                                     
                                                                        
                                                                     
                                                                        
                                                                     
                                                                        
                                                                     
                                                                        
                                                                     
                                                                        
                                                                     
                                                                        
                                                                     
                                                                        
                                                                     
                                                                        
                                                                     
                                                                        
                                                                     
                                                                        
                                                                     
                                                                        
                                                                     
                                                                        
                                                                     
                                                                        
                                                                     
                                                                        
                                                                     
                                                                        
                                                                     
                                                                        
                                                                     
                                                                        
                                                                     
                                                                        
                                                                     
                                                                        
                                                                     
                                                                        
                                                                     
                                                                        
                                                                     
                                                                        
                                                                     
                                                                        
                                                                     
                                                                        
                                                                     
                                                                        
                                                                     
                                                                        
                                                                     
                                                                        
                                                                     
                                                                        
                                                                     
                                                                        
                                                                     
                                                                        
                                                                     
                                                                        
                                                                     
                                                                        
                                                                     
                                                                        
                                                                     
                                                                        
                                                                     
                                                                        
                                                                     
                                                                        
                                                                     
                                                                        
                                                                     
                                                                        
                                                                     
                                                                        
                                                                     
                                                                        
                                                                     
                                                                        
                                                                     
                                                                        
                                                                     
                                                                        
                                                                     
                                                                        
                                                                     
                                                                        
                                                                     
                                                                        
                                                                     
                                                                        
                                                                     
                                                                        
                                                                     
                                                                        
                                                                     
                                                                        
                                                                     
                                                                        
                                                                     
                                                                        
                                                                     
                                                                        
                                                                     
                                                                        
                                                                     
                                                                        
                                                                     
                                                                        
                                                                     
                                                                        
                                                                     
                                                                        
                                                                     
                                                                        
                                                                     
                                                                        
                                                                     
                                                                        
                                                                     
                                                                        
                                                                     
                                                                        
                                                                     
                                                                        
                                                                     
                                                                        
                                                                     
                                                                        
                                                                     
                                                                        
                                                                     
                                                                        
                                                                     
                                                                        
                                                                     
                                                                        
                                                                     
                                                                        
                                                                     
                                                                        
                                                                     
                                                                        
                                                                     
                                                                        
                                                                     
                                                                        
                                                                     
                                                                        
                                                                     
                                                                        
                                                                     
                                                                        
                                                                     
                                                                        
                                                                     
                                                                        
                                                                     
                                                                        
                                                                     
                                                                        
                                                                     
                                                                        
                                                                     
                                                                        
                                                                     
                                                                        
                                                                     
                                                                        
                                                                     
                                                                        
                                                                     
                                                                        
                                                                     
                                                                        
                                                                     
                                                                        
                                                                     
                                                                        
                                                                     
                                                                        
                                                                     
                                                                        
                                                                    