Штаб-квартира компании Cantina Montelliana в Монтебеллуне
Фотография © Massimo Crivellari
Штаб-квартира компании Cantina Montelliana в Монтебеллуне
Фотография © Massimo Crivellari
Штаб-квартира компании Cantina Montelliana в Монтебеллуне
Фотография © Massimo Crivellari
Штаб-квартира компании Cantina Montelliana в Монтебеллуне
Фотография © Massimo Crivellari
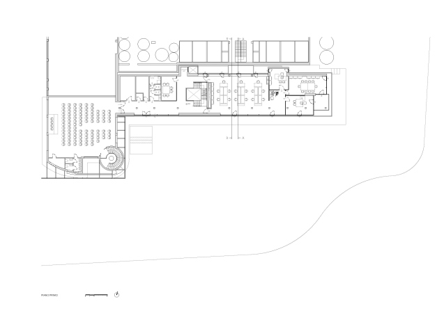
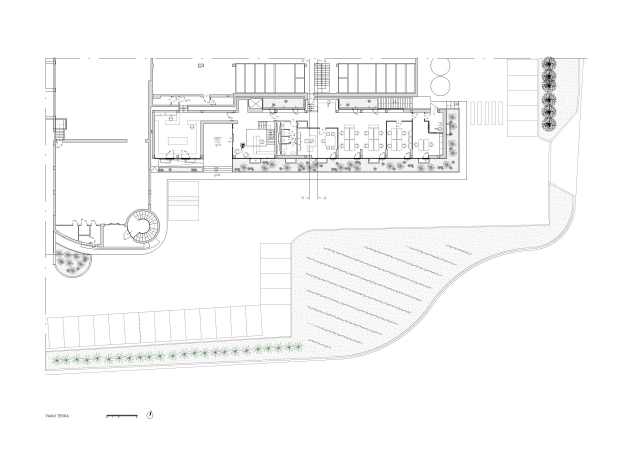
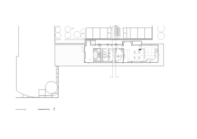
Основатели бюро michielizanatta.net architetti Томмазо Микиели и Кристиан Дзанатта предложили возвести вытянутый прямоугольный объем, выходящий на основную транспортную артерию, связывающую коммуну Монтебеллуна с соседними городами. Протяженностью 50 м и шириной около 10 м, новый корпус имеет три надземных этажа и один подземный. Он заслоняет собой часть старых корпусов и становится центральным, смыслообразующим объектом всего комплекса. Здесь расположены офисы сотрудников и руководства, переговорная, зона дегустаций, конференц-зал и отдельная терраса для мероприятий.
Штаб-квартира компании Cantina Montelliana в Монтебеллуне
Фотография © Massimo Crivellari
Штаб-квартира компании Cantina Montelliana в Монтебеллуне
Фотография © Massimo Crivellari
Штаб-квартира компании Cantina Montelliana в Монтебеллуне
Фотография © Massimo Crivellari
Протяженный уличный фасад получил подчеркнутое горизонтальное деление, в котором чередуются бетонные поверхности и перфорированные панели из гофрированного металла с длинными ленточными окнами и деревянными экранами. Пластически активные вертикальные канавки на бетонных, металлических и деревянных поверхностях приостанавливают и разнообразят это горизонтальное движение. Эта своеобразная игра с вертикалями и экранами продолжается и во внутренних зонах – ее подхватывают деревянные реечные потолки.
Штаб-квартира компании Cantina Montelliana в Монтебеллуне
Фотография © Massimo Crivellari
Штаб-квартира компании Cantina Montelliana в Монтебеллуне
Фотография © Massimo Crivellari
Штаб-квартира компании Cantina Montelliana в Монтебеллуне
Фотография © Massimo Crivellari
Дополнительное разнообразие и яркий акцент вносят также рольшторы, для которых выбрали два оттенка приглушенно-оранжевого. Они активно работают и во внутренних пространствах, добавляя цветовые пятна и создавая видовые «прострелы». Архитекторы здесь вообще активно работают с цветом, не боясь даже самых рискованных сочетаний. Для углубленного основного входа, например, а также для внешней стены винного хранилища, они выбрали ярко-красный. Эта стена расположена прямо за новым объемом очень близко от его окон, поэтому ее «пустили» в интерьер и создали дополнительную зону диалога.
Еще одной задачей было объединить новый корпус с магазином и складом, также выходящими на главную улицу. Для этого перед ними возвели конструкцию из оцинкованной стали, которая и держит полупроницаемый фасад из металлических и деревянных экранов. Он естественным образом продолжает общее горизонтальное движение, но при этом сохраняет структуру и демонстрирует пропорции старых строений.
Штаб-квартира компании Cantina Montelliana в Монтебеллуне
Фотография © Massimo Crivellari
Штаб-квартира компании Cantina Montelliana в Монтебеллуне
Фотография © Massimo Crivellari
Штаб-квартира компании Cantina Montelliana в Монтебеллуне
© michielizanatta.net architetti
Штаб-квартира компании Cantina Montelliana в Монтебеллуне
© michielizanatta.net architetti
Штаб-квартира компании Cantina Montelliana в Монтебеллуне
© michielizanatta.net architetti
Штаб-квартира компании Cantina Montelliana в Монтебеллуне
© michielizanatta.net architetti
