Бизнес-центр Delta
Фото © Aldo Amoretti. Предоставлено PichArchitects
В итоге участок сохранил свой изначальный рельеф и остался ниже уровня улицы, а приподнятое на опорах здание оказалось чуть выше него. Такой ход позволяет лучше охлаждать объем постройки, а также воплощает идею авторов: сооружение не мешает пространству, городскому и природному, разворачиваться беспрепятственно под ним и вокруг него.
Бизнес-центр Delta
Фото © Aldo Amoretti. Предоставлено PichArchitects
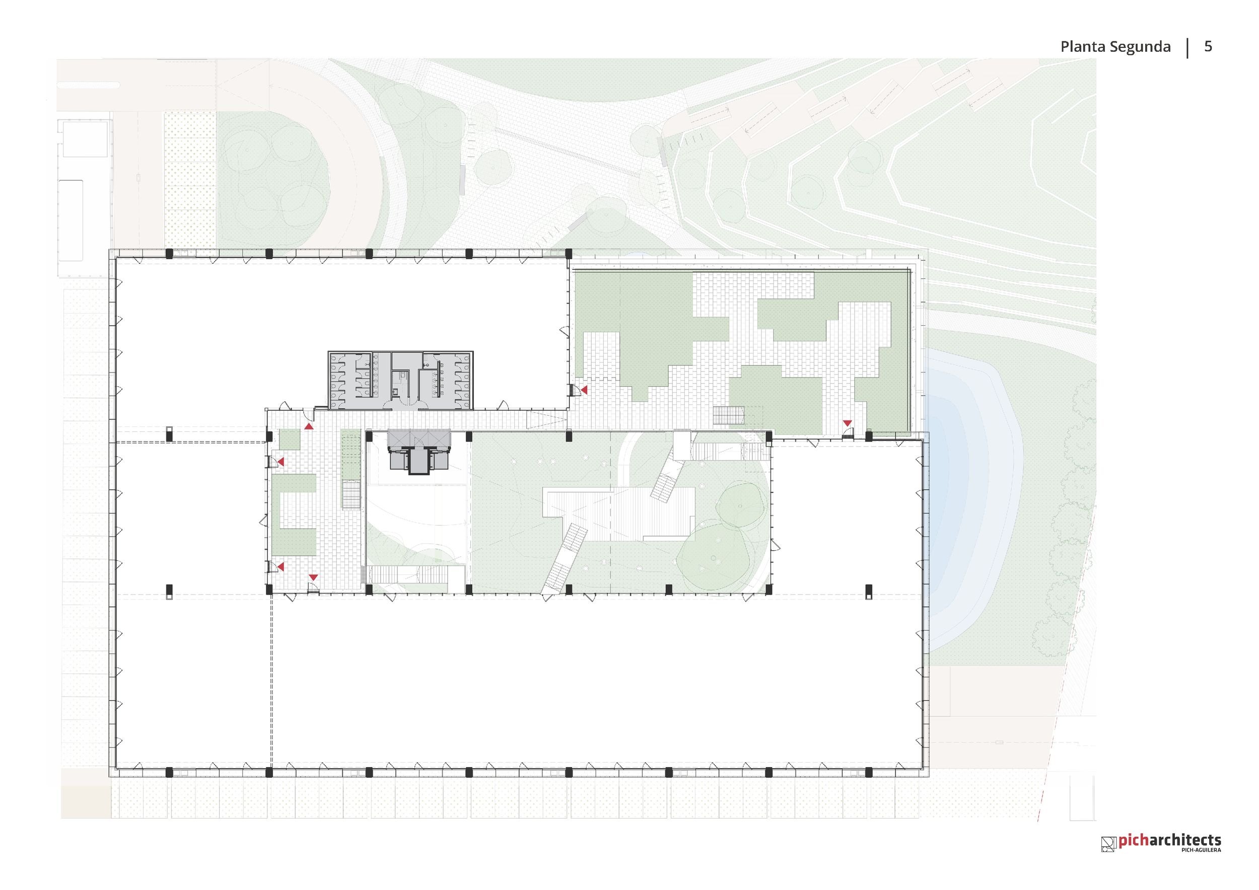
Вестибюль расположен отдельно от офисов: это подземное помещение, замаскированное под зеленый холм. Оттуда сотрудники и посетители поднимаются на лифтах в само здание, где ключевую роль играют двор, внешние лестницы и террасы, размывающие границы постройки, но также помогающие охладить и затенить ее.
Бизнес-центр Delta
Фото © Aldo Amoretti. Предоставлено PichArchitects
Важны в проекте естественная вентиляция, в том числе сквозная, а также солнечный свет, от избытка которого фасады защищает сетчатый экран с разноцветными металлическими вставками. Дворы и пространство непосредственно под зданием озеленены: это устойчивые к засухе растения, на полив которых идет не водопроводная (ее дополнительно экономит эффективное сантехническое оборудование), а дождевая вода, которую собирают с помощью зеленых террас и «устойчивой» системы стоков в специальный резервуар. Управлению осадками помогает и водоем под зданием, служащий для его охлаждения.
Бизнес-центр Delta
Фото © Aldo Amoretti. Предоставлено PichArchitects
Среди других эко-компонентов – эффективные светильники, датчики освещенности и содержания CO2 в помещениях, фотоэлектрические элементы, отопление и охлаждение с помощью тепловых насосов. В итоге, здание потребляет на 53,1 % меньше энергии, чем типичное такой же площади (более 11 тыс. м2).
Гибкие планировки офисов позволят приспособиться к другим, будущим, стандартам, а если дело все же дойдет до демонтажа, то 35 % материалов можно будет использовать повторно, в то время как уже сейчас здесь применили вторсырье, материалы с низким содержанием CO2 и/или отличающиеся долговечностью и повышенной прочностью.
