Театр агломерации коммун Бовези
Фото © Sergio Grazia
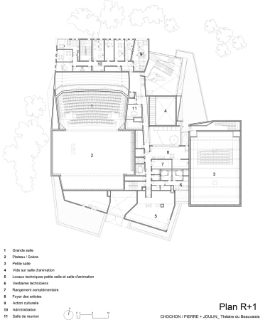
Строительство нового здания решило эту проблему: его главный зал вмещает 650 человек, а зал-трансформер – 175 зрителей. Его расположение соответствует его значению для города: в центре Бове, в районе древнеримских терм, но все же среди послевоенной застройки. Поэтому архитекторы были практически свободны в выборе выразительных средств. Ограничению подлежала лишь высота – максимум 27 м, так как рядом стоит средневековая церковь Сент-Этьен. Знаменитый собор Сен-Пьер тоже недалеко, до него меньше 500 м.
Театр агломерации коммун Бовези
Фото © Sergio Grazia
Архитектура Сент-Этьен в стиле пламенеющей готики вдохновила оформление бетонных фасадов органическим рельефным узором, а теплый тон бетона взят у типичного для застройки Бове камня. Орнаментом украшен и главный зал: рельефы из дерева основаны на растительных мотивах шпалер, которые здесь ткут с XVI века.
Театр агломерации коммун Бовези
Фото © Sergio Grazia
Архитекторы обратились к схемам послевоенной реконструкции, при которой исторические памятники окружали свободным пространством, как экспонат в музее. Например, так расчистили застройку вокруг церкви Сент-Этьен. По такому же принципу архитекторы AJC создали вокруг театра просторные площади и террасы, где могут проводить время горожане, особенно до и после спектакля.
Театр агломерации коммун Бовези
Фото © Sergio Grazia
Не менее щедрое решение получило фойе: его лестницы пересекаются, как на гравюрах Пиранези, но это совсем не мрачное, а наполненное солнцем обширное пространство.
Театр агломерации коммун Бовези
Фото © Sergio Grazia
Театр агломерации коммун Бовези
Фото © Sergio Grazia
Театр агломерации коммун Бовези
Фото © Sergio Grazia
Театр агломерации коммун Бовези
Фото © Sergio Grazia
Театр агломерации коммун Бовези
Фото © Sergio Grazia
Театр агломерации коммун Бовези
Фото © Nicolas Borel
Театр агломерации коммун Бовези
Фото © Sergio Grazia
