Вилла «Мирье»
Фотография © Tomaz Gregoric / предоставлена Ofis Arhitekti
Вилла «Мирье»
/ Villa Mirje
информация:
-
статус
реализовано -
даты
2022 — 2023 / 2023 — 2025 -
место
Словения, Любляна -
координаты
46.045061, 14.500066 -
функция
Жилой / вилла -
теги
Исторический контекст, Реконструкция и реставрация, Металл, Белый цвет -
площадь участка
0,066 га -
общая площадь
510 м2

Ofis /
Ofis Arhitekti / СловенияВилла «Мирье»
Фотография © Tomaz Gregoric / предоставлена Ofis Arhitekti
Архи.ру об этом объекте:
05.09.2025
Анна Старостина. На римских развалинах
Бюро Ofis реконструировало виллу 1920-х годов в центре Любляны, наглядно продемонстрировав многослойный и противоречивый характер застройки словенской столицы.
читать дальшеВилла «Мирье»
Фотография © Tomaz Gregoric / предоставлена Ofis Arhitekti
Вилла «Мирье»
Фотография © Tomaz Gregoric / предоставлена Ofis Arhitekti
Вилла «Мирье»
Фотография © Tomaz Gregoric / предоставлена Ofis Arhitekti
Вилла «Мирье»
Фотография © Tomaz Gregoric / предоставлена Ofis Arhitekti
Вилла «Мирье»
Фотография © Tomaz Gregoric / предоставлена Ofis Arhitekti
Вилла «Мирье»
Фотография © Tomaz Gregoric / предоставлена Ofis Arhitekti
Вилла «Мирье»
Фотография © Tomaz Gregoric / предоставлена Ofis Arhitekti
Вилла «Мирье»
Фотография © Tomaz Gregoric / предоставлена Ofis Arhitekti
Вилла «Мирье»
Фотография © Tomaz Gregoric / предоставлена Ofis Arhitekti
Вилла «Мирье»
Фотография © Tomaz Gregoric / предоставлена Ofis Arhitekti
Вилла «Мирье»
Фотография © Tomaz Gregoric / предоставлена Ofis Arhitekti
Вилла «Мирье»
Фотография © Tomaz Gregoric / предоставлена Ofis Arhitekti
Вилла «Мирье»
Фотография © Tomaz Gregoric / предоставлена Ofis Arhitekti
Вилла «Мирье»
Фотография © Tomaz Gregoric / предоставлена Ofis Arhitekti
Вилла «Мирье»
Фотография © Tomaz Gregoric / предоставлена Ofis Arhitekti
Вилла «Мирье»
Фотография © Tomaz Gregoric / предоставлена Ofis Arhitekti
Вилла «Мирье»
Фотография © Tomaz Gregoric / предоставлена Ofis Arhitekti
Вилла «Мирье»
Фотография © Tomaz Gregoric / предоставлена Ofis Arhitekti
Вилла «Мирье»
Фотография © Tomaz Gregoric / предоставлена Ofis Arhitekti
Вилла «Мирье»
Фотография © Tomaz Gregoric / предоставлена Ofis Arhitekti
Вилла «Мирье»
Фотография © Tomaz Gregoric / предоставлена Ofis Arhitekti
Вилла «Мирье»
Фотография © Tomaz Gregoric / предоставлена Ofis Arhitekti
Вилла «Мирье»
Фотография © Tomaz Gregoric / предоставлена Ofis Arhitekti
Вилла «Мирье»
Фотография © Tomaz Gregoric / предоставлена Ofis Arhitekti
Вилла «Мирье»
Фотография © Tomaz Gregoric / предоставлена Ofis Arhitekti
Вилла «Мирье»
Фотография © Tomaz Gregoric / предоставлена Ofis Arhitekti
Вилла «Мирье»
Фотография © Tomaz Gregoric / предоставлена Ofis Arhitekti
Вилла «Мирье»
Фотография © Tomaz Gregoric / предоставлена Ofis Arhitekti
Вилла «Мирье»
Фотография © Tomaz Gregoric / предоставлена Ofis Arhitekti
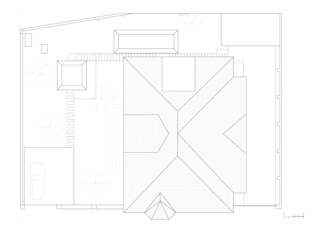
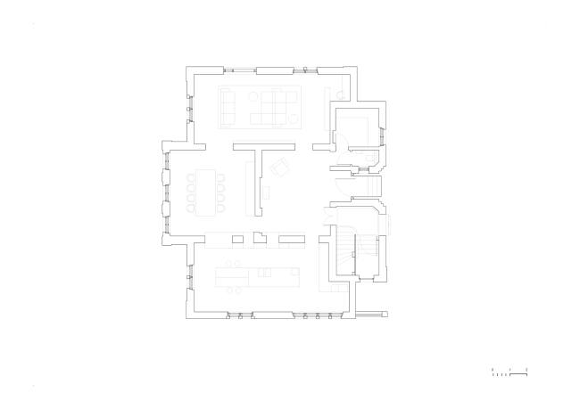
Вилла «Мирье»
© Ofis Arhitekti
Вилла «Мирье»
© Ofis Arhitekti
Вилла «Мирье»
© Ofis Arhitekti
Вилла «Мирье»
© Ofis Arhitekti
Вилла «Мирье»
© Ofis Arhitekti
Вилла «Мирье»
© Ofis Arhitekti
Вилла «Мирье»
© Ofis Arhitekti
Вилла «Мирье»
© Ofis Arhitekti
Вилла «Мирье»
© Ofis Arhitekti
Вилла «Мирье»
© Ofis Arhitekti
Вилла «Мирье»
© Ofis Arhitekti
Вилла «Мирье»
© Ofis Arhitekti
Избранные архитекторы:
Проект из каталога (случайный выбор)
Избранные постройки:
Зарубежные новости
16.10.2025
Крыша из чешуек
15.10.2025
Равнение на Дунай
14.10.2025
«Вычислительная» архитектура
10.10.2025
Жителям каменоломни
09.10.2025