Будущий апарт-отель вытянут компактной узкой полосой от дороги и самого высокого здесь, трехэтажного П-образного здания, где расположен ресепшн и детская игровая комната – к бассейну на противоположной стороне. С востока на запад, параллельно побережью. Это хорошо, так как дает южной веренице домов виды на океан.
Lima Residency
© Проектная группа «8 линий»
Основная часть состоит из двухэтажных таунхаусов, сблокированных по четыре; между ними узкие промежутки и общая ось – узкая пешеходная улица длиной около ста метров, она ведет полого вниз, перепад высот от входа до бассейна 5 метров, но весь комплекс поставлен на высокий цоколь, который позволяет отчасти нивелировать перепад и приподнимает его над влажностью рисовых полей.
Это, конечно, фрагмент малоэтажного южного города, встроенный в буколическое, пока что, окружение.
Все фасады подчинены простому ритмичному паттерну из перпендикулярных полос, напоминающих плетение циновки или какой-то очень стилизованный иероглиф. Он перекликается с «фирменным» написанием названия LIMA, заметно более сложным по рисунку, но тоже «клетчатым».
Полоски планировались прорезными в алюминиевых панелях, но будут реализованы, по-видимому, как рисунок на штукатурке. Первый этаж при входе с улицы планируется отделать деревом.
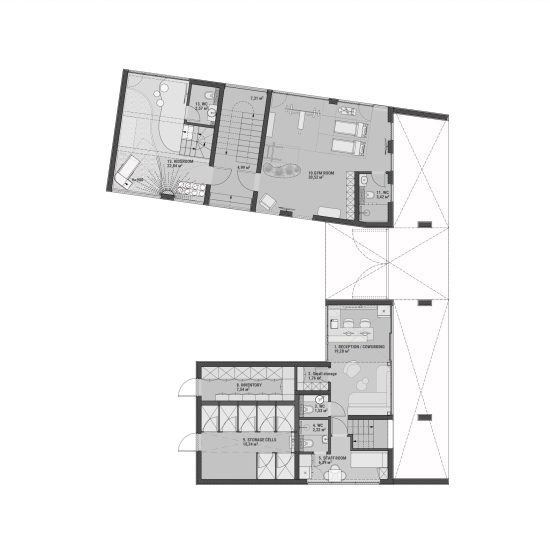
На первом этаже первого здания расположены, в южной части, кладовки для жителей, респешн и микро-коворкинг, в северной игровая комната с акцентом – пальмой, составленной из радиусных плоскостей, спортзал, стол на два рабочих места.
В двух верхних этажах небольшие жилые комнаты. Совсем небольшие; одна из особенностей планировок – компактность и эффективность. На одном сайте по недвижимости сказано, что площадь апартаментов – от 279 ft2, это около 26 м2.
По словам авторов, «...на «Золотой миле» в районе Pererenan отсутствует недорогая недвижимость демократичного формата. Проект нашего комплекса вилл и апартаментов Lima Residences решает эту проблему, предоставляя возможность приобрести жильё и пожить в этом прекрасном месте людям со средним достатком».
Ну как тут было не поинтересоваться ценами на недвижимость на Бали. Проверили: средняя цена в Переренане $3000–3125 за м2; здесь – тоже $3000 с небольшим, то есть прямо в рамках средней цены. Та самая студия 26 м2 будет стоить 7.5 с чем млн в рублях. Не меньше средней цены по своему району; но и не больше. Примерно вдвое дешевле, чем в Москве в переделах ТТК и сопоставимо с ценами в Адмиралтейском районе Петербурга. Впрочем, с теплым морем рядом. Для «цифровых кочевников».
Все интерьеры и ландшафт также спроектированы архитекторами 8Lines; планируется использовать природные материалы местного происхождения, в том числе бамбук.

