Конноспортивный манеж
                © Бюро «Проспект»
        Конноспортивный манеж
                © Бюро «Проспект»
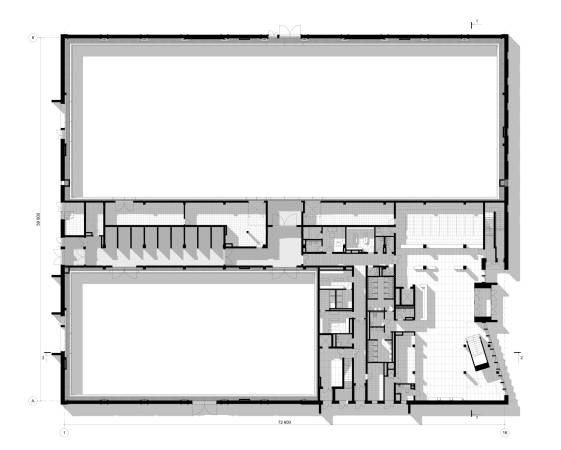
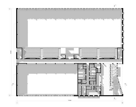
        Новое здание общей площадью почти 8000м2 займет «двор» павильона №43 – когда-то здесь располагался павильон «Собаководство», утраченный еще в 1970-е годы. По отношению к соседним зданиям и прилегающим улицам почти квадратный в плане манеж ориентирован не ортогонально – вероятно, из-за ограниченного участка и особых технологических требований. Главный вход обращен к Окружной аллее и располагается прямо напротив цветника и входной арки, ведущей к Городской ферме, – вместе все эти объекты образуют небольшую площадь.
Конноспортивный манеж
                © Бюро «Проспект»
        Конноспортивный манеж
                © Бюро «Проспект»
        Чтобы скрыть габариты достаточно массивного по сравнению с окружением здания, архитекторы используют традиционную для данной типологии скатную кровлю, а протяженные фасады дробят на соразмерные павильонной застройке секции, включая в отделку дерево и медь. Основной материал фасадов – это светлый натуральный камень, дань палладианской стилистике исторических павильонов «Коневодства». Вертикальные ламели вторят еще одному любопытному строению – восьмигранному павильону-навесу, под которым раньше демонстрировали астраханских верблюдов. С ближних ракурсов ламели напоминают уже не ажурные рейки, а мощные балки традиционной конюшни.
Внутри манежа разместятся две арены. Большая, с полем размером 25 х 70 м, предназначена для тренировок и выступлений. Трибуны здесь вмещают почти 500 человек и ориентированы на север – таким образом, чтобы зрителям открывался вид на пруд Каменка и деревянную набережную. Размер малой арены – 20 х 40 м, здесь лошадей будут разогревать перед выступлениями, а в обычные дни так же проводить тренировки.

 
                         
            
            
         
                                                                                 
                                                                                 
                            
 
                             
                             
                             
                                         
                                         
                                         
                                         
                                         
                                         
                                         
                                         
                                         
                                         
                                         
                                         
                                         
                                         
                                         
                                                                                 
                                                                                 
                     
                                                                        
                                                                     
                                                                        
                                                                     
                                                                        
                                                                     
                                                                        
                                                                     
                                                                        
                                                                     
                                                                        
                                                                     
                                                                        
                                                                     
                                                                        
                                                                     
                                                                        
                                                                     
                                                                        
                                                                     
                                                                        
                                                                     
                                                                        
                                                                     
                                                                        
                                                                     
                                                                        
                                                                     
                                                                        
                                                                     
                                                                        
                                                                     
                                                                        
                                                                     
                                                                        
                                                                     
                                                                        
                                                                     
                                                                        
                                                                     
                                                                        
                                                                     
                                                                        
                                                                     
                                                                        
                                                                     
                                                                        
                                                                     
                                                                        
                                                                     
                                                                        
                                                                     
                                                                        
                                                                     
                                                                        
                                                                     
                                                                        
                                                                     
                                                                        
                                                                     
                                                                        
                                                                     
                                                                        
                                                                     
                                                                        
                                                                     
                                                                        
                                                                     
                                                                        
                                                                     
                                                                        
                                                                     
                                                                        
                                                                     
                                                                        
                                                                     
                                                                        
                                                                     
                                                                        
                                                                     
                                                                        
                                                                     
                                                                        
                                                                     
                                                                        
                                                                     
                                                                        
                                                                     
                                                                        
                                                                     
                                                                        
                                                                     
                                                                        
                                                                     
                                                                        
                                                                     
                                                                        
                                                                     
                                                                        
                                                                     
                                                                        
                                                                     
                                                                        
                                                                     
                                                                        
                                                                     
                                                                        
                                                                     
                                                                        
                                                                     
                                                                        
                                                                    