RSS
Храм для венчаний и крещений. Юго-западный фасад
© ziarch

Храм для венчаний и крещений

информация:

  • статус
    проект
  • даты
    2025
  • region= area=Новомосковский административный округ address= country_t=Россия city_t=
    место
    Новомосковский административный округ
  • функция
    Культовый / Церковь
  • теги
    send.project
  • общая площадь
    121,3 м2
  • высота
    13,4
  • строительный объем
    886 м3
Иван Земляков
Россия

авторский коллектив

Руководитель, архитектор - Иван  Земляков 

Храм для венчаний и крещений. Западный фасад
© ziarch

Архи.ру об этом объекте:

14.04.2026

Приближение таинства

Бюро Ивана Землякова ziarch спроектировало для Новой Москвы небольшой храм для венчаний и крещений, который также включает приходское кафе в духе «Антипы». Автор ясно разделяет мирскую и храмовую части, опираясь на аналоги из архангельских деревень. Постройка дополнит основной храм, перекликаясь с ним схожими материалами в отделке.

Описание предоставлено архитектором Проект подготовлен для одного из приходов Новой Москвы. Необходимость в нем сложилась естественным образом. Здание существующего храма находится в удалении от основного входа на территорию, промежуточной точкой с...   читать дальше
Храм для венчаний и крещений. Северо-западный фасад
© ziarch

история проекта:

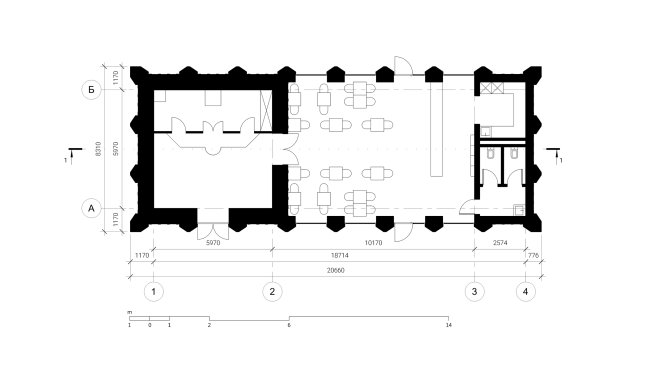
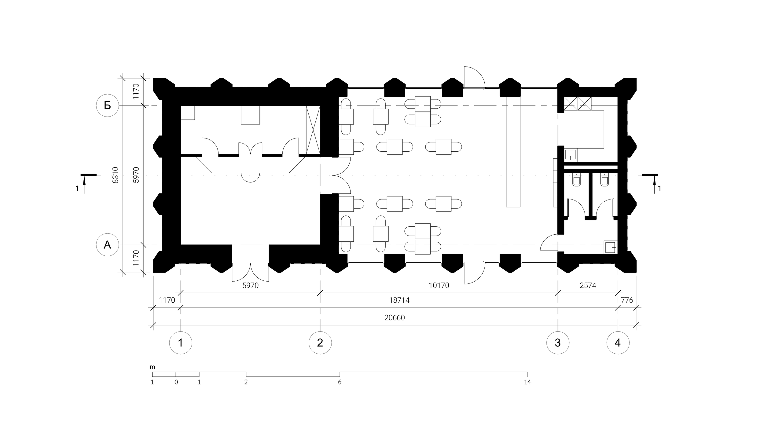
Проект небольшого храма для венчаний и крещений блокированный с приходским кафе был подготовлен для одного из приходов Новой Москвы. Необходимость в этой постройке у прихода возникла естественным образом: здание существующего храма находится в удалении от основного входа на храмовую территорию, и, чтобы функционально нагрузить эту транзитную зону, возникла идея предусмотреть на этом пути промежуточную точку притяжения для прихожан.
Первоначально на храмовой территории был поставлен небольшой киоск по продаже церковной выпечки, а в дальнейшем возникла идея расширить функционал и построить полноценное кафе совмещенное с небольшим храмом для проведения венчаний, крещений и совершения других церковных треб.

описание:

Проектом предусмотрено несколько режимов функционирования помещений, а также заложены возможности их универсального использования: 

1. Режим приходского кафе или чайной – это не только даст возможность внутриприходского общения вне богослужения, но и будет привлекать гостей и местных жителей. Повышает миссионерскую значимость прихода. В теплое время года есть возможность сидеть за столиком на улице в тени деревьев. 

2. Функционирование во время венчаний, крещений и других частных или заказных церковных треб – в данном режиме здание закрыто для общего посещения и функционирует только для ограниченного круга приглашенных людей. Во время таинства крещения или венчания, при большом скоплении гостей, также может использоваться помещение кафе. После совершения таинства для гостей может быть организована трапеза. 

3. Функционирование во время праздников- в данном случае помещение кафе может оставаться как общедоступным, так и работать только для внутриприходской трапезы. Также помещение кафе может быть использовано, например, для раздачи святой воды на Крещение или проведения различных выставок. 

Типология подобной постройки не нова. Известны исторические аналоги подобных сооружений. Прежде всего, следует упомянуть отдельно стоящие трапезные со встроенными алтарями в с. Саунино и с. Поле Архангельской области, которые, к сожалению, не сохранились до наших дней. Это были сугубо светские сооружения, отражающие «оцерковление» их интерьера путем устройства в помещении для пиров и сходов встроенного алтаря. Так же, как аналог данного проекта, следует упомянуть церковь преподобного Сергия с Трапезной палатой в Свято-Троицкой Сергиевой Лавре. На подобном подходе основана и идея данного проекта: в здание со светской функцией добавить церковный элемент. И сделать это так, чтобы подобное совмещение функций ясно читалось на фасадах сооружения. Здание кафе, напоминающее старые торговые ряды, служит как бы футляром для тела храма. Отделка также подчеркивает эту разницу: лаконичные белокаменные стены трапезной контрастируют со сложной кирпичной кладкой фасадов храма. Следует упомянуть, что выбор отделочных материалов в проекте не случаен – фасады существующего на участке для проектирования старинного храма выполнены в этих же материалах (кладка стен из красного кирпича и белокаменный декор).

Интерьер трапезной выполнен в духе кофейни «Антипа», что находится во дворе храма Антипы Пергамского на Колымажном дворе в Москве. В данном проекте удалось создать сакральное сооружение, рассчитанное на формирование постоянной прихрамовой социальной активности в течении года. Постройка хорошо заметна с улицы и легко доступна для людей, что повышает комфортность среды и желание приходить к храму, и тем самым оказываясь в сфере его притяжения. 
 
Храм для венчаний и крещений
© ziarch
Храм для венчаний и крещений
© ziarch
Храм для венчаний и крещений. Интерьер кафе при храме
© ziarch
Храм для венчаний и крещений
© ziarch
Храм для венчаний и крещений. Генеральный план
© ziarch
Храм для венчаний и крещений
© ziarch
Храм для венчаний и крещений
© ziarch

Архитекторы – партнеры Архи.ру:

  • Александр Асадов
  • Константин Ходнев
  • Георгий Трофимов
  • Сергей Переслегин
  • Сергей Кузнецов
  • Никита Явейн
  • Юлиана Княжевская
  • Марина Егорова
  • Татьяна Зульхарнеева
  • Наталья Сидорова
  • Дмитрий Сухов
  • Раис Баишев
  • Александр Котенков
  • Валерий Каняшин
  • Наталия Шилова
  • Дмитрий Буш
  • Андрей Асадов
  • Евгений Подгорнов
  • Алексей Орлов
  • Зураб Басария
  • Николай Кикава
  • Сергей Труханов
  • Евгений Зеленов
  • Екатерина Кузнецова
  • Андрей Романов
  • Станислав Белых
  • Сергей Чобан
  • Антон Надточий
  • Юлия Тряскина
  • Григориос Гавалидис
  • Евгений Новосадюк
  • Всеволод Медведев
  • Ростислав Цайзер
  • Ерлан Бекмухамедов
  • Олег Шапиро
  • Дмитрий Остроумов
  • Полина Воеводина
  • Александр Самарин
  • Энди Сноу
  • Дмитрий Ликин
  • Даниил Лоренц
  • Андрей Гнездилов
  • Владимир Плоткин
  • Олег Мединский
  • Елена Пучкова
  • Игорь Членов
  • Борис Воскобойников
  • Виталий Лутц
  • Павел Андреев
  • Сергей Никешкин
  • Юлий Борисов
  • Владислав Андреев
  • Александр Скокан
  • Михаил Давыдов
  • Антон Яр-Скрябин
  • Андрей Михайлов
  • Александра Кузьмина
  • Игорь Шварцман
  • Николай Переслегин
  • Анастасия Абашева
  • Михаил Канунников
  • Мария Ахременкова
  • Иван Кожин
  • Вера Бутко
  • Юлия Солдатенкова
  • Илья Машков
  • Степан Липгарт
  • Григорий Мустафин
  • Сергей Скуратов
  • Василий Крапивин
  • Тимур Абдуллаев
  • Екатерина Абдуллаева
  • Маргарита Авдышева
  • Левон Айрапетов
  • Александр Аношкин
  • Алексей Афоничкин
  • Владислав Бек-Булатов
  • Антон Белов
  • Татьяна Бузулукова
  • Петр Васильев
  • Данило Вукосавлевич
  • Алина Георгиевская
  • Павел Гордеев
  • Илья Гринберг
  • Никита Демидов
  • Никита Дергунов
  • Наталья Жилкина
  • Алексей Зародов
  • Екатерина Зырина
  • Алексей Ильин
  • Дарья Ильина
  • Олег Карлсон
  • Алексей Кибкало
  • Денис Кувшинников
  • Анна Куликова
  • Алексей Курков
  • Данил Куров
  • Мария Кутай
  • Евгений Кутай
  • Иван Кычкин
  • Антон Ладыгин
  • Дмитрий Лапин
  • Борис Левянт
  • Илья Левянт
  • Катерина Левянт
  • Валерий Лукомский
  • Антон Лукомский
  • Екатерина Ляпунова
  • Иса Магомедов
  • Сергей Марков
  • Елена Мерцалова
  • Николай Миловидов
  • Станислав Михаловский
  • Сергей Мичурин
  • Олеся Могилевская
  • Филипп Никандров
  • Мария Николаева
  • Дмитрий Овчаров
  • Сергей Пергаев
  • Виктор Перов
  • Алексей Полищук
  • Роман Пономарёв
  • Валерия Преображенская
  • Виктория Раубо
  • Василий Рыбаков
  • Николай Рыбаков
  • Мария Салех
  • Александр Стариков
  • Илья Уткин
  • Елисей Чакан
  • Бориша Чорович
  • Олег Шурыгин
  • Дмитрий Шурыгин

Проект из каталога (случайный выбор)

Постройки и проекты (новые записи):

  • Деловое пространство «ПЛЭЙН»
  • Porta
  • Детский сад на 200 мест в Жилино-1
  • Архитектурная концепция кластера Ломоносов-2
  • Клубный дом в 1-м Казачьем переулке
  • Частный дом в Ленинградской области
  • IT-кластер TravelLine в Йошкар-Оле
  • Гостиничный комплекс Cosmos Selection Derbent 5
  • Офис компании АльфаСтрахование

Новости российской архитектуры:

Курган памяти
08.05.2026

Курган памяти

Никита Явейн
Баня по-царски
07.05.2026

Баня по-царски

Ольга Смоленская
«Заря» над волнами
07.05.2026

«Заря» над волнами

Дарья Виноградова
Белый конгломерат
07.05.2026

Белый конгломерат

Александр Томашенко, Андрей Горелов, Василий Сошников, Иван Колманок, Николай Фугаров, Владимир Плоткин