|
В историческом центре Риги, на месте бывшего советского вычислительного центра, открылось новое здание посольство Эстонии. Проект бюро Архип (United Riga Architects) бережно сохраняет память о модернистском прошлом, сочетая ее с современными архитектурными решениями и технологиями.
Первоначально проект реконструкции вычислительного центра 1982 года постройки разрабатывался для финтех-компании Bilderlings. Команда бюро Архип (United Riga Architects) во главе с Евгением Леоновым создала эскиз, который получил одобрение властей, однако не удовлетворил заказчика, и компания приняла решение здание продать. Покупателем выступило Министерство иностранных дел Эстонии. Оно также обратилось к United Riga Architects, и архитекторы разработали второй проект, на сей раз адаптированный под нужды посольства.
 Авторам удалось найти баланс между интересами различных сторон. Ведомство по контролю за памятниками архитектуры и искусства Латвии настаивало на сохранении советского фасада, считая его ценным примером позднего модернизма, тогда как эстонский МИД стремился получить современное и выразительное здание. Мнения членов Рижского исторического совета менялись от заседания к заседанию. Ранее представленные проекты перестройки от таких архитекторов, как Зайга Гайле и Ингурдс Лаздиньш, согласование не прошли. Идея от бюро Архип (United Riga Architects) оказалась более успешной. Как отметил глава исторического совета Андрис Кронбергс, оценивая работу Евгения Леонова и его коллег: «Это было невозможно, абсолютно невозможно, но вы это сделали».
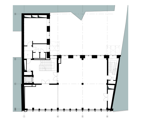
 Здание включает посольство, консульство, выставочные пространства e-Estonia и официальную резиденцию посла с квартирой.
Архитектурной особенностью проекта является стеклянный фасад с большими окнами-витринами. Общим геометрическим рисунком фасад повторяет своего советского предшественника, но совершенно в ином, современном ключе. Окна обрамлены сильно выступающими карнизами и ламелями сложной трехмерной формы, вырезанными из цельных каменных блоков, что стало первым примером трехмерной резки массивов камня в фасадной отделке в странах Балтии. Все ламели различаются по профилю и установлены таким образом, что при движении вдоль фасада создается впечатление набегающей волны.
 Камень для облицовки выбран не случайно. Это Каарма – серый известняк с голубоватым оттенком, который считается национальным символом Эстонии, и это подчеркивает статус и функцию объекта.
 Стекла у здания тоже непростые: они украшены архитектурным орнаментом в виде черного градиента, выполненного в технике halftone.
 Планировка здания проста и функциональна: на цокольном и первом этажах размещены выставочные залы e-Estonia и консульский отдел, второй этаж занимает офисная зона и трансформируемое пространство для проведения мероприятий, а верхние этажи отведены под официальную резиденцию посла и его служебную квартиру с террасой.
 Архитектурный образ строится на контрасте стекла и камня. Простота геометрии компенсируется глубокой проработкой деталей. Цветовая гамма нейтральна – серый и черный в сочетании с прозрачным стеклом, что отражает современный деловой характер объекта и не вступает в конфликт с окружением.
 Здание деликатно вписано в историческую застройку, высота и рисунок фасада соответствуют масштабу улицы, в вечернее время архитектонику подчеркивает дизайнерская подсветка.
 Посольство Эстонии в Риге – пример того, как можно переосмыслить модернизм средствами современной архитектуры. Здание, с одной стороны, представляет собой образец международного офисного стиля, а с другой – воплощает национальную идентичность Эстонии. Архитекторам удалось согласовать – причем дважды! – проект со всеми инстанциями и при этом сохранить до конца авторскую концепцию.  Посольство Эстонии в Латвии. Главный фасадФотография © Tõnu Tunnel / предоставлена Архип
Посольство Эстонии в Латвии. Входная группаФотография © Tõnu Tunnel / предоставлена АрхипПосольство Эстонии в Латвии. Входная группаФотография © Tõnu Tunnel / предоставлена АрхипПосольство Эстонии в Латвии. Входная группаФотография © Tõnu Tunnel / предоставлена АрхипПосольство Эстонии в Латвии. Главный фасадФотография © Tõnu Tunnel / предоставлена АрхипПосольство Эстонии в Латвии. Главный фасадФотография © Tõnu Tunnel / предоставлена АрхипПосольство Эстонии в Латвии. Главный фасадФотография © Tõnu Tunnel / предоставлена АрхипПосольство Эстонии в Латвии. Входная группаФотография © Tõnu Tunnel / предоставлена АрхипПосольство Эстонии в Латвии. Входная группаФотография © Tõnu Tunnel / предоставлена АрхипПосольство Эстонии в Латвии. Камень КаармаФотография © Tõnu Tunnel / предоставлена АрхипПосольство Эстонии в Латвии. Главный фасадФотография © Tõnu Tunnel / предоставлена Архип
Посольство Эстонии в Латвии. Главный фасадФотография © Tõnu Tunnel / предоставлена Архип
Посольство Эстонии в Латвии. ЗалФотография © Tõnu Tunnel / предоставлена АрхипПосольство Эстонии в Латвии. ВестибюльФотография © Tõnu Tunnel / предоставлена АрхипПосольство Эстонии в Латвии. ХоллФотография © Tõnu Tunnel / предоставлена АрхипПосольство Эстонии в Латвии. ЗалФотография © Tõnu Tunnel / предоставлена АрхипПосольство Эстонии в ЛатвииФотография © Tõnu Tunnel / предоставлена АрхипПосольство Эстонии в Латвии. Выставочный залФотография © Tõnu Tunnel / предоставлена АрхипПосольство Эстонии в Латвии. Выставочный залФотография © Tõnu Tunnel / предоставлена АрхипПосольство Эстонии в Латвии© АрхипПосольство Эстонии в Латвии© АрхипПосольство Эстонии в Латвии© АрхипПосольство Эстонии в Латвии© АрхипПосольство Эстонии в Латвии. Главный фасад© АрхипПосольство Эстонии в Латвии© АрхипПосольство Эстонии в Латвии. Фасад во двор© АрхипПосольство Эстонии в Латвии© АрхипПосольство Эстонии в Латвии. Дворовый фасад© АрхипПосольство Эстонии в Латвии. Главный вход-узел© АрхипПосольство Эстонии в Латвии. Развертка камня© АрхипПосольство Эстонии в Латвии. Горизонтальное сечение© АрхипПосольство Эстонии в Латвии. Решение кровли© АрхипПосольство Эстонии в Латвии. Спецификации камня© АрхипПосольство Эстонии в Латвии. Остекление главный фасад© АрхипПосольство Эстонии в Латвии. План 1 этажа© АрхипПосольство Эстонии в Латвии. План 2 этажа© Архип
|