Посольство Эстонии в Латвии. Главный фасад
Фотография © Tõnu Tunnel / предоставлена Архип
Посольство Эстонии в Латвии
информация:
-
статус
реализовано -
даты
2017 — 2023 / 2023 — 2025 -
место
Латвия, Рига
Ул. Пилс 8-10 -
координаты
56.950309, 24.102443 -
функция
Административно-офисный / административно-офисное здание
Посольство -
теги
send.project -
общая площадь
1 870 м2 -
высота
17 -
этажность
5 -
строительный объем
56 000 м3 -
авторский коллектив
Главный архитектор: Евгений Леонов
Архитекторы проекта: Александр Бородкин, Байба Верпе, Иво Дзенис -
партнеры, заказчики, смежники
Дизайн интерьера: Кадри Тамме
Конструкции и инженерия: CMB
Заказчик: МИД Эстонии

Евгений Леонов /
Eugene Leonov / ЛатвияАрхип (United Riga Architects) /
/ ЛатвияПосольство Эстонии в Латвии. Главный фасад
Фотография © Tõnu Tunnel / предоставлена Архип
Архи.ру об этом объекте:
Архитектура дипломатии
В историческом центре Риги, на месте бывшего советского вычислительного центра, открылось новое здание – Посольство Эстонии. Проект бюро United Riga Architects бережно сохраняет память о модернистском прошлом, сочетая её с современными архитектурными решениями и технологиями.
читать дальшеПосольство Эстонии в Латвии. Главный фасад
Фотография © Tõnu Tunnel / предоставлена Архип
история проекта:
Первый проект разрабатывался для финтех-компании Билдерлингс, после чего компания продала объект Министерству иностранных дел Эстонии, которое, в свою очередь, также обратилось к нам – и мы создали второй проект.
описание:
Здание Посольства Эстонии в Латвии с консульством, выставочным пространством и резиденцией посла с квартирой располагается в здании, построенном на месте советского вычислительного центра 1982 года. Основной архитектурной особенностью является фасад – с карнизами и ламелями, облицованными трёхмерно вырезанными массивными блоками камня Каарма. Этот серый известняк с голубоватым оттенком является национальным символом Эстонии, что подчёркивает предназначение здания. Ламели имеют разные углы в сечении, создавая иллюзию волны при движении вдоль фасада. Также фасад украшен крупноформатным структурным остеклением с архитектурным орнаментом в виде чёрного градиента и техникой “halftone”.
Контекст и решение Авторам проекта удалось найти тонкий баланс между интересами различных сторон. ВКПАИ настаивал на полном сохранении советского фасада, который, хотя и не имел охранного статуса, считался ценным как один из двух примеров позднего советского модернизма в Риге. Эстония стремилась получить современное и оригинальное здание. Позиции членов Рижского городского исторического совета были разными и менялись от заседания к заседанию. Ранее проекты перестройки этого здания от таких известных архитекторов, как Зайга Гайле и Ингурдс Лаздиньш, не были согласованы.
Проект впервые попал к Евгению Леонову как заказ от финансовой компании Bilderlings. Команде Леонова удалось создать эскиз, который получил одобрение властей, однако он не устроил заказчика, и здание было продано. Таким образом, посольство – это уже второй проект Леонова, согласованный для этого места. Как сказал глава Рижского исторического совета Андрис Кронбергс: «Это было невозможно. Абсолютно невозможно. Но вы это сделали».
Стиль
Здание выполнено в неомодернистском и неоклассическом стиле с элементами параметрической архитектуры: чёткие геометрические формы, акцент на материалы и свет, лаконичные детали, отсылки к классике – карнизы и пилястры. Несмотря на современность, здание деликатно вписано в масштаб и ритм исторической улицы. Фасад организован ритмичным рядом вертикальных оконных проёмов, подчеркнутых световыми нишами и рамами. Каждое окно обрамлено каменными ламелями, создающими динамичный ритм. Все ламели отличаются углом в сечении, что придаёт фасаду лёгкое волнообразное движение.
Использованы гладкие стеклянные панели и камень, создающий тактильный и визуальный контраст. Встроенное архитектурное освещение подчёркивает вертикальные элементы, усиливая ритм и выразительность в тёмное время суток. Крупные оконные проёмы визуально открывают интерьер, связывая его с городом. Цветовая палитра нейтральна – серый, чёрный, прозрачный – подчёркивая деловой, современный характер здания, не вступая в конфликт с историческим контекстом.
Камень Каарма
Серый пористый известняк, добываемый в Эстонии, является национальной гордостью и символом страны. Фасады здания облицованы этим камнем. Карнизы и ламели сложной треугольной и пятиугольной формы вырезаны из цельных каменных блоков Каарма. Это первый случай в странах Балтии, когда для фасадной отделки применяются массивы камня с трёхмерной резкой.
Параметрический подход Фасадные ламели имеют разный угол сечения, который плавно меняется от одной к другой. По замыслу архитекторов, это создаёт иллюзию волны при движении вдоль узкой улицы, где фасад воспринимается под острым углом.
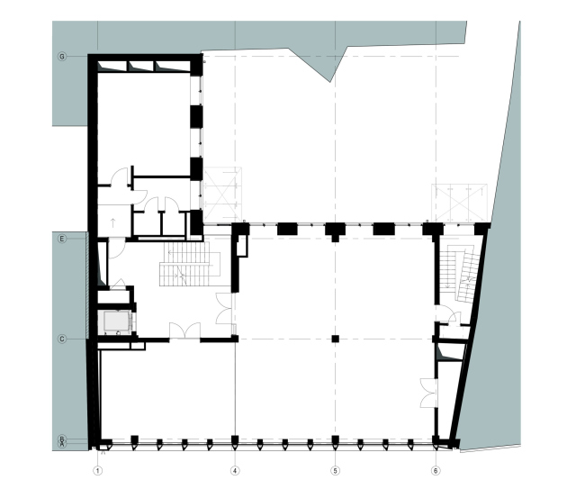
Планировка
Помимо самого посольства, в здании размещён консульский отдел. На первом и цокольном этажах находятся выставочные залы e-Estonia. На втором – офисы сотрудников и трансформируемое пространство для различных мероприятий. На верхних этажах – официальная резиденция посла и служебная квартира с небольшой террасой.