Общеобразовательная школа на 1100 мест в микрорайоне «Северная Бытха» Хостинского района
© арх.15
Общеобразовательная школа на 1100 мест в микрорайоне «Северная Бытха» Хостинского района
информация:
-
статус
в процессе реализации -
даты
— 2022 -
место
Сочи микрорайон Бытха -
координаты
43.571028, 39.766209 -
функция
Образование и наука / Школа -
теги
send.project -
площадь участка
2,6796 га -
площадь застройки
7 243,9 м2 -
общая площадь
26 853,23 м2 -
высота
18,70 -
этажность
3 -
строительный объем
102 274,16 м3

Виктор Сидаков
Россия
Ирина Сидакова
Россияарх.15
Россияавторский коллектив
ГАП: Виктор Сидаков
Главный дизайнер: Ирина Сидакова
Проектная и рабочая документация: Капитальный проект
Руководитель: Павел Ендуткин
ГАП: Евгений Астахов
ГИП: Ольга Ендуткина
Главный конструктор: Артур Паульс
партнеры, заказчики, смежники
Общеобразовательная школа на 1100 мест в микрорайоне «Северная Бытха» Хостинского района
© арх.15
Архи.ру об этом объекте:
Школа как доминанта
Бюро арх.15 актуализировало типовой проект общеобразовательной школы на 1100 мест в Хостинском районе. Функциональные блоки отличаются фасадными решениями, задействована кровля, а для оформления учебных и рекреационных пространств формальный подход отвергнут в пользу адаптивного.
Описание предоставлено архитекторами Участок находится в микрорайоне Сочи Северная Бытха , где строятся новые жилые комплексы с современными фасадами и большим количеством остекления. Предыдущий типовой проект школы был выполнен в псевдоклассическ... читать дальшеОбщеобразовательная школа на 1100 мест в микрорайоне «Северная Бытха» Хостинского района
© арх.15
история проекта:
Первоначальный проект школы был выполнен и согласован в экспертизе еще в 2018 году. В 2022 году, когда началось строительство школы, было обнаружено, что новое программное задание от Управления образования не соответствует текущему проекту. После чего заказчик МКУ г. Сочи «УКС» обратился в ООО «Капитальный проект» для корректировки проектной и рабочей документации. Нас генеральный проектировщик привлек как концептуальный отдел для разработки новых фасадных решений, так как заказчик попросил осовременить фасады типового проекта (аналогичный проект школы уже запроектировали в нескольких районах г. Сочи)
Начав работу над проектом, совместно с генпроектировщиком, мы убедили заказчика, что необходимо подходить комплексно к проектированию. Нужно разработать концепцию фасадных решений вместе с проектом благоустройства и разработать дизайн-проект интерьеров (чего не было в типовом проекте)
Пройдя сложный путь трансформации типового проекта мы решили не только рассказать об итоге работы, но и поднять тему целесообразности типовых проектов.
описание:
Проблематика
В настоящее время в России существует острая необходимость в строительстве новых школ и модернизации уже существующих, чтобы они соответствовали современным требованиям образовательного процесса. Несмотря на выделение государственного финансирования и разработку соответствующих программ, по-прежнему существует практика использования типовых проектов для строительства образовательных учреждений.
Существует мнение, что такой подход позволяет сэкономить средства на проектировании и сокращает сроки строительства. Однако на практике оказывается, что стоимость полного проекта составляет около 2% от стоимости объекта. Если рассмотреть скорость реализации, то на деле приходится адаптировать типовой проект под актуальные нормативные требования, особенности участка и программное задание от Управления образования. Для этого привлекаются проектные организации, что требует дополнительных затрат времени и средств. При этом типовые решения не включают проект интерьеров, разработку системы навигации и создание брендбука по графическому оформлению школ.
Школа представляет собой одну из ключевых ступеней образовательного процесса детей. Помимо содержания образования, важно создавать среду обучения, запоминающуюся архитектуру с интересным пространством внутри. Назрела необходимость в качественных изменениях в образовательных учреждениях, в школах внедряется педагогический дизайн, проповедующий вариативность и креативность обучения, мобильность и многофункциональность учебной среды.
Наш проект
Нам представилась возможность поработать над готовым типовым проектом школы на 1100 мест в городе Сочи, который не соответствовал актуальным требованиям Управления образования ни по одному из параметров, но тем не менее проект привязки этого типового проекта получил положительное заключение государственной экспертизы.
Участок проектирования находится в микрорайоне «Северная Бытха», где идет застройка новыми жилыми комплексами с современными фасадами и большим количеством остекления. Предыдущий типовой проект школы был выполнен в псевдоклассическом стиле со скатной кровлей и не вписывался в окружающий контекст.
Кровля здания школы хорошо просматривается из окон окружающей застройки, а сложный рельеф не позволяет в полной мере использовать участок школы. Мы предложили рассматривать кровлю как «пятый фасад», сделав её эксплуатируемой. Это решило множество проблем: разместили дополнительную спортивную площадку, зоны отдыха для школьников разных возрастов и часть учебных зон на открытом воздухе. Разбивка мощения на кровле продолжает общую композицию благоустройства территории, создавая единый рисунок всего участка.
Благоустройство территории выполнено на контрасте с фасадами. Фасады имеют геометричные формы, а мощение природные линии.
Все случайные выступы старого проекта по фасаду были нивелированы путем перепланировки. Одной из задач новых фасадных решений было разделить протяженное здание школы на соразмерные человеку объемы. Главный вход, выходящий на площадь для проведения линеек, обрамлен порталом, выполненным в отделке под дерево. Тема порталов поддерживается и на других фасадах. Яркие порталы появились на глухих торцах со стороны стадиона, на выступах и при разделении объемов.
Здание имеет три типа композиционной разбивки элементов фасада: четкий ритм окон и простенков в блоке старших классов, шахматный порядок с разной шириной окон для блока начальных классов и витражные окна с вертикальными ламелями на всю высоту здания для спортблока. Помимо крупной пластики членения фасадов, добавили более мелкую деталировку на панелях в виде тиснения с рисунком букв русского алфавита.
Интерьеры
Основным задачами интерьерных решений было скорректировать планировочные решения: предусмотреть различные сценарии зонирования, сделать общественные зоны точками притяжения школьников и внедрить в цветовую гамму интерьеров фирменные цвета школы. При перепланировке столкнулись с нехваткой площадей для общественных зон, невозможностью устройства двусветных пространств в рекреациях и наличием бесполезных помещений, которые использовались не по назначению.
Класс сегодня представляет собой не только фронтальную форму организации работы, но и многофункциональное пространство с возможностью трансформации и расширения. Открытость кабинетов и возможность наблюдать за учебным процессом – важный маркер современной школы. Обучение не всегда происходит только в классе – для этого можно использовать рекреации, вестибюли или библиотеки. Библиотека и медиатека выходят за пределы кабинетов, книги и интерактивные зоны появляются там, где ученики отдыхают. Обучение происходит непрерывно, просто изменяя форму.
В типовой библиотеке обычно можно увидеть стандартную фронтальную расстановку парт с рабочим столом библиотекаря, компактно расположенную зону открытого хранения и несколько столов с компьютерами. Однако это помещение таит в себе невиданный потенциал. Место, куда дети захотят прийти отдохнуть и пообщаться, научится чему-то новому. Где можно записаться на кружок, провести мини-спектакли или поучаствовать в мозговых штурмах.
Примерно такие же проблемы существуют и с рекреациями. Рекреация это как правило многофункциональное помещение с возможностью отдыха, а поскольку формат отдыха вариативен, то необходимо предусмотреть различные сценарии использования пространства и его наполнения, сделать это помещение узнаваемым и нестандартным.
Выводы
В архитектурной застройке школа всегда является акцентным зданием как в маленьких городах, так и в мегаполисах. Это делает ваш район особенным и непохожим на соседние. Их строят на долгий срок эксплуатации, поэтому помимо практичности и надежности, необходимо достаточно быстро внедрять актуальные и прогнозировать возможные будущие потребности. Мы находимся на том этапе, когда недостаточно просто соблюсти требования по площади, освещенности и минимальному набору оборудования. У государства и людей есть запрос на качественное образование, которое требует другого подхода к проектированию учебных заведений.
Общеобразовательная школа на 1100 мест в микрорайоне «Северная Бытха» Хостинского района
© арх.15
Общеобразовательная школа на 1100 мест в микрорайоне «Северная Бытха» Хостинского района
© арх.15
Общеобразовательная школа на 1100 мест в микрорайоне «Северная Бытха» Хостинского района
© арх.15
Общеобразовательная школа на 1100 мест в микрорайоне «Северная Бытха» Хостинского района
© арх.15
Общеобразовательная школа на 1100 мест в микрорайоне «Северная Бытха» Хостинского района
© арх.15
Общеобразовательная школа на 1100 мест в микрорайоне «Северная Бытха» Хостинского района. Актовый зал
© арх.15
Общеобразовательная школа на 1100 мест в микрорайоне «Северная Бытха» Хостинского района. Библиотека
© арх.15
Общеобразовательная школа на 1100 мест в микрорайоне «Северная Бытха» Хостинского района. Библиотека
© арх.15
Общеобразовательная школа на 1100 мест в микрорайоне «Северная Бытха» Хостинского района. Библиотека
© арх.15
Общеобразовательная школа на 1100 мест в микрорайоне «Северная Бытха» Хостинского района. Учебный кабинет блока начальных классов
© арх.15
Общеобразовательная школа на 1100 мест в микрорайоне «Северная Бытха» Хостинского района. Учебный кабинет блока начальных классов
© арх.15
Общеобразовательная школа на 1100 мест в микрорайоне «Северная Бытха» Хостинского района. Лестница блока начальных классов
© арх.15
Общеобразовательная школа на 1100 мест в микрорайоне «Северная Бытха» Хостинского района. Рекреация блока начальных классов
© арх.15
Общеобразовательная школа на 1100 мест в микрорайоне «Северная Бытха» Хостинского района. Рекреация блока начальных классов
© арх.15
Общеобразовательная школа на 1100 мест в микрорайоне «Северная Бытха» Хостинского района. Рекреация блока начальных классов
© арх.15
Общеобразовательная школа на 1100 мест в микрорайоне «Северная Бытха» Хостинского района. Рекреация блока начальных классов
© арх.15
Общеобразовательная школа на 1100 мест в микрорайоне «Северная Бытха» Хостинского района. Рекреация блока начальных классов
© арх.15
Общеобразовательная школа на 1100 мест в микрорайоне «Северная Бытха» Хостинского района. Учебный кабинет блока старших классов
© арх.15
Общеобразовательная школа на 1100 мест в микрорайоне «Северная Бытха» Хостинского района. Учебный кабинет блока старших классов
© арх.15
Общеобразовательная школа на 1100 мест в микрорайоне «Северная Бытха» Хостинского района. Учебный кабинет блока старших классов
© арх.15
Общеобразовательная школа на 1100 мест в микрорайоне «Северная Бытха» Хостинского района. Рекреация блока старших классов
© арх.15
Общеобразовательная школа на 1100 мест в микрорайоне «Северная Бытха» Хостинского района. Рекреация блока старших классов
© арх.15
Общеобразовательная школа на 1100 мест в микрорайоне «Северная Бытха» Хостинского района. Входной холл
© арх.15
Общеобразовательная школа на 1100 мест в микрорайоне «Северная Бытха» Хостинского района. Входной холл
© арх.15
Общеобразовательная школа на 1100 мест в микрорайоне «Северная Бытха» Хостинского района. Спортзал
© арх.15
Общеобразовательная школа на 1100 мест в микрорайоне «Северная Бытха» Хостинского района. Столовая
© арх.15
Общеобразовательная школа на 1100 мест в микрорайоне «Северная Бытха» Хостинского района. Столовая
© арх.15
Общеобразовательная школа на 1100 мест в микрорайоне «Северная Бытха» Хостинского района. Столовая
© арх.15
Общеобразовательная школа на 1100 мест в микрорайоне «Северная Бытха» Хостинского района. Ситуационный план
© арх.15
Общеобразовательная школа на 1100 мест в микрорайоне «Северная Бытха» Хостинского района. Генплан
© арх.15
Общеобразовательная школа на 1100 мест в микрорайоне «Северная Бытха» Хостинского района
© арх.15
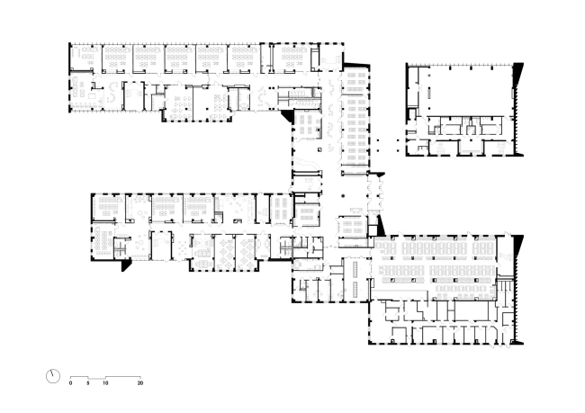
Общеобразовательная школа на 1100 мест в микрорайоне «Северная Бытха» Хостинского района. План 1 этажа
© арх.15
Общеобразовательная школа на 1100 мест в микрорайоне «Северная Бытха» Хостинского района. План 2 этажа
© арх.15
Общеобразовательная школа на 1100 мест в микрорайоне «Северная Бытха» Хостинского района. План 3 этажа
© арх.15
Общеобразовательная школа на 1100 мест в микрорайоне «Северная Бытха» Хостинского района. Разрез
© арх.15
Общеобразовательная школа на 1100 мест в микрорайоне «Северная Бытха» Хостинского района
© арх.15
Общеобразовательная школа на 1100 мест в микрорайоне «Северная Бытха» Хостинского района
© арх.15
Общеобразовательная школа на 1100 мест в микрорайоне «Северная Бытха» Хостинского района
© арх.15
Общеобразовательная школа на 1100 мест в микрорайоне «Северная Бытха» Хостинского района
© арх.15
Архитекторы – партнеры Архи.ру:
Проект из каталога (случайный выбор)
