Владелец компании «Полисфера» родом из Уварово, поэтому было принято решение выкупить заброшенное здание дома культуры (прим.ред.: судя по данным карты Викимапия, здание было построено в 1960-е годы на основе типового проекта 264-12-2) и переделать его под собственное производство. Основная задача заключалась в гармоничном вписывании здания в контекст парка Сахарного завода и интеграции производственного здания в культурную жизнь города.
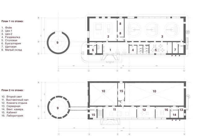
Основное функционально-планировочное решение направлено на обеспечение максимальной производительности при обязательном соблюдении качества рабочих мест. Предусмотрены дополнительные световые проемы, комната отдыха сотрудников с библиотекой, кухня-столовая, также организован приток охлажденного воздуха на уровень рабочего пространства.
Объемно-пространственное решение построено на придании динамики форме за счет создания асимметричной композиции с акцентированным главным входом, тонким металлическим мостом и вертикальными инженерными элементами, вынесенными на главный фасад здания. Оформление входной группы объемным элементом в виде профилированного кольца и вишневый цвет кирпичной кладки содержат в себе идею названия компании и тактично подчеркивают контекст города как «вишневой столицы» Тамбовской области.
В проекте используются принципы устойчивого строительства. Избыточное тепло от производственного оборудования утилизируется для отопления и преднагрева горячей воды. Размеры и количество светопрозрачных конструкций рассчитаны таким образом, чтобы обеспечивать комфортный микроклимат в зимний и летний периоды.
