Реконструкция завода по производству энергосберегающих полиуретановых изделий
© PROJECTLIFE
Реконструкция завода по производству энергосберегающих полиуретановых изделий
информация:
-
статус
в процессе реализации -
даты
02.2025 / 05.2025 -
место
Уварово ул. 40 лет Октября здание 6 -
координаты
51.949669, 42.251428 -
функция
Инженерно-промышленный / Завод
С компанией «Полисфера» мы работаем давно. Ранее они заказывали проекты для своей деятельности, а с ростом объемов возникла необходимость в расширении производства. Поскольку компания работает по всей России, а владелец родом из г. Уварово, было принято решение выкупить заброшенное здание дома культуры и переделать его под собственное производство. -
теги
send.project -
общая площадь
2 006 м2 -
высота
11,560 -
этажность
2 -
строительный объем
737,5 м3

Сергей Назаров
РоссияPROJECTLIFE
Россияавторский коллектив
партнеры, заказчики, смежники
Реконструкция завода по производству энергосберегающих полиуретановых изделий
© PROJECTLIFE
Архи.ру об этом объекте:
Вишневая фабрика
Мастерская PROJECTLIFE разработала проект реконструкции дома культуры в городе Уварово для размещения производства энергосберегающих полиуретановых изделий. Смену функции архитекторы маркируют более динамичной композицией, соответствующей технологии перепланировкой, а также кирпичной облицовкой. Также проект предполагает использование принципов устойчивого строительства.
Описание предоставлено архитекторами Владелец компании «Полисфера» родом из Уварово, поэтому было принято решение выкупить заброшенное здание дома культуры прим.ред.: судя по данным карты Викимапия, здание было построено в 1960-е годы на основе тип... читать дальшеРеконструкция завода по производству энергосберегающих полиуретановых изделий
© PROJECTLIFE
описание:
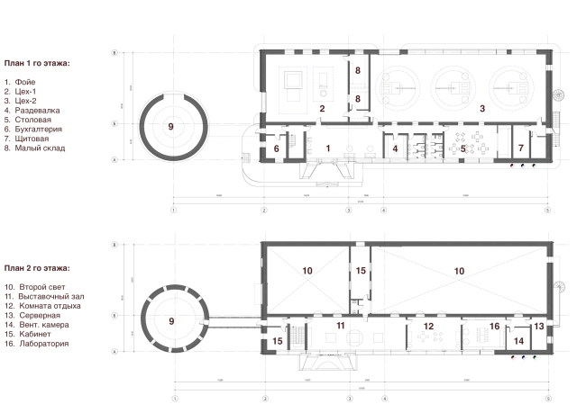
Основное функционально–планировочное решение направлено на обеспечение максимальной производительности при обязательном соблюдении качества рабочего места. Предусмотрены дополнительные световые проемы, комната отдыха сотрудников с библиотекой, кухня-столовая, а также организован приток охлажденного воздуха на уровень рабочего пространства.
Объемно–пространственное решение построено на придании динамики форме за счет создания асимметричной композиции с акцентированным главным входом, тонким металлическим мостом и вертикальными инженерными элементами, вынесенными на главный фасад здания. Оформление входной группы объемным элементом в виде профилированного кольца и вишневый цвет кирпичной кладки содержат в себе идею названия компании и тактично подчеркивают контекст города как вишневой столицы Тамбовской области.
В проекте используются принципы устойчивого строительства. Избыточное тепло от производственного оборудования утилизируется для отопления и преднагрева горячей воды. Размеры и количество светопрозрачных конструкций рассчитаны таким образом, чтобы обеспечивать комфортный микроклимат в зимний и летний периоды.
Основная задача заключалась в гармоничном вписывании здания в контекст парка Сахарного завода и интеграции производственного здания в культурную жизнь города.