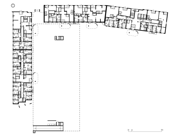
Жилой комплекс состоит из двух зданий: одно формирует фронт улицы Тенистая, а другое – двор. Место изгиба улицы подчеркивает 23-этажная башня-доминанта, остальные секции – девятиэтажные. 
Акцент создается с помощью трех приемов: динамичной композиции, красного цвета и запоминающегося рисунка фасада – работая над ними архитектор Иван Чиков вдохновлялся мотивами мезенской красно-белой росписи. Идея заключалась в создании двухцветного фасада и объединения окон арками по горизонтали и вертикали. Образованный арками нерегулярный паттерн выглядит цельным, его интересно разглядывать издалека и вблизи. 
Авторы проекта рассматривали и другой вариант – светлый фасад с темными деталями, но остановились на более темном фоне со светлыми элементами. Такой подход позволил сохранить целостность объема, избежав его рассыпания на отдельные элементы. Причиной выбора цвета стала его яркость, а также практичность: красный пигмент в штукатурке является самым устойчивым.
Главный вход в жилой комплекс располагается между угловыми секциями со стороны улицы Тенистая. Архитекторы акцентировали его красной аркой с огромным фонарем-шаром, создав объект, который служит ориентиром для встреч или удобным указателем для гостей.
Комплекс имеет достаточно большой двор, расположенный на подземном паркинге. Для озеленения подобраны выносливые, привычные к местному климату растения, за которыми легко ухаживать. Детская площадка и другие элементы благоустройства спроектированы специально для комплекса и рассчитаны на высокую нагрузку.
Для каждого подъезда разработан индивидуальный дизайн в стилистике color block, мебель выполнена по индивидуальному проекту. В результате весь дом – и снаружи, и внутри – получился очень жизнерадостным. 
Описание предоставлено архитекторами
Жилой дом Домино
                Фотография © Аскар Кабжан / предоставлена План Б
        Жилой дом Домино
                Фотография © Аскар Кабжан / предоставлена План Б
        Жилой дом Домино
                Фотография © Аскар Кабжан / предоставлена План Б
        Жилой дом Домино. Ситуационный план
                © План Б
        Жилой дом Домино
                Фотография © Аскар Кабжан / предоставлена План Б
        Жилой дом Домино
                Фотография © Аскар Кабжан / предоставлена План Б
        Жилой дом Домино
                Фотография © Аскар Кабжан / предоставлена План Б
        Жилой дом Домино
                Фотография © Аскар Кабжан / предоставлена План Б
        Жилой дом Домино
                Фотография © Аскар Кабжан / предоставлена План Б
        
            
            
        
                                                                                
                            
                            
                            
                            
                            
                            
                            
                            
                            
                            
                            
                            
                            
                            
                            
                            