RSS
Жилой дом Домино
Фотография © Аскар Кабжан / предоставлена План Б

Жилой дом Домино

информация:

  • статус
    реализовано
  • даты
    20182021 / — 2022
  • region= area= address=ул. Тенистая, 6 country_t=Россия city_t=Екатеринбург
    место
    Екатеринбург ул. Тенистая, 6
  • координаты
    56.801518, 60.498588
  • функция
    Жилой / многоквартирный дом
  • теги
    send.project
  • общая площадь
    41 646 м2
  • высота
    70,75
  • этажность
    5-16
  • строительный объем
    104 698 м3
Ксения Серебрякова
Россия

авторский коллектив

Руководители авторского коллектива: Ксения Серебрякова , Антонина Савилова 
Главный архитектор: Лилия Валиахметова 
Решения генерального плана: Дарья Македонская, Наталия Истомина 
Главный инженер: Владимир Матвеев 
Архитекторы: Елена Кудрина, Иван Чирков, Михаил Княжев 
Конструкторы: Евгений Редикульцев, Станислав Шипулин, Александр Стародубцев 
Руководитель инженерной группы: Василий Зорин 

партнеры, заказчики, смежники

Проектирование железобетонного каркаса: Эффективное проектирование

Заказчик: Астра-Девелопмент

 
Жилой дом Домино
Фотография © Аскар Кабжан / предоставлена План Б

Архи.ру об этом объекте:

25.02.2025

Красный конь

Суперграфика на фасадах жилого комплекса, построенного в Екатеринбурге по проекту бюро «План Б», вдохновлена мезенской росписью. Красный пигмент для 23-этажной башни выбрали не только как акцентный, но и устойчивый в штукатурке. Не менее яркими получились вестибюли подъездов, оформленные приемом color block.

Описание предоставлено архитекторами Жилой комплекс состоит из двух зданий: одно формирует фронт улицы Тенистая, а другое двор. Место изгиба улицы подчеркивает 23-этажная башня-доминанта, остальные секции девятиэтажные. Акцент создается с по...   читать дальше
Жилой дом Домино
Фотография © Аскар Кабжан / предоставлена План Б

история проекта:

Улица Тенистая – это четырёхполосная дорога, которая соединяет новые районы города: Академический и Широкую Речку. Когда мы начинали работу над нашим жилым комплексом, здесь ещё не было сложившейся застройки: дома стояли только в начале и в конце улицы. На тот момент архитектурная концепция улицы предполагала строительство пяти домов-башен вдоль дороги.

Мы с заказчиком приняли решение переделать концепцию, поскольку такой подход уже устарел. Мы считали важным создать уличный фронт, который, во-первых, отделит дворы от шумной улицы, а во-вторых, позволит сформировать уютное пространство для пешеходов. Мы хотели, чтобы люди шли вдоль домов, на первых этажах которых располагаются кафе и магазины, а не перебегали от башни к башне. Мы создали эскиз панорамы улицы с учётом высотности и пропорций жилых комплексов других застройщиков, уже построенных в начале и в конце Тенистой.

Концепция была утверждена в Главархитектуре Екатеринбурга. Ещё один жилой комплекс на улице Тенистой сейчас строится в соответствии с нашей концепцией.

описание:

Жилой комплекс состоит из двух зданий: одно формирует уличный фронт, а другое – двор. Мы хотели подчеркнуть изгиб улицы, и на этом изгибе разместили 23-этажную башню, которая стала доминантой. Остальные секции жилого комплекса – девятиэтажные. Такое распределение высот хорошо работает на улицу – формирует доминанту при повороте, а также на дворовое пространство – создаёт уютный двор из домов средней этажности.

Акцентное решение сформировано сразу тремя приёмами: динамичной композицией объёмов (их заужения и консольные выносы), красным цветом и запоминающимся рисунком фасада. Идея заключалась в создании двухцветного фасада с объединением окон арками по горизонтали и вертикали. Они образуют паттерн, который издалека выглядит цельным, а вблизи его интересно рассматривать, поскольку он состоит из множества мелких деталей. Архитектор Иван Чиков вдохновлялся мотивами мезенской красно-белой росписи. Мы рассматривали два варианта: светлый фасад с тёмными деталями, но остановились на более тёмном фоне со светлыми элементами. Такой подход позволил сохранить целостность объёма, избежав его рассыпания на отдельные элементы. Мы решили сделать фасады красными, чтобы создать яркую, нарядную доминанту. Ещё одной причиной выбора цвета стала его практичность: красный пигмент в штукатурке является самым устойчивым.

Главным входом в ЖК является проход между домами со стороны улицы Тенистой. Мы решили дополнительно акцентировать его красной аркой с огромным фонарём-шаром. По сути, мы специально создавали объект, который мог бы служить маркером в пространстве – ориентиром для встреч или удобным указателем для гостей.

ЖК имеет достаточно большой двор, расположенный на подземном паркинге. Благоустройство было разработано архитектором Натальей. Для озеленения подобраны выносливые, привычные к нашему климату растения, за которыми легко ухаживать. Детская площадка и другие элементы благоустройства спроектированы специально для этого комплекса и рассчитаны на высокую нагрузку, поскольку мы ожидали, что основными жителями станут семьи с маленькими детьми.

Для каждого подъезда разработан индивидуальный дизайн в стилистике Color Block. Вся мебель выполнена по индивидуальному проекту. В результате весь дом – и снаружи, и внутри – получился очень жизнерадостным. В этом проекте мы поняли, что яркие решения требуют очень-очень много времени на авторский надзор.

Жилой дом Домино
Фотография © Аскар Кабжан / предоставлена План Б
Жилой дом Домино
Фотография © Аскар Кабжан / предоставлена План Б
Жилой дом Домино
Фотография © Аскар Кабжан / предоставлена План Б
Жилой дом Домино
Фотография © Аскар Кабжан / предоставлена План Б
Жилой дом Домино
Фотография © Аскар Кабжан / предоставлена План Б
Жилой дом Домино
Фотография © Аскар Кабжан / предоставлена План Б
Жилой дом Домино
Фотография © Аскар Кабжан / предоставлена План Б
Жилой дом Домино
Фотография © Аскар Кабжан / предоставлена План Б
Жилой дом Домино
Фотография © Аскар Кабжан / предоставлена План Б
Жилой дом Домино
Фотография © Аскар Кабжан / предоставлена План Б
Жилой дом Домино
Фотография © Аскар Кабжан / предоставлена План Б
Жилой дом Домино
Фотография © Аскар Кабжан / предоставлена План Б
Жилой дом Домино
Фотография © Аскар Кабжан / предоставлена План Б
Жилой дом Домино
Фотография © Аскар Кабжан / предоставлена План Б
Жилой дом Домино
Фотография © Аскар Кабжан / предоставлена План Б
Жилой дом Домино
Фотография © Аскар Кабжан / предоставлена План Б
Жилой дом Домино
Фотография © Аскар Кабжан / предоставлена План Б
Жилой дом Домино
Фотография © Аскар Кабжан / предоставлена План Б
Жилой дом Домино
Фотография © Аскар Кабжан / предоставлена План Б
Жилой дом Домино
Фотография © Аскар Кабжан / предоставлена План Б
Жилой дом Домино
Фотография © Аскар Кабжан / предоставлена План Б
Жилой дом Домино
Фотография © Аскар Кабжан / предоставлена План Б
Жилой дом Домино
Фотография © Аскар Кабжан / предоставлена План Б
Жилой дом Домино
Фотография © Аскар Кабжан / предоставлена План Б
Жилой дом Домино
Фотография © Аскар Кабжан / предоставлена План Б
Жилой дом Домино
Фотография © Аскар Кабжан / предоставлена План Б
Жилой дом Домино
Фотография © Аскар Кабжан / предоставлена План Б
Жилой дом Домино
Фотография © Аскар Кабжан / предоставлена План Б
Жилой дом Домино
Фотография © Аскар Кабжан / предоставлена План Б
Жилой дом Домино
Фотография © Аскар Кабжан / предоставлена План Б
Жилой дом Домино
Фотография © Аскар Кабжан / предоставлена План Б
Жилой дом Домино
Фотография © Аскар Кабжан / предоставлена План Б
Жилой дом Домино
Фотография © Аскар Кабжан / предоставлена План Б
Жилой дом Домино
Фотография © Аскар Кабжан / предоставлена План Б
Жилой дом Домино
Фотография © Аскар Кабжан / предоставлена План Б
Жилой дом Домино
Фотография © Аскар Кабжан / предоставлена План Б
Жилой дом Домино
Фотография © Аскар Кабжан / предоставлена План Б
Жилой дом Домино. Ситуационный план
© План Б
Жилой дом Домино. Генеральный план
© План Б
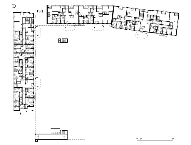
Жилой дом Домино. План 1 этажа
© План Б
Жилой дом Домино. План 2 этажа
© План Б
Жилой дом Домино. План 9 этажа
© План Б
Жилой дом Домино. План 21 этажа
© План Б

Архитекторы – партнеры Архи.ру:

  • Раис Баишев
  • Николай Переслегин
  • Михаил Давыдов
  • Анастасия Абашева
  • Дмитрий Сухов
  • Илья Машков
  • Марина Егорова
  • Валерий Каняшин
  • Наталия Шилова
  • Олег Мединский
  • Александра Кузьмина
  • Сергей Никешкин
  • Даниил Лоренц
  • Александр Котенков
  • Николай Кикава
  • Зураб Басария
  • Никита Явейн
  • Дмитрий Буш
  • Антон Надточий
  • Олег Шапиро
  • Евгений Подгорнов
  • Михаил Канунников
  • Юлия Солдатенкова
  • Юлиана Княжевская
  • Сергей Труханов
  • Александр Асадов
  • Александр Самарин
  • Григориос Гавалидис
  • Игорь Членов
  • Борис Воскобойников
  • Андрей Михайлов
  • Андрей Асадов
  • Владимир Плоткин
  • Татьяна Зульхарнеева
  • Сергей Переслегин
  • Андрей Романов
  • Василий Крапивин
  • Мария Ахременкова
  • Игорь Шварцман
  • Юлия Тряскина
  • Энди Сноу
  • Евгений Новосадюк
  • Ерлан Бекмухамедов
  • Ростислав Цайзер
  • Евгений Зеленов
  • Павел Андреев
  • Алексей Орлов
  • Дмитрий Ликин
  • Сергей Скуратов
  • Владислав Андреев
  • Константин Ходнев
  • Степан Липгарт
  • Полина Воеводина
  • Дмитрий Остроумов
  • Сергей Кузнецов
  • Андрей Гнездилов
  • Георгий Трофимов
  • Сергей Чобан
  • Всеволод Медведев
  • Григорий Мустафин
  • Юлий Борисов
  • Вера Бутко
  • Антон Яр-Скрябин
  • Екатерина Кузнецова
  • Наталья Сидорова
  • Виталий Лутц
  • Александр Скокан
  • Станислав Белых
  • Иван Кожин
  • Елена Пучкова
  • Тимур Абдуллаев
  • Екатерина Абдуллаева
  • Маргарита Авдышева
  • Левон Айрапетов
  • Александр Аношкин
  • Алексей Афоничкин
  • Владислав Бек-Булатов
  • Антон Белов
  • Татьяна Бузулукова
  • Петр Васильев
  • Данило Вукосавлевич
  • Андрей Вырва
  • Алина Георгиевская
  • Павел Гордеев
  • Илья Гринберг
  • Никита Демидов
  • Никита Дергунов
  • Наталья Жилкина
  • Алексей Зародов
  • Екатерина Зырина
  • Алексей Ильин
  • Дарья Ильина
  • Олег Карлсон
  • Алексей Кибкало
  • Денис Кувшинников
  • Анна Куликова
  • Алексей Курков
  • Данил Куров
  • Мария Кутай
  • Евгений Кутай
  • Иван Кычкин
  • Антон Ладыгин
  • Дмитрий Лапин
  • Илья Левянт
  • Катерина Левянт
  • Борис Левянт
  • Валерий Лукомский
  • Антон Лукомский
  • Екатерина Ляпунова
  • Иса Магомедов
  • Сергей Марков
  • Елена Мерцалова
  • Николай Миловидов
  • Станислав Михаловский
  • Сергей Мичурин
  • Олеся Могилевская
  • Филипп Никандров
  • Мария Николаева
  • Дмитрий Овчаров
  • Сергей Пергаев
  • Виктор Перов
  • Алексей Полищук
  • Роман Пономарёв
  • Валерия Преображенская
  • Виктория Раубо
  • Василий Рыбаков
  • Николай Рыбаков
  • Мария Салех
  • Александр Стариков
  • Илья Уткин
  • Елисей Чакан
  • Евгения Чернышева
  • Бориша Чорович
  • Олег Шурыгин
  • Дмитрий Шурыгин

Проект из каталога (случайный выбор)

Коттеджный поселок «Клуб 2071»
Сергей Скуратов, 2006 – 2008
Коттеджный поселок «Клуб 2071»

Постройки и проекты (новые записи):

  • Павильон  Идеал
  • Флагманская кофейня Дринкит
  • Гостиница в Чите
  • ЖК Квартал 64
  • Деловое пространство «ПЛЭЙН»
  • Конкурсный проект ФИЦ / ТПО «Резерв»
  • Porta
  • Детский сад на 200 мест в Жилино-1
  • Архитектурная концепция кластера Ломоносов-2

Новости российской архитектуры:

Деловой круг
26.05.2026

Деловой круг

Олафур Элиассон
Красная карточка за авторское право
25.05.2026

Красная карточка за авторское право

Алексей Орлов, Дмитрий Буш, Ерлан Бекмухамедов
Новая коллекция МАФов
25.05.2026

Новая коллекция МАФов

Сергей Пергаев
Хвост кометы
22.05.2026

Хвост кометы

Андрей Волынцев, Анна Волынцева